← St Helens Borough Council

Status

Awaiting decision Commercial
Received
30 Jan 2026
New homes
0

Full proposal

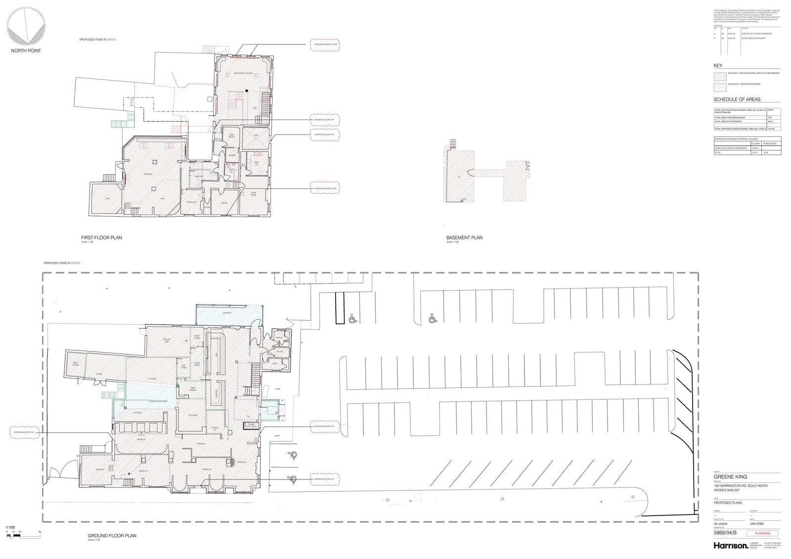
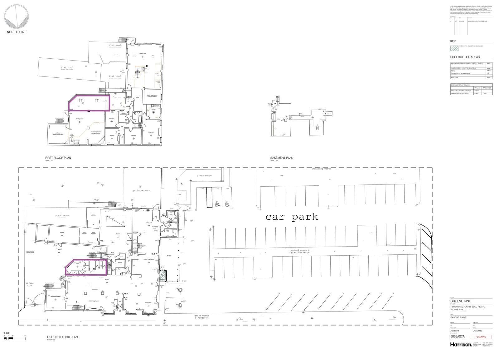
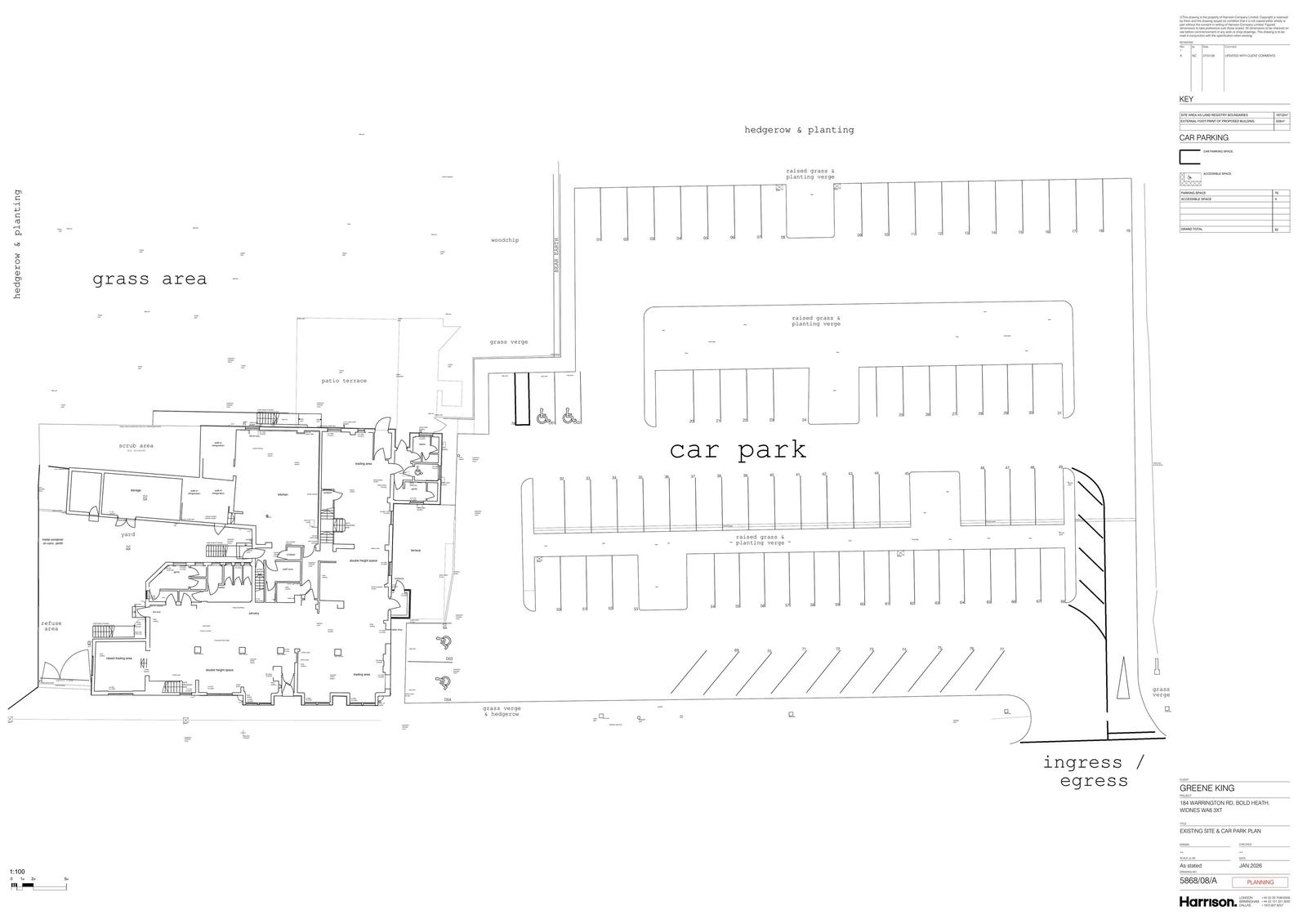
Construction of a rear infill extension, new entrance, and veranda. External alterations to the fabric of the building and fenestration amendments. Extension of carpark and associated landscaping.

Documents

Application Form
Archived · Original link
BNG METRIC
Other
Not yet archived · Original link
Consultee Comment
Archived · Original link
Ecology Information
Archived · Original link
EHO CONT LAND RESPONSE
Consultee Comment
Not yet archived · Original link
Other
Archived · Original link
Consultee Comment
Archived · Original link
MEAS Response
Archived · Original link
Consultee Comment
Archived · Original link
NOISE RESPONSE
Consultee Comment
Not yet archived · Original link
Other
Archived · Original link
Photo
Archived · Original link
Other
Archived · Original link
Ecology Information
Archived · Original link
Other Plan
Archived · Original link
Other Plan
Archived · Original link

Have your say

Your comment matters. Councils must consider every representation that raises material planning considerations.

Write a comment