← St Helens Borough Council

Status

Awaiting decision Change of use
Received
26 days ago
New homes
0

Full proposal

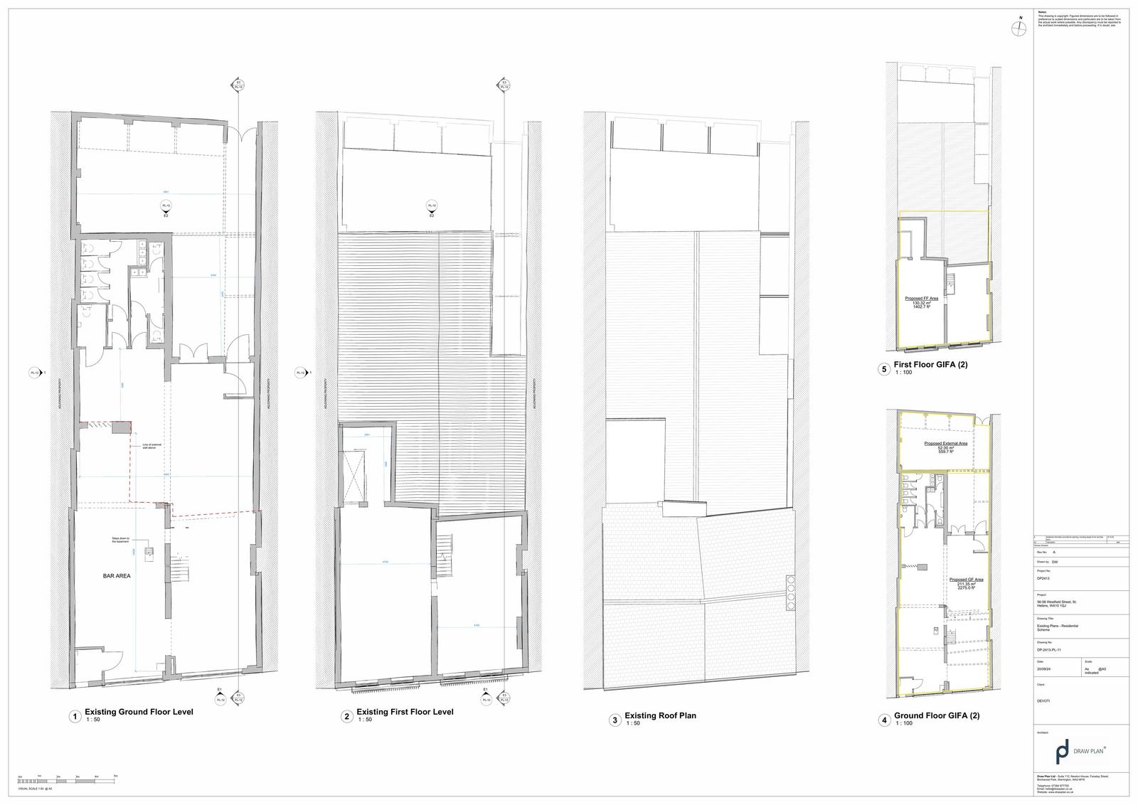
Change of use and splitting of existing commercial building into 2no ground floor units for class E use. First floor rear extension and conversion to Class E office use. Facade upgrades including window/doors.

Have your say

Your comment matters. Councils must consider every representation that raises material planning considerations.

Write a comment