← Stevenage Borough Council

Status

Awaiting decision New housing
Received
20 Jan 2026
New homes
322

Full proposal

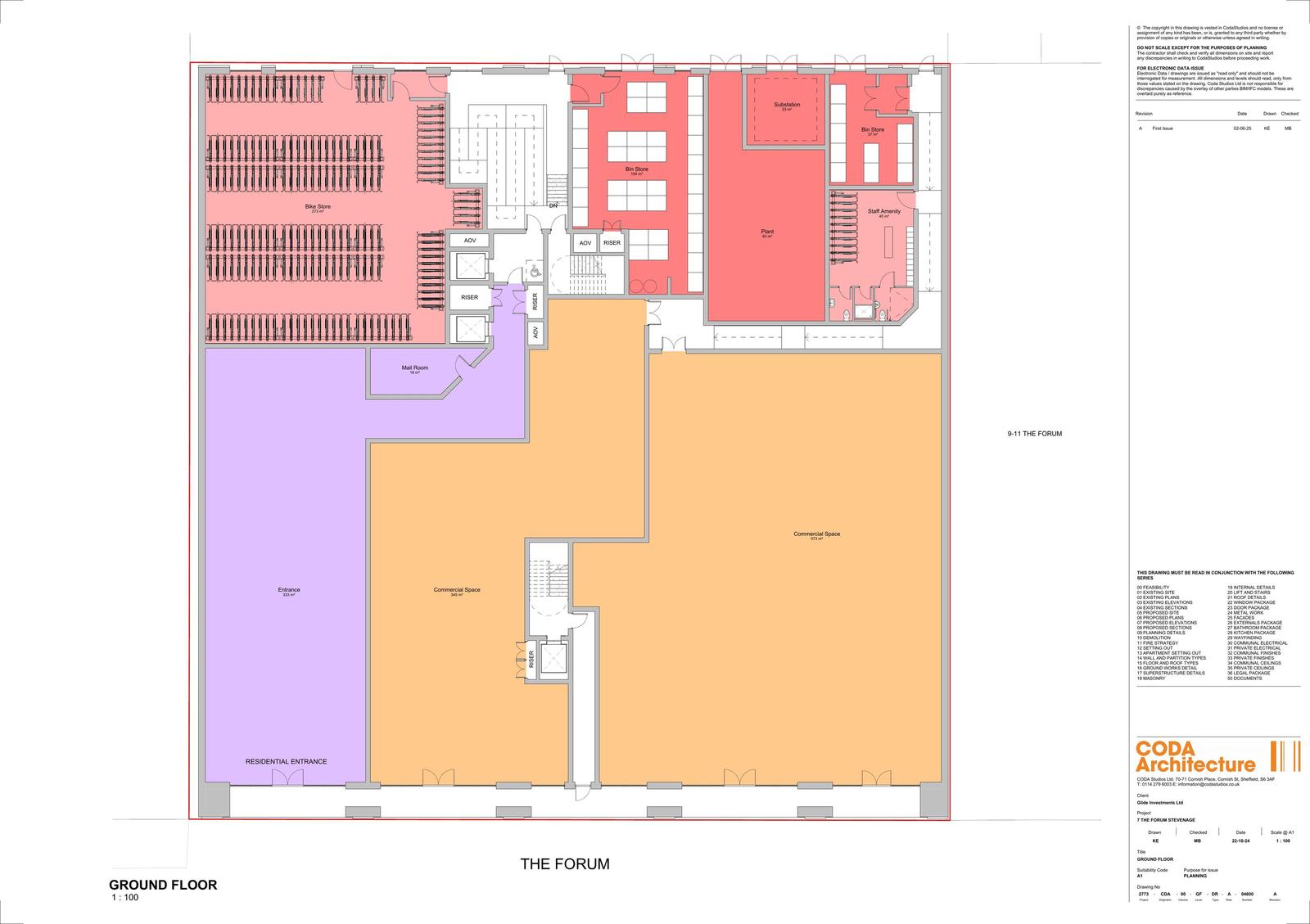
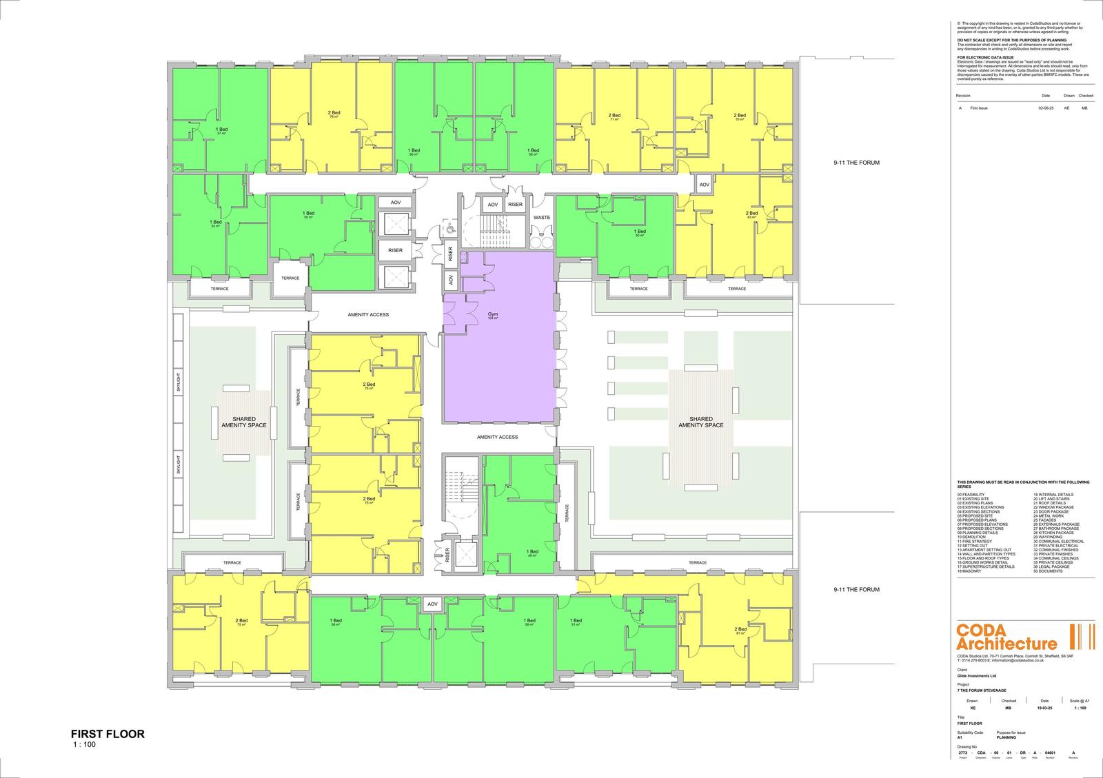
Demolition and redevelopment of existing former BHS building to create 21 storey building comprising of ground floor commercial space and 322 residential dwellings with associated infrastructure including amenity space, car parking, bicycle storage, refuse storage and plant rooms.

Documents

Supporting Documents
Archived · Original link
Drawings
Archived · Original link
Drawings
Archived · Original link
Drawings
Archived · Original link
Drawings
Archived · Original link
Drawings
Archived · Original link

Have your say

Your comment matters. Councils must consider every representation that raises material planning considerations.

Write a comment