← Stevenage Borough Council

Status

Awaiting decision Change of use
Received
03 Feb 2026
New homes
0

Full proposal

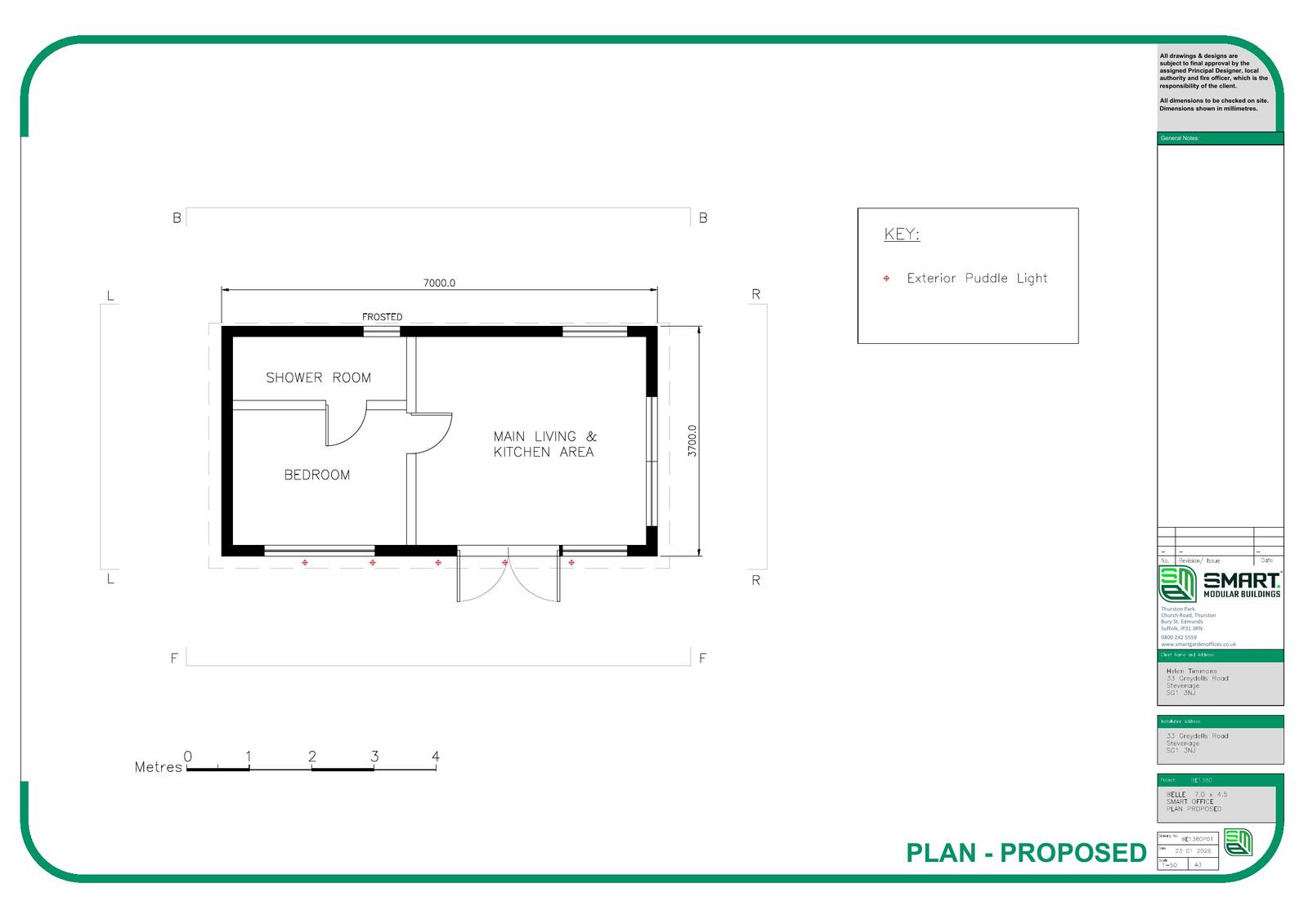
Lawful development certificate (proposed) use of land for stationing of mobile home for purposes ancillary to the primary use of the site as a single family dwellinghouse

Documents

Application Form
Archived · Original link
Supporting Documents
Archived · Original link
Drawings
Archived · Original link
Supporting Documents
Archived · Original link
Drawings
Archived · Original link
Drawings
Archived · Original link
Drawings
Archived · Original link
Drawings
Archived · Original link

Have your say

Your comment matters. Councils must consider every representation that raises material planning considerations.

Write a comment