← Stevenage Borough Council

Status

Awaiting decision New housing
Received
Last month
New homes
1

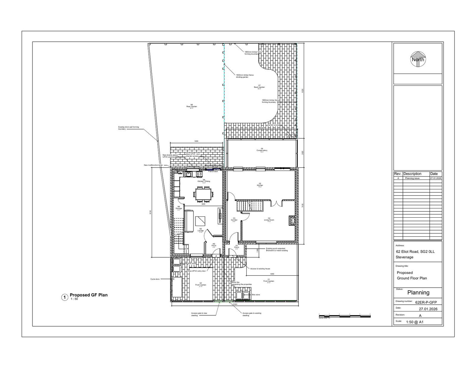
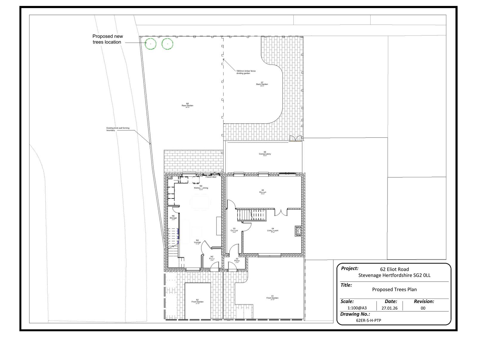
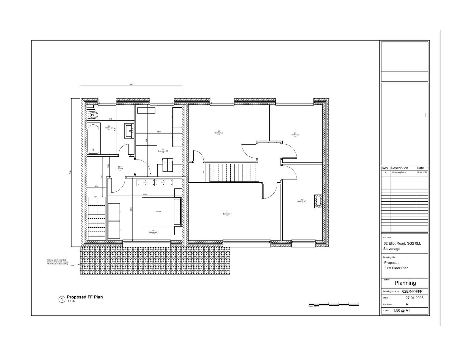
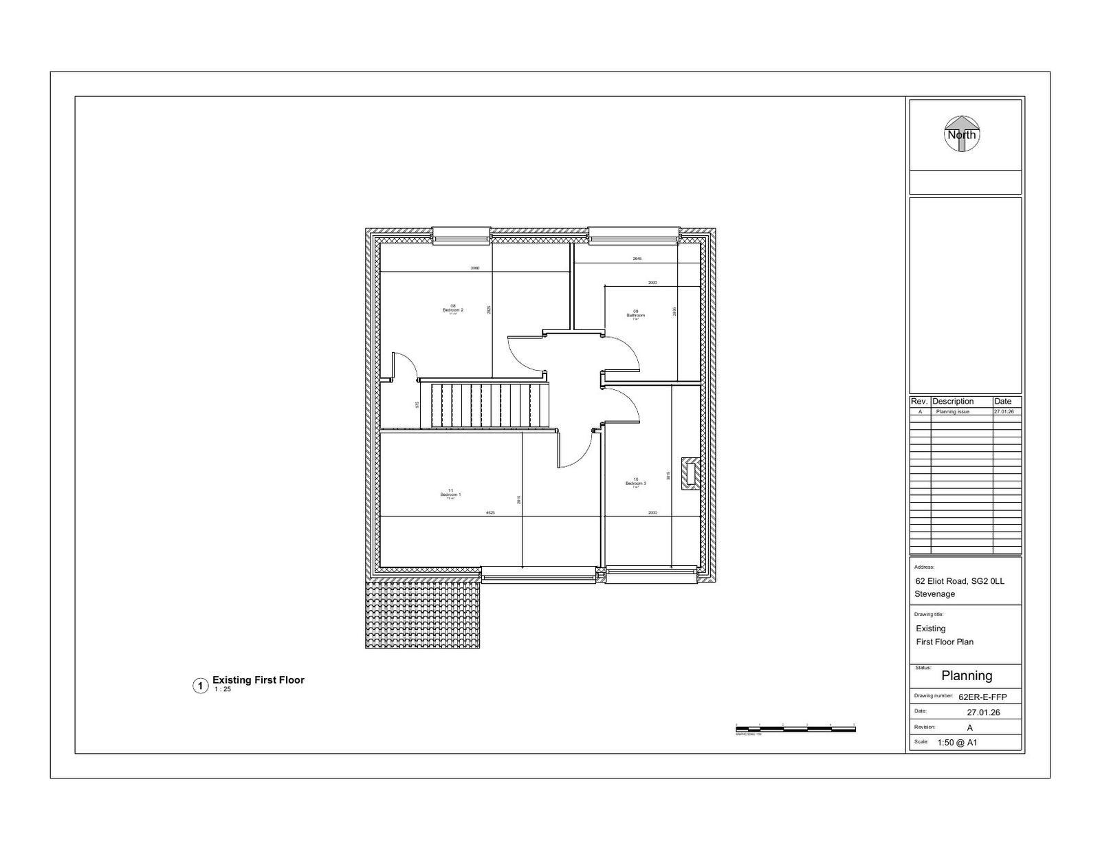
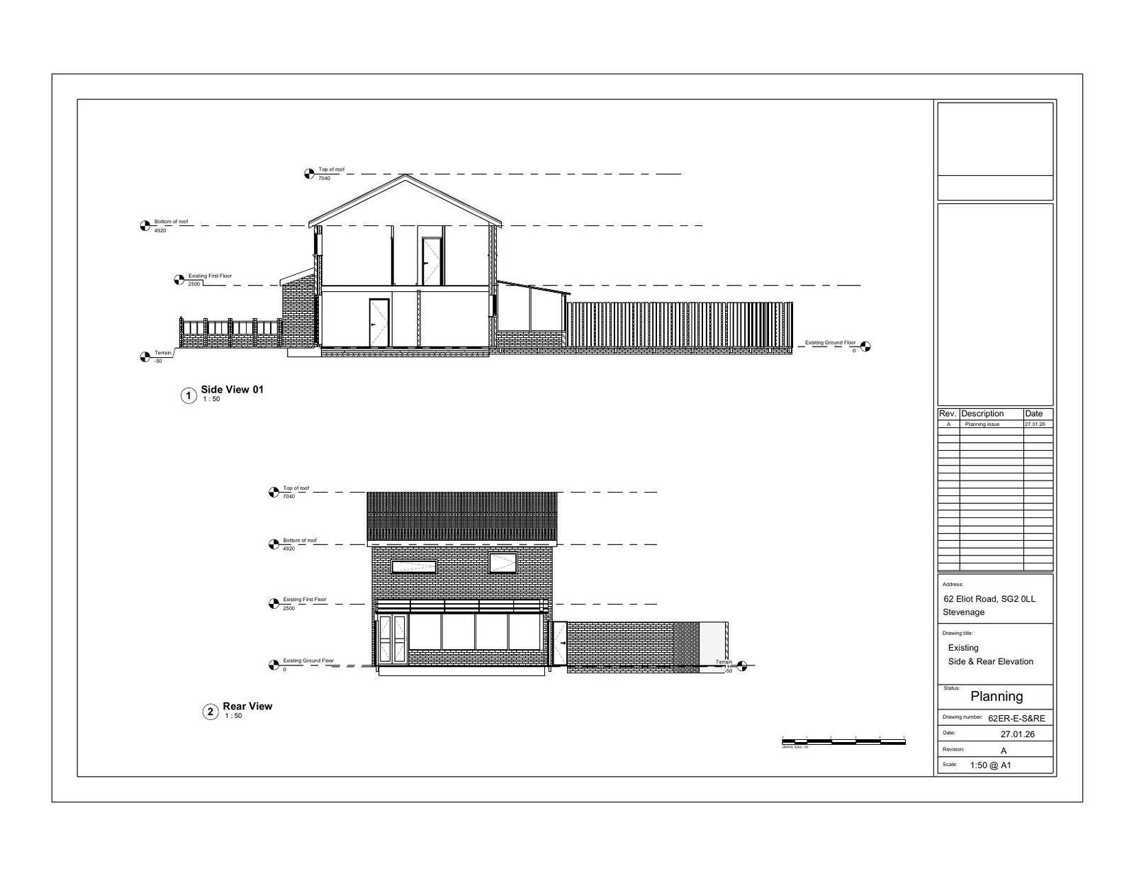
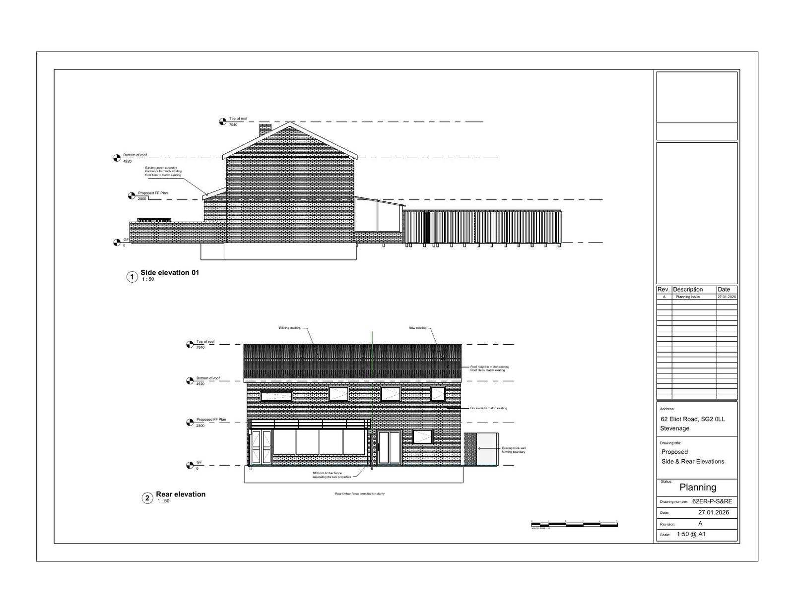
Full proposal

Erection of 1no. two bedroom end of terrace dwelling

Have your say

Your comment matters. Councils must consider every representation that raises material planning considerations.

Write a comment