← Stevenage Borough Council

Status

Awaiting decision Change of use
Received
Last month
New homes
0

Full proposal

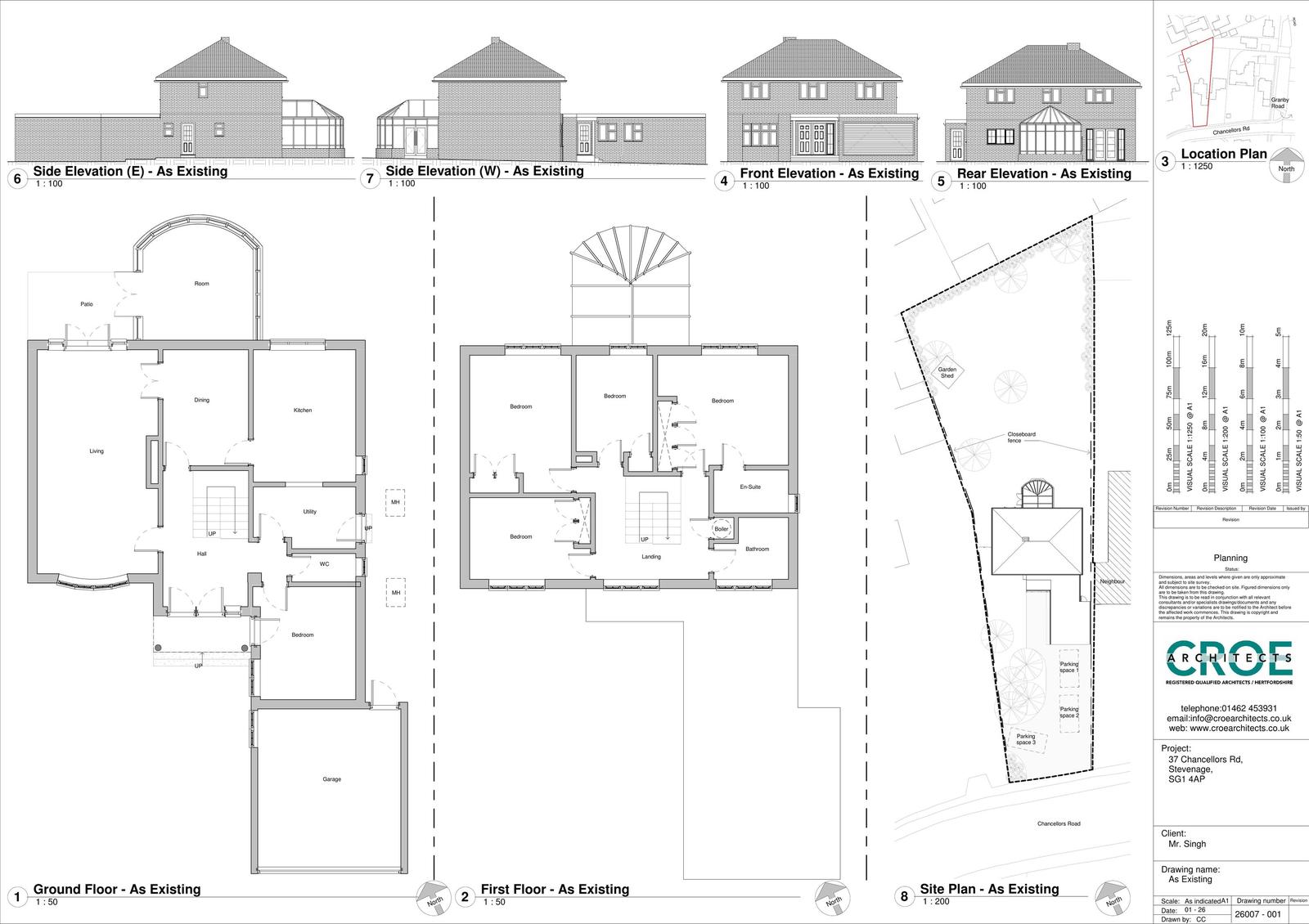
Change of use from dwelling Class (C3) to dwelling Class (C2) for the care of children and young adults up to the age of 25

Documents

Supporting Documents
Archived · Original link
Supporting Documents
Archived · Original link

Have your say

Your comment matters. Councils must consider every representation that raises material planning considerations.

Write a comment