← Stevenage Borough Council

Status

Awaiting decision House extension
Received
Last month
New homes
0

Full proposal

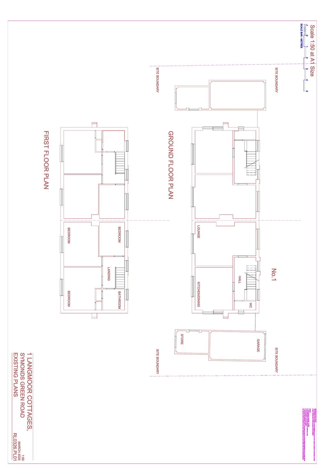
Erection of two storey side extension, single storey rear extension and new front porch

Documents

Drawings
Archived · Original link
Drawings
Archived · Original link
Drawings
Archived · Original link
Drawings
Archived · Original link
Drawings
Archived · Original link
Drawings
Archived · Original link
Drawings
Archived · Original link
Drawings
Archived · Original link

Have your say

Your comment matters. Councils must consider every representation that raises material planning considerations.

Write a comment