← Stevenage Borough Council

Status

Awaiting decision House extension
Received
Last month
New homes
0

Full proposal

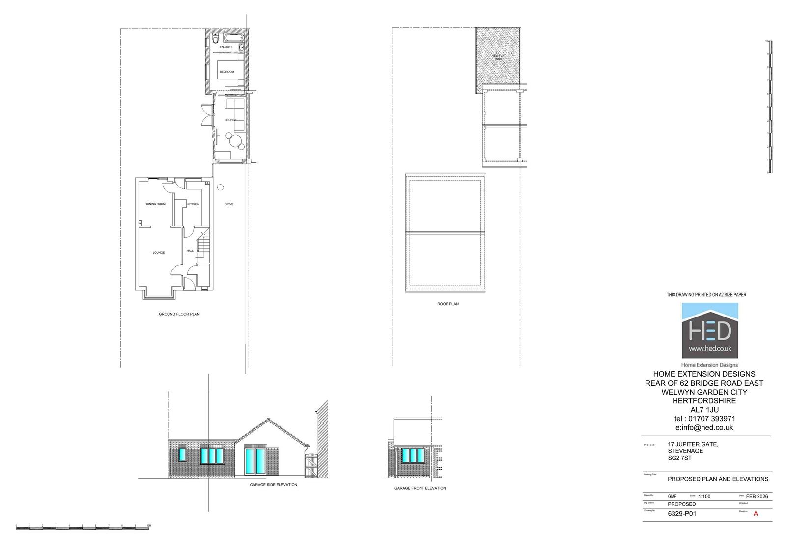
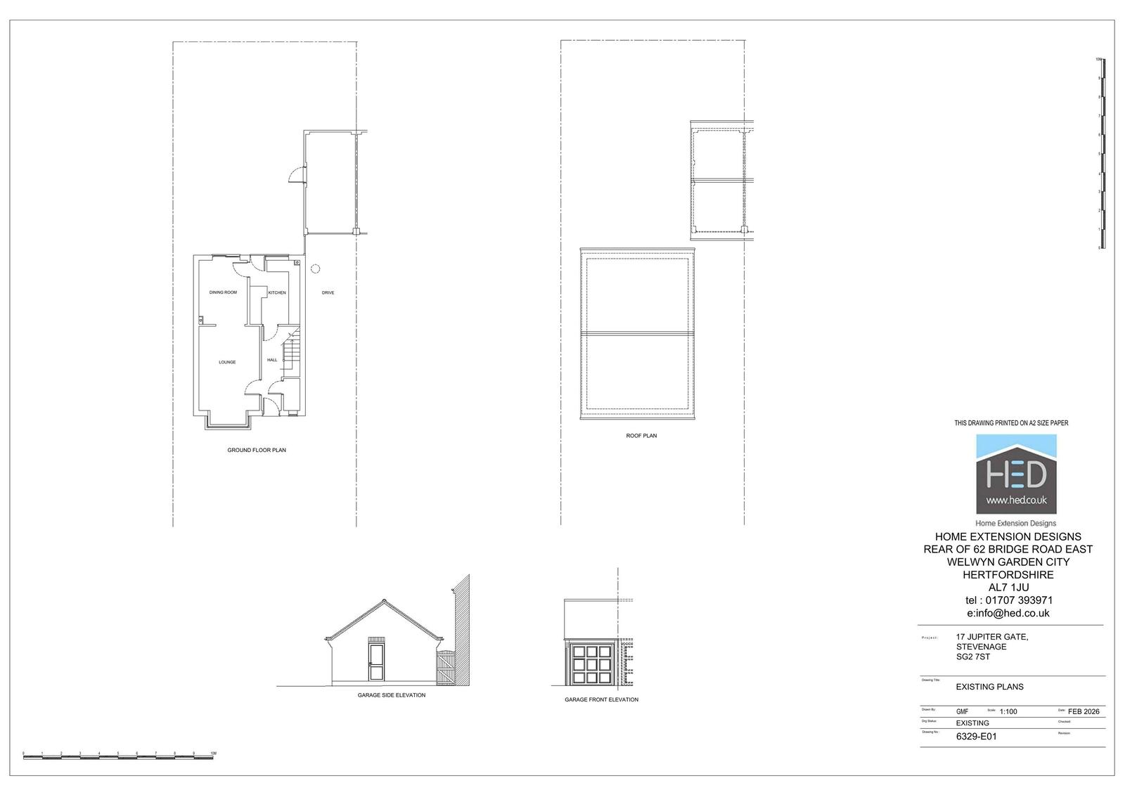
Erection of single storey rear garage extension and conversion to an annexe.

Documents

Drawings
Archived · Original link
Drawings
Archived · Original link

Have your say

Your comment matters. Councils must consider every representation that raises material planning considerations.

Write a comment