← Stevenage Borough Council

Status

Awaiting decision Change of use
Received
27 days ago
New homes
2

Full proposal

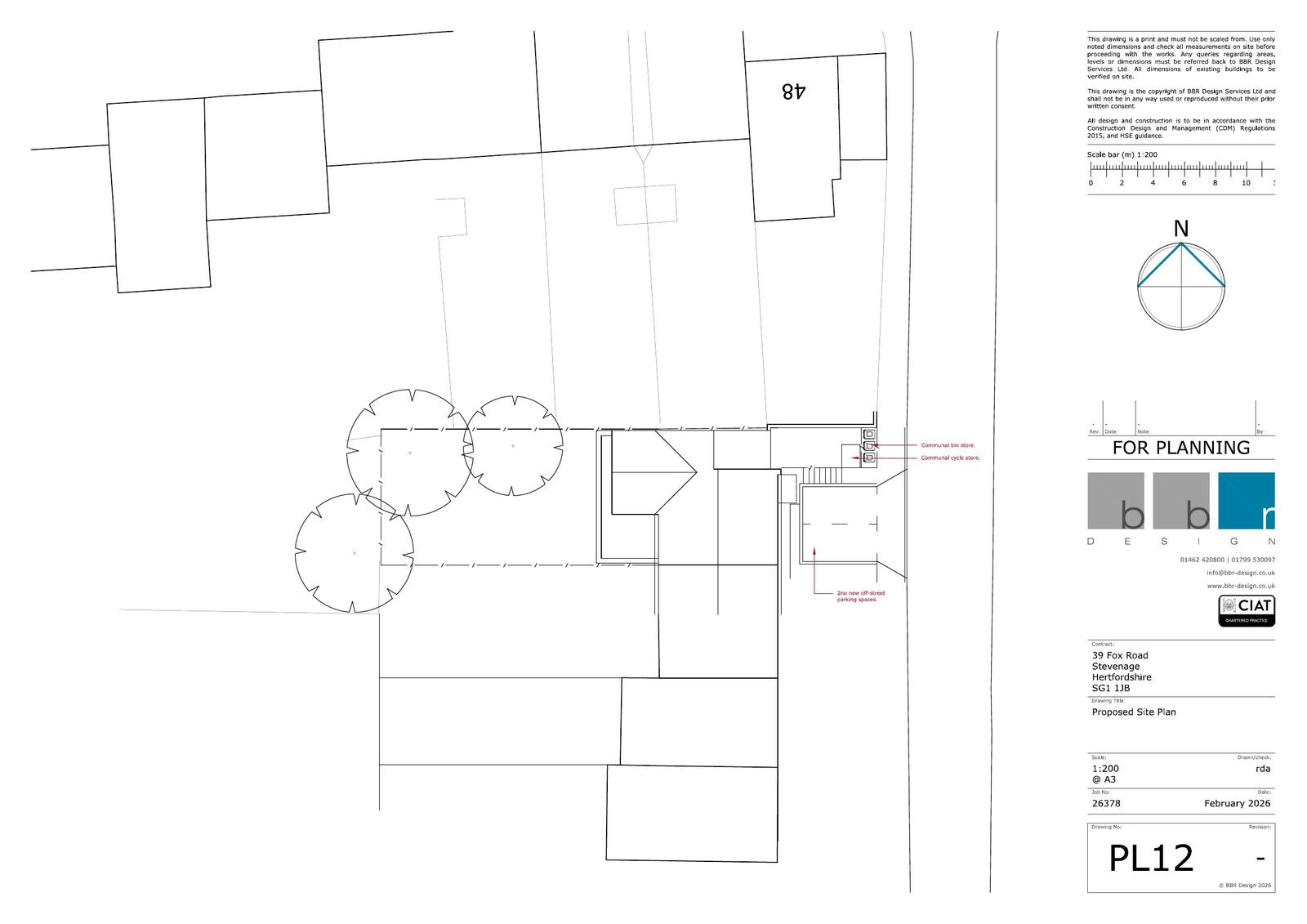
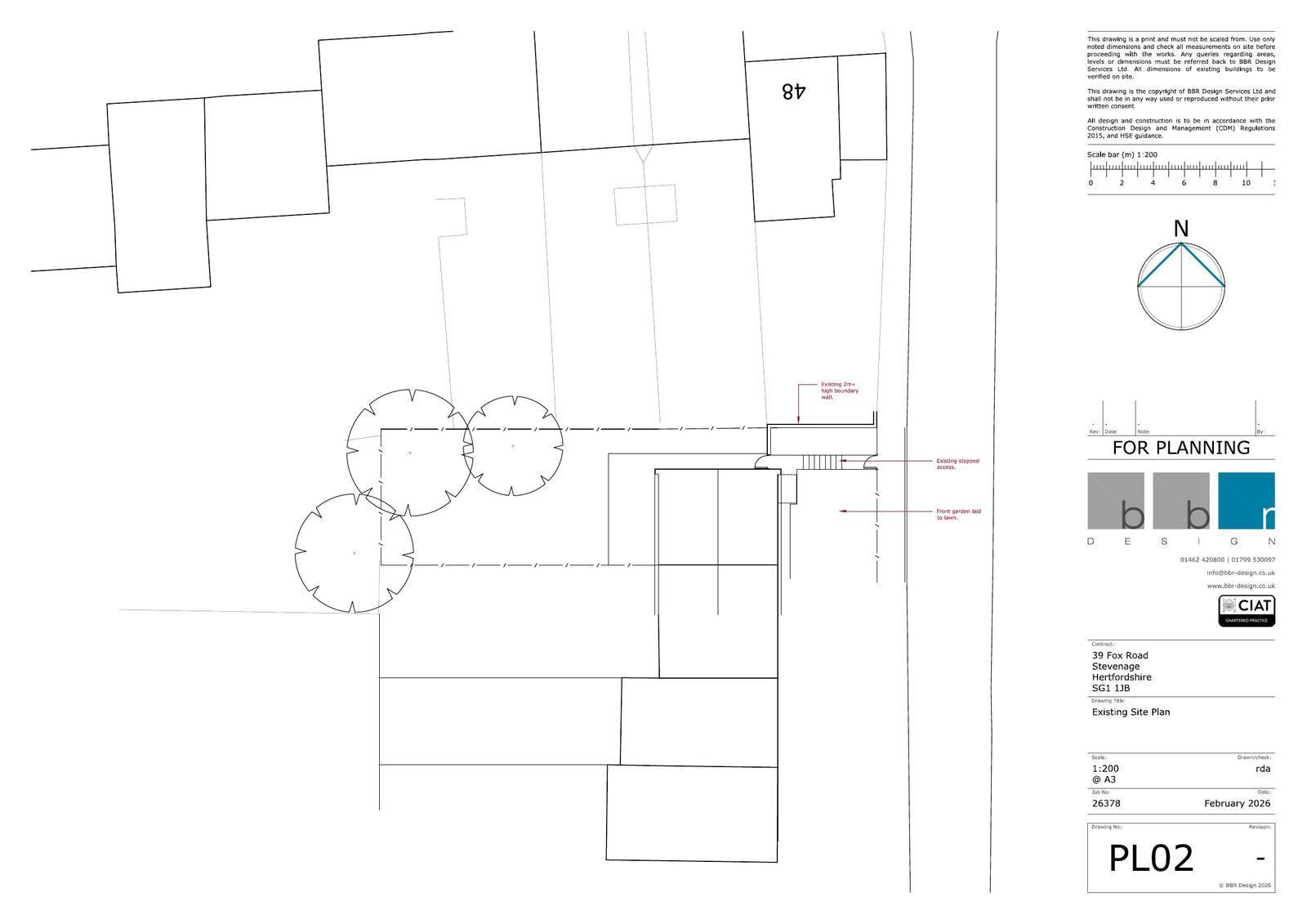
Conversion of existing dwelling to create 2no. 1 bedroom flats and 1no. 2 bedroom flat, including new access and off-street parking. Erection of part one / two storey rear extension.

Have your say

Your comment matters. Councils must consider every representation that raises material planning considerations.

Write a comment