← Stevenage Borough Council

Status

Awaiting decision House extension
Received
28 days ago
New homes
0

Full proposal

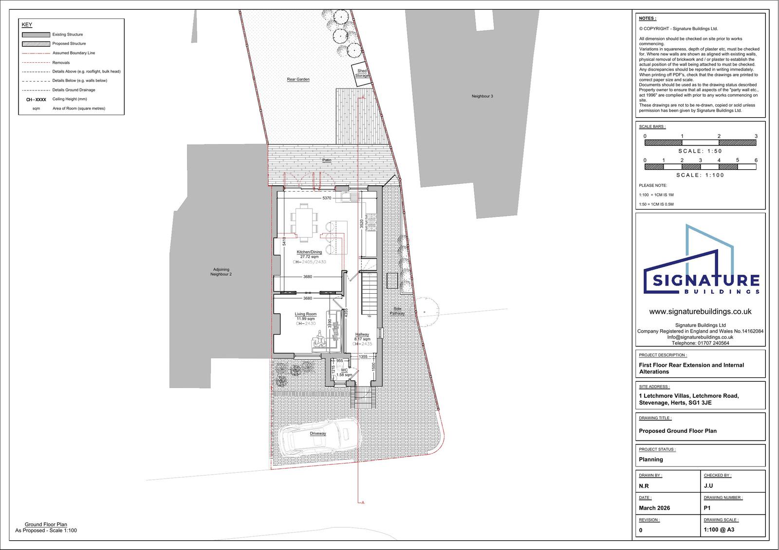
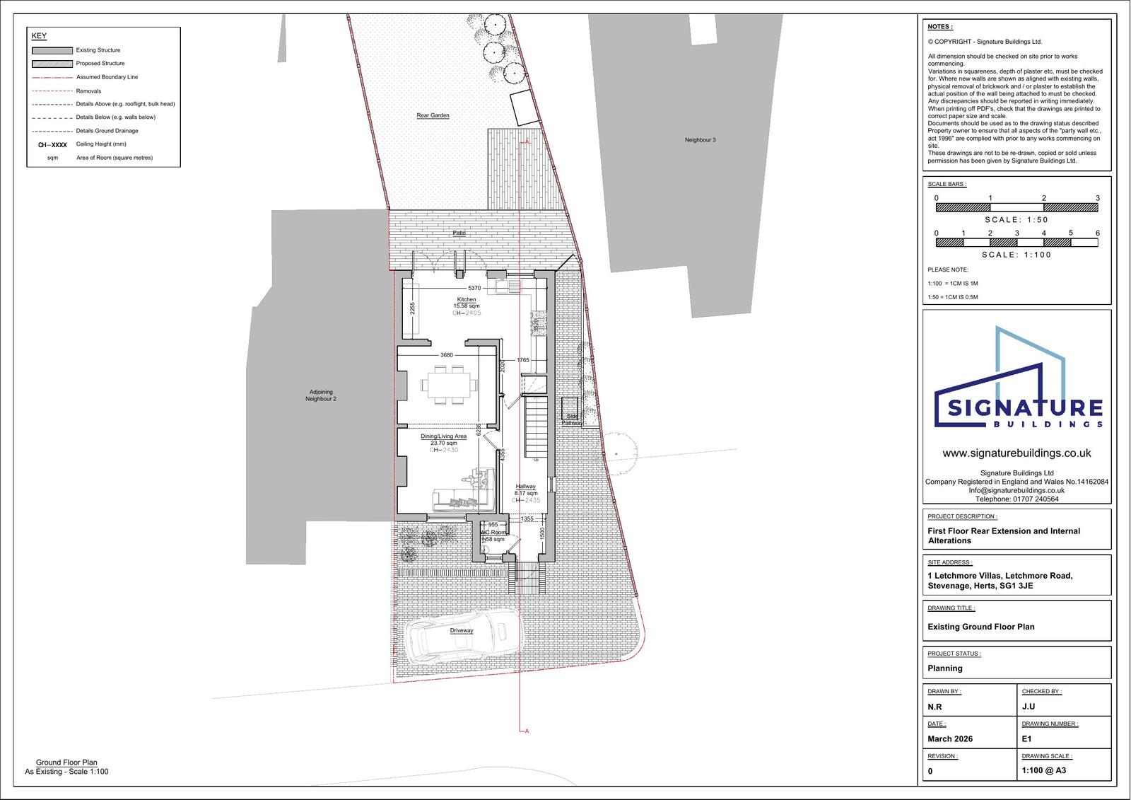
Erection of first floor rear extension

Have your say

Your comment matters. Councils must consider every representation that raises material planning considerations.

Write a comment