← Stockport Metropolitan Borough Council

Status

Awaiting decision New housing
Received
14 Jan 2025
New homes
1

Full proposal

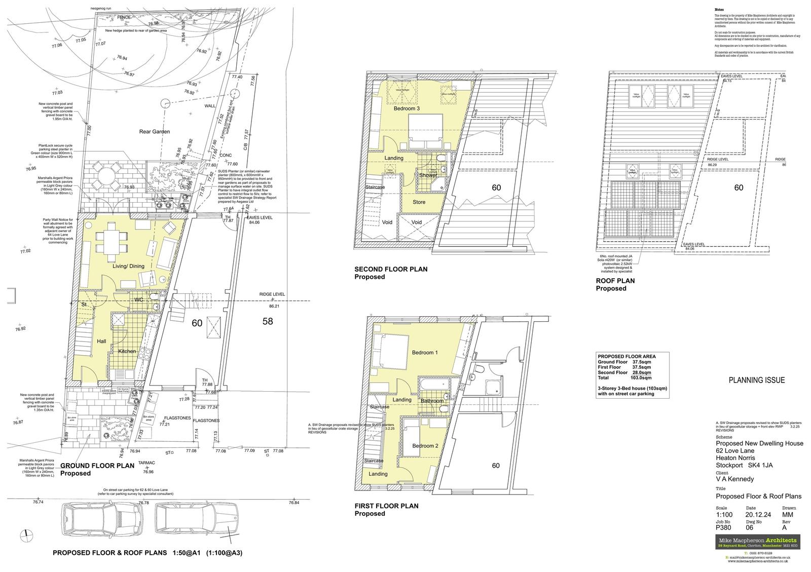
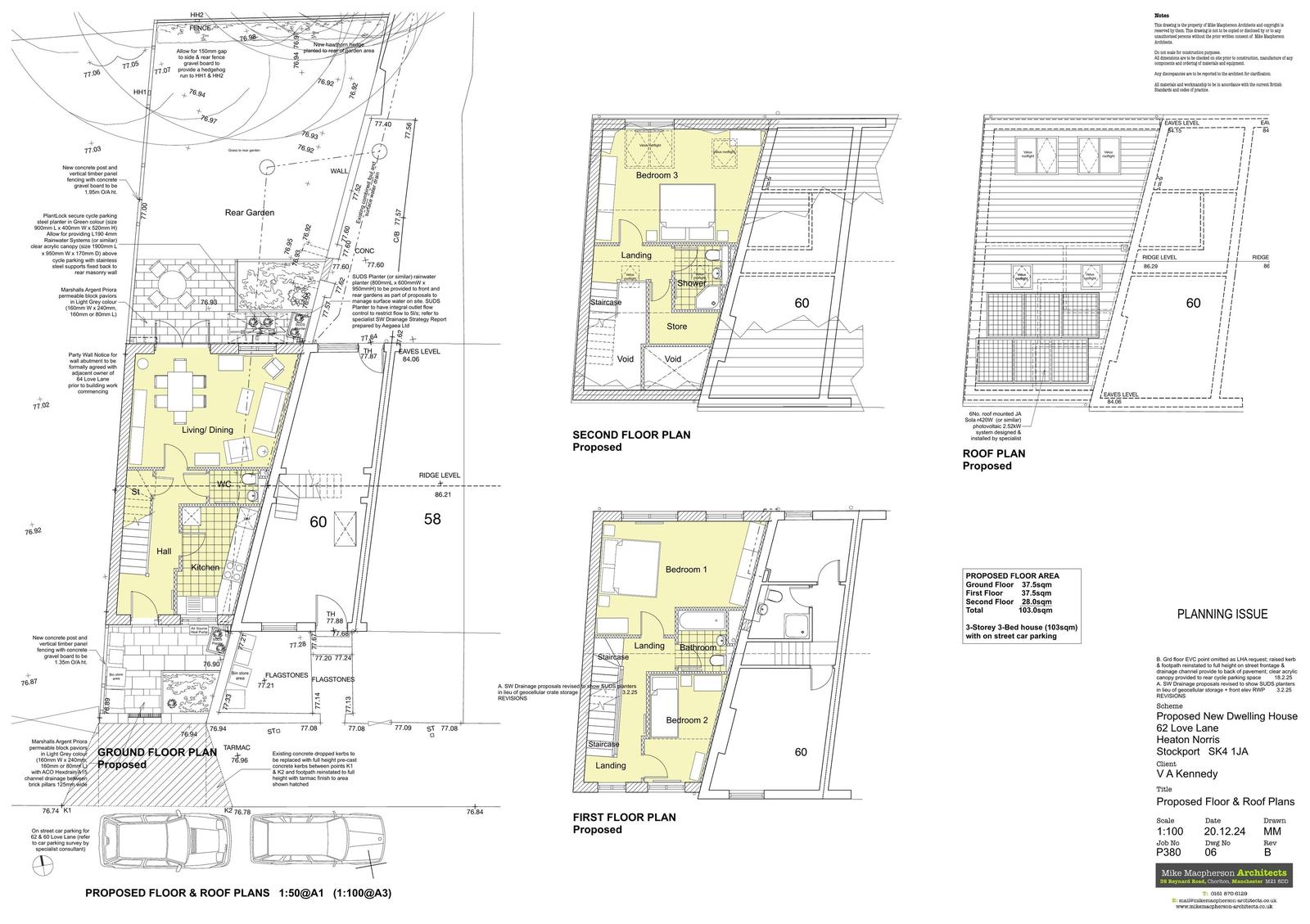
Construction on 1no. new 3-bedroom 3 storey house on a vacant brownfield site

Documents

ApplicationNoPersonalData
Archived · Original link
DRAFT HEADS OF TERMS S106 AGREEMENT
Report
Not yet archived · Original link
Report
Archived · Original link
1250 Plan
Archived · Original link

Have your say

Your comment matters. Councils must consider every representation that raises material planning considerations.

Write a comment