← Stockport Metropolitan Borough Council

Status

Registered New housing
Received
03 Feb 2025
New homes
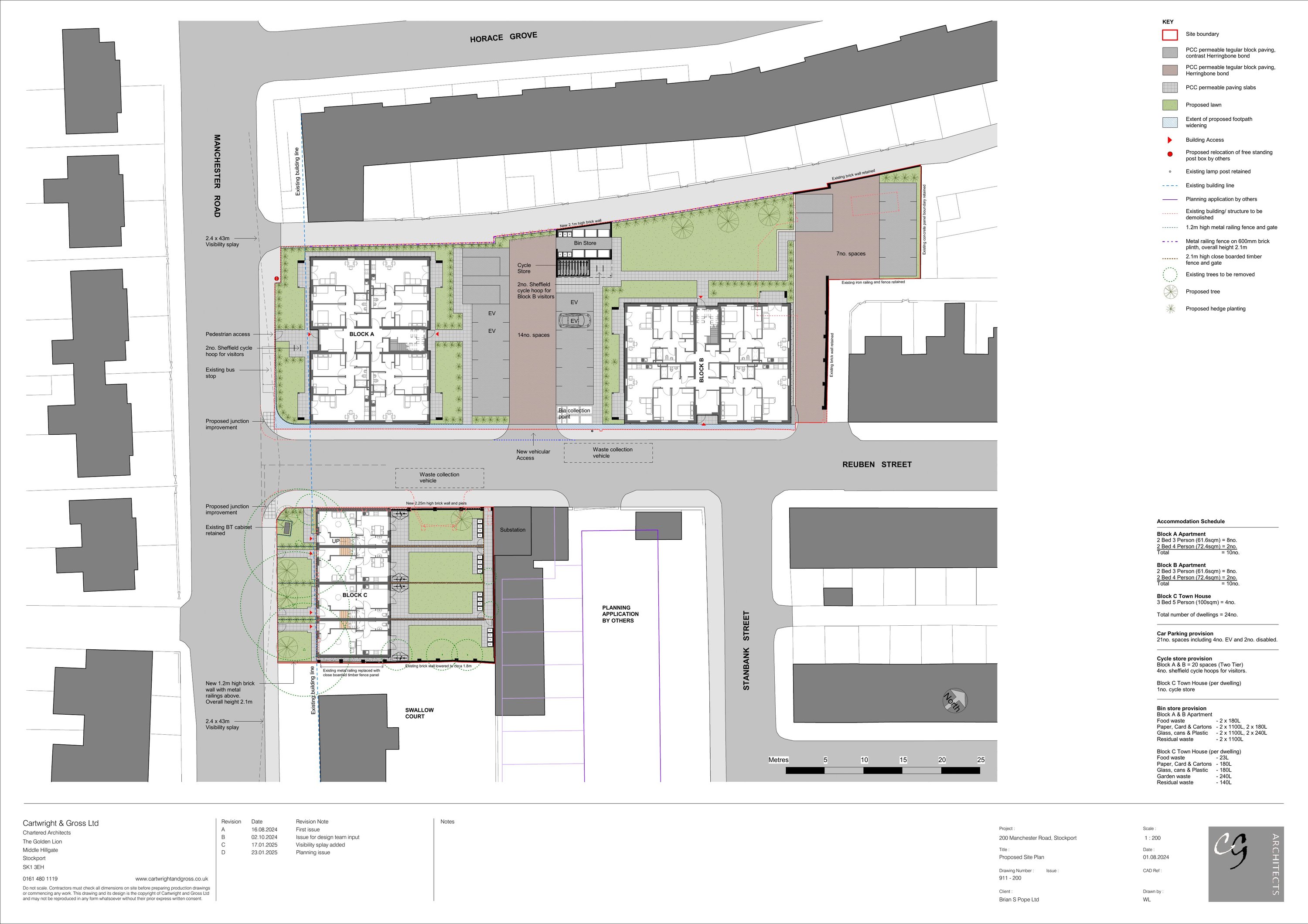
24

Full proposal

Construction of 20 no. apartments and 4 no. dwellings (Use Class C3) including highways works, landscaping, boundary treatments and associated infrastructure following demolition of existing buildings.

Documents

1179 - POPES SITE - HERITAGE STATEMENT - 30.01.25
Report
Not yet archived · Original link
200 MANCHESTER ROAD STOCKPORT - NOISE ASSESSMENT REPORT NOVEMBER 2024
Report
Not yet archived · Original link
2024 MAN11045 200 MANCHESTER ROAD C1 01 BELOW GROUND DRAINAGE P0
Plan
Not yet archived · Original link
20241031AQPLAN0101200 MANCHESTER ROAD HEATON NORRIS
Report
Not yet archived · Original link
24 0376 MANCHESTER ROAD
Report
Not yet archived · Original link
4618 - HIGHWAYS NOTE - V1_WITHENCS
Report
Not yet archived · Original link
911-102-B EXISTING PLANS
Plan
Not yet archived · Original link
911-103-B EXISTING ELEVATIONS
Plan
Not yet archived · Original link
911-104-B DEMOLITION PLAN
Plan
Not yet archived · Original link
911-105-B EXISTING STREET ELEVATION-SHEET 1
Plan
Not yet archived · Original link
911-106-A EXISTING STREET ELEVATION-SHEET 2
Plan
Not yet archived · Original link
911-201-A PROPOSED BLOCK PLAN
1250 Plan
Not yet archived · Original link
911-270-A PLOT A-PROPOSED BIN AND CYCLE STORE
Plan
Not yet archived · Original link
911-310-C PROPOSED ELEVATIONS-BLOCK A APARTMENT
Plan
Not yet archived · Original link
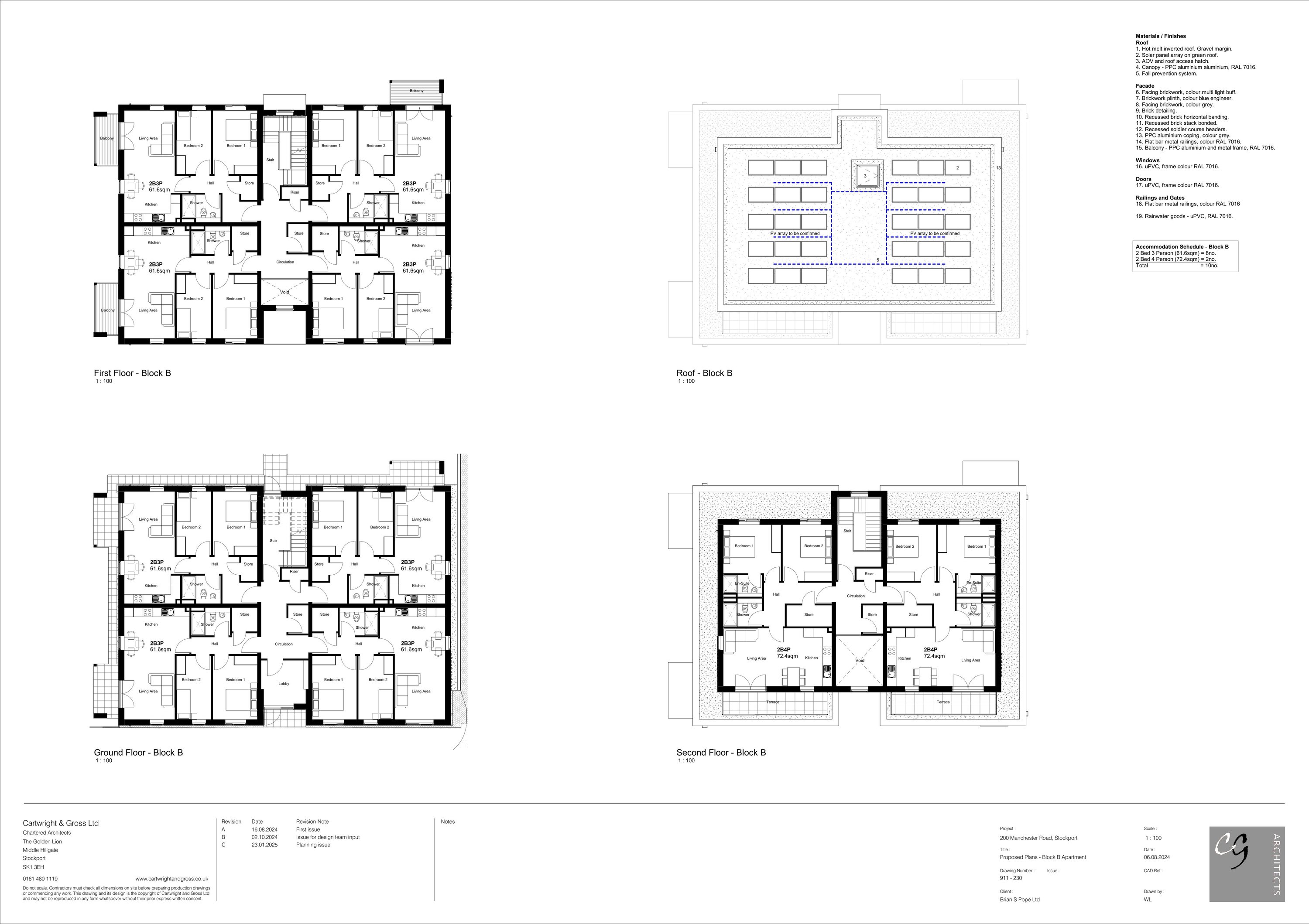
911-330-C PROPOSED ELEVATIONS-BLOCK B APARTMENT
Plan
Not yet archived · Original link
911-350-C PROPOSED ELEVATIONS-BLOCK C TOWN HOUSE
Plan
Not yet archived · Original link
911-370-C PROPOSED STREET ELEVATION-SHEET 1
Plan
Not yet archived · Original link
911-371-A PROPOSED STREET ELEVATION-SHEET 2
Plan
Not yet archived · Original link
911_PL01 ARCHITECTURAL DESIGN AND ACCESS STATEMENT (COMPRESSED 4MB)
Plan
Not yet archived · Original link
A6343 200 MANCHESTER ROAD HEATON NORRIS V1
Report
Not yet archived · Original link
AIR QUALITY COMMENTS
Consultee Comment
Not yet archived · Original link
APPLICATIONFORMREDACTED
ApplicationNoPersonalData
Not yet archived · Original link
ARBORICULTURE OFFICER COMMENTS
Consultee Comment
Not yet archived · Original link
ECOLOGY CONSULTEE RESPONSE
Consultee Comment
Not yet archived · Original link
EQ COMMENTS
Consultee Comment
Not yet archived · Original link
HIGHWAYS CONSULTATION RESPONSE
Consultee Comment Highways
Not yet archived · Original link
LLFA COMMENTS
Consultee Comment
Not yet archived · Original link
PM.FULL.20.12.24 - BRIAN S. POPE LTD 200 MANCHESTER ROAD HEATON NORRIS STOCKPORT
Report
Not yet archived · Original link
POLICY COMMENT ON EDUCATION CONTRIBUTION
Consultee Comment
Not yet archived · Original link
PRESS NOTICE
Notice
Not yet archived · Original link
PRESS NOTICE
Notice
Not yet archived · Original link
RHE 4407 PEA BNG ASSESSMENT AT 200 MANCHESTER ROAD HEATON NORRIS 2024
Report
Not yet archived · Original link
SP 200 MANCHESTER ROAD PS
Report
Not yet archived · Original link
STATUTORY_BIODIVERSITY_METRIC_CONDITION_ASSESSMENTS23.07.24_200 MANCHESTER
Report
Not yet archived · Original link
THE_STATUTORY_BIODIVERSITY_METRIC_CALCULATION_TOOL
Report
Not yet archived · Original link
UNITED UTILITIES
Consultee Comment
Not yet archived · Original link

Have your say

Your comment matters. Councils must consider every representation that raises material planning considerations.

Write a comment