← Stockport Metropolitan Borough Council

Status

Registered New housing
Received
13 Nov 2025
New homes
1

Full proposal

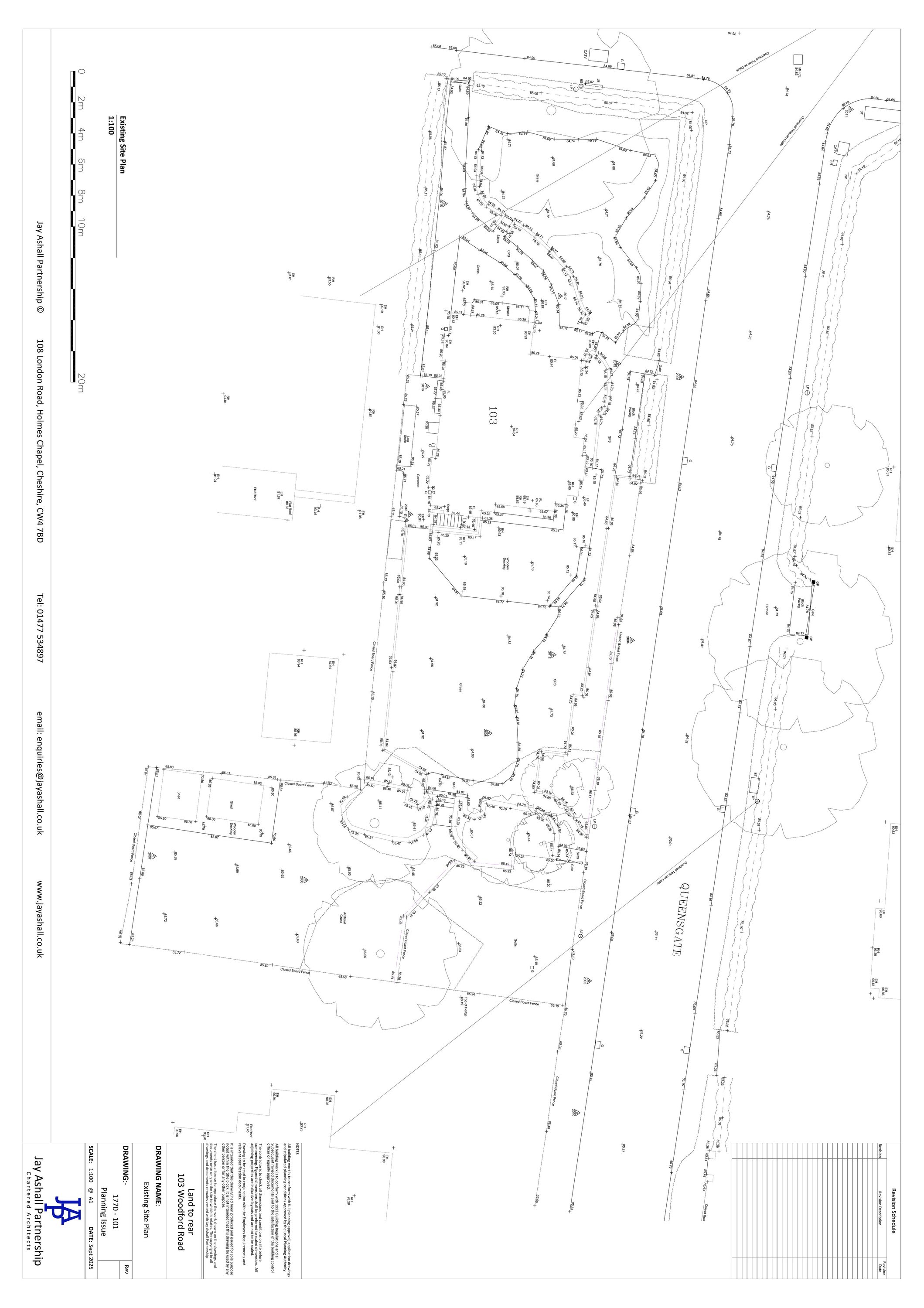
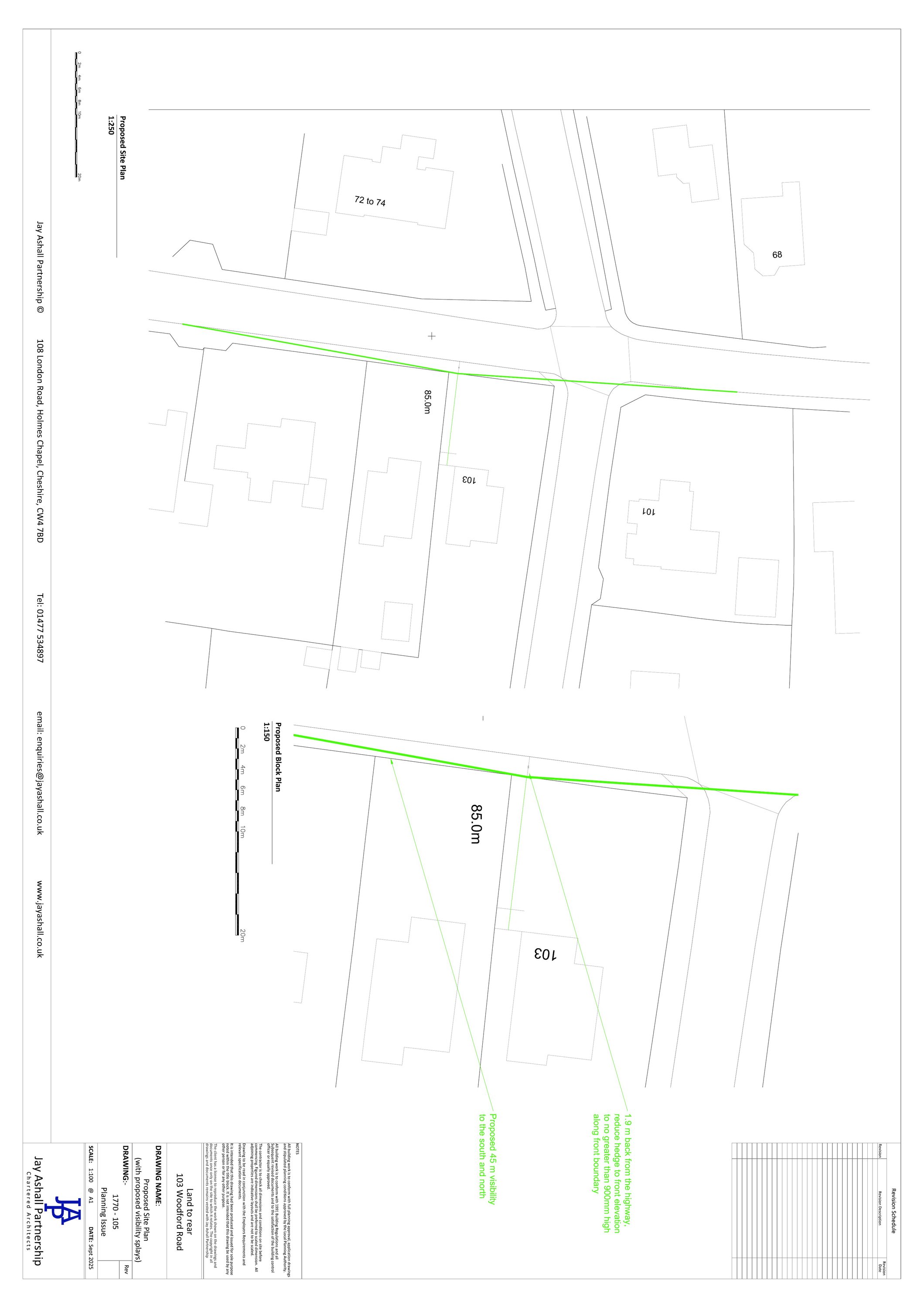
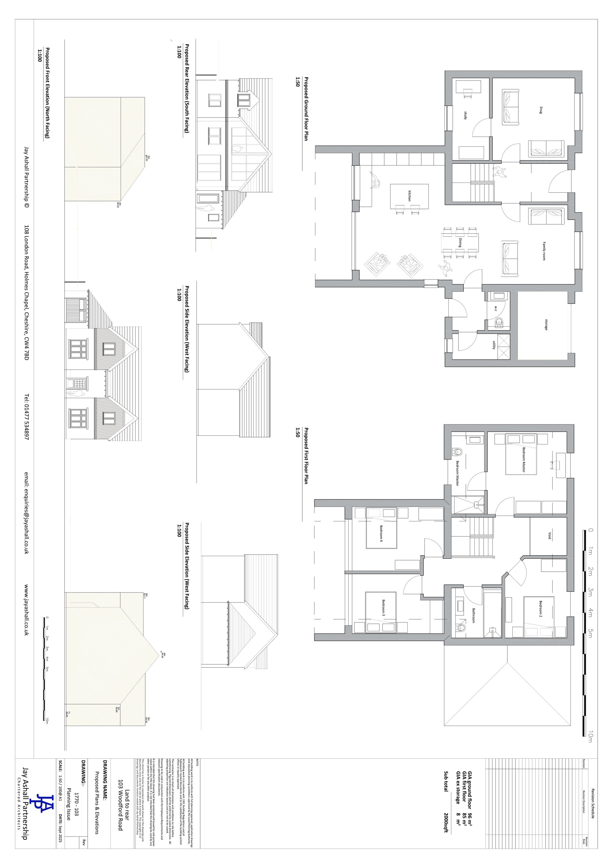
Construction of a new residential dwelling within the grounds and change of pedestrian access to 103 Woodford Road to a vehicular access

Documents

ARBORICULTURAL IMPLICATIONS ASSESSMENT
Report
Not yet archived · Original link
ARBORICULTURAL METHOD STATEMENT
Report
Not yet archived · Original link
BNG REPORT
BNG Statement
Not yet archived · Original link
BREL COMPLIANCE REPORT
Report
Not yet archived · Original link
DESIGN, ACCESS AND PLANNING STATEMENT
Report
Not yet archived · Original link
DRAINAGE STRATEGY REPORT V2 09.01.26.PDF
Report
Not yet archived · Original link
ENERGY REPORT
Report
Not yet archived · Original link
ENERGY STATEMENT
Report
Not yet archived · Original link
FULL SAP (AS DESIGNED).P
Plan
Not yet archived · Original link
HERITAGE STATEMENT
Report
Not yet archived · Original link
LOCATION PLAN
1250 Plan
Not yet archived · Original link
PREDICTED ENERGY ASSESSMENT
Report
Not yet archived · Original link

Have your say

Your comment matters. Councils must consider every representation that raises material planning considerations.

Write a comment