← Stockport Metropolitan Borough Council
DC/098003
Stockport Metropolitan Borough Council
Status
Registered
Change of use
Received
09 Jan 2026
New homes
14
Full proposal
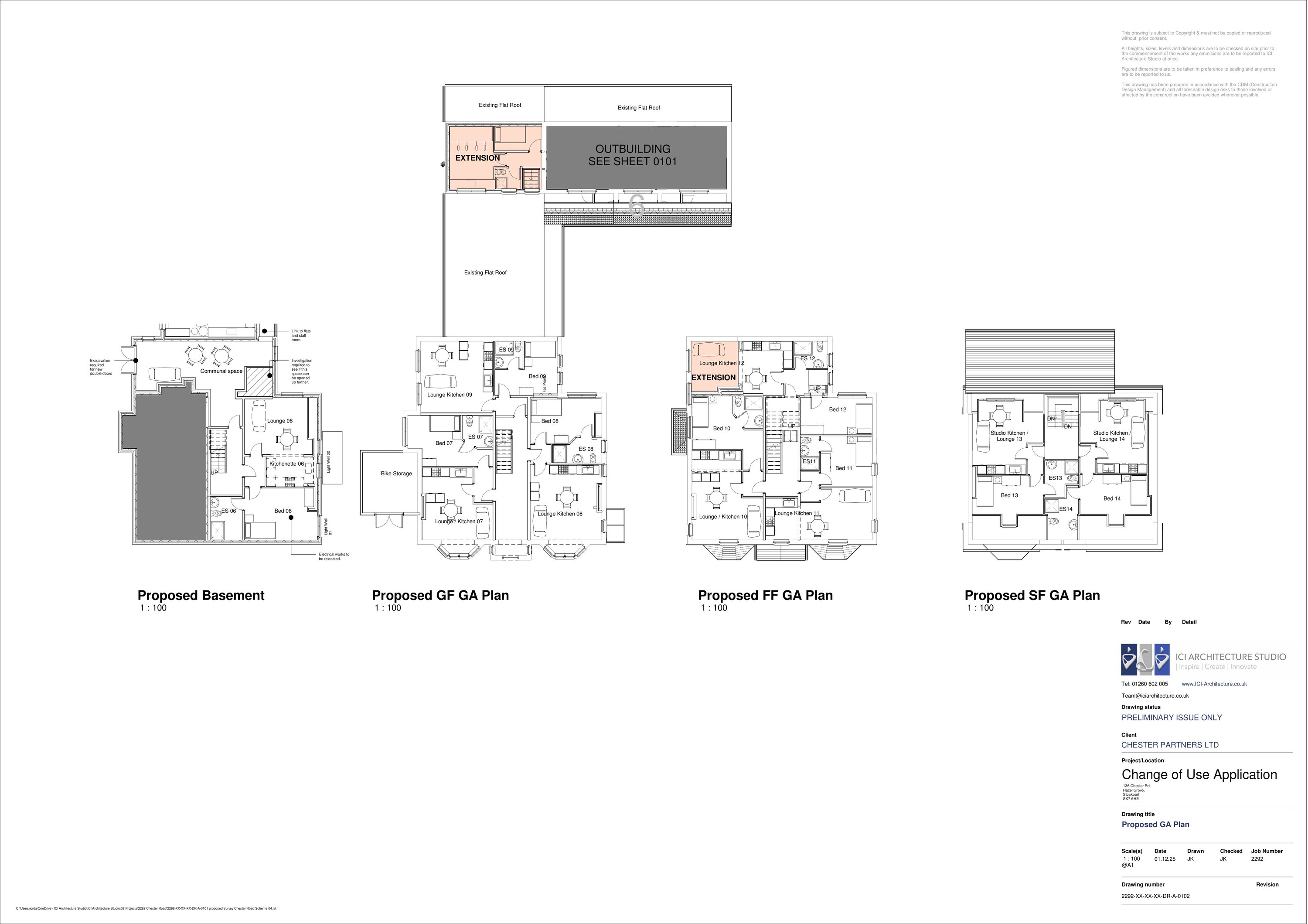
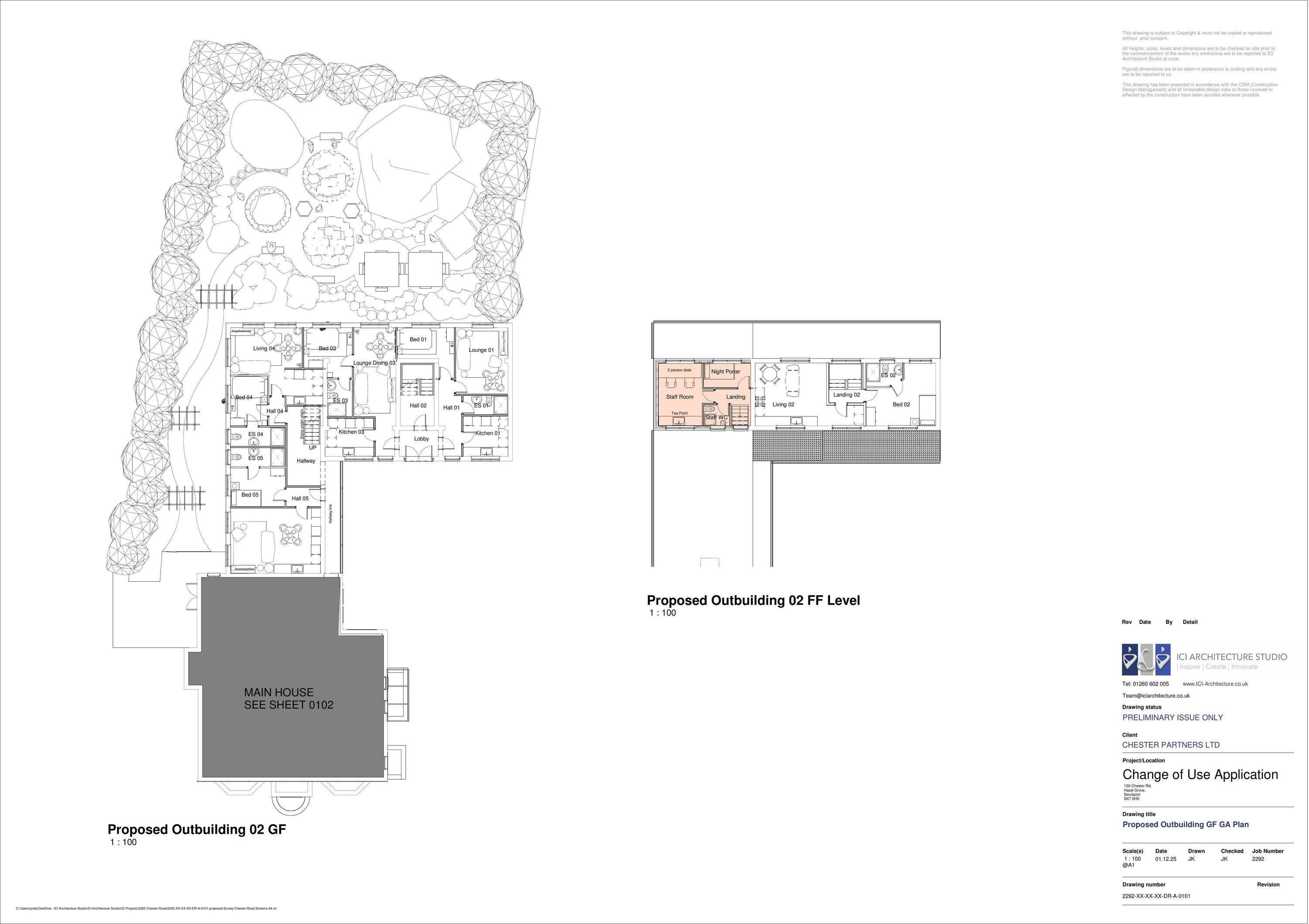
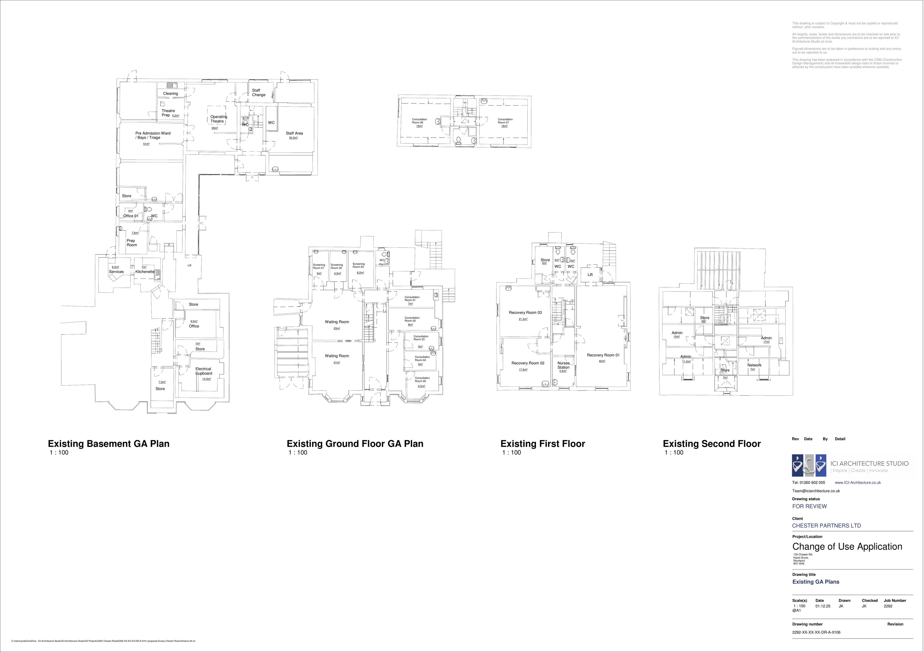
Change of use of former South Manchester Private Clinic (Use Class E) to 14no. 1-bed flats (Use Class C3).
Documents
Have your say
Your comment matters. Councils must consider every representation that raises material planning considerations.