← Stockport Metropolitan Borough Council
DC/098503
Stockport Metropolitan Borough Council
Status
Registered
House extension
Received
Last month
New homes
0
Full proposal
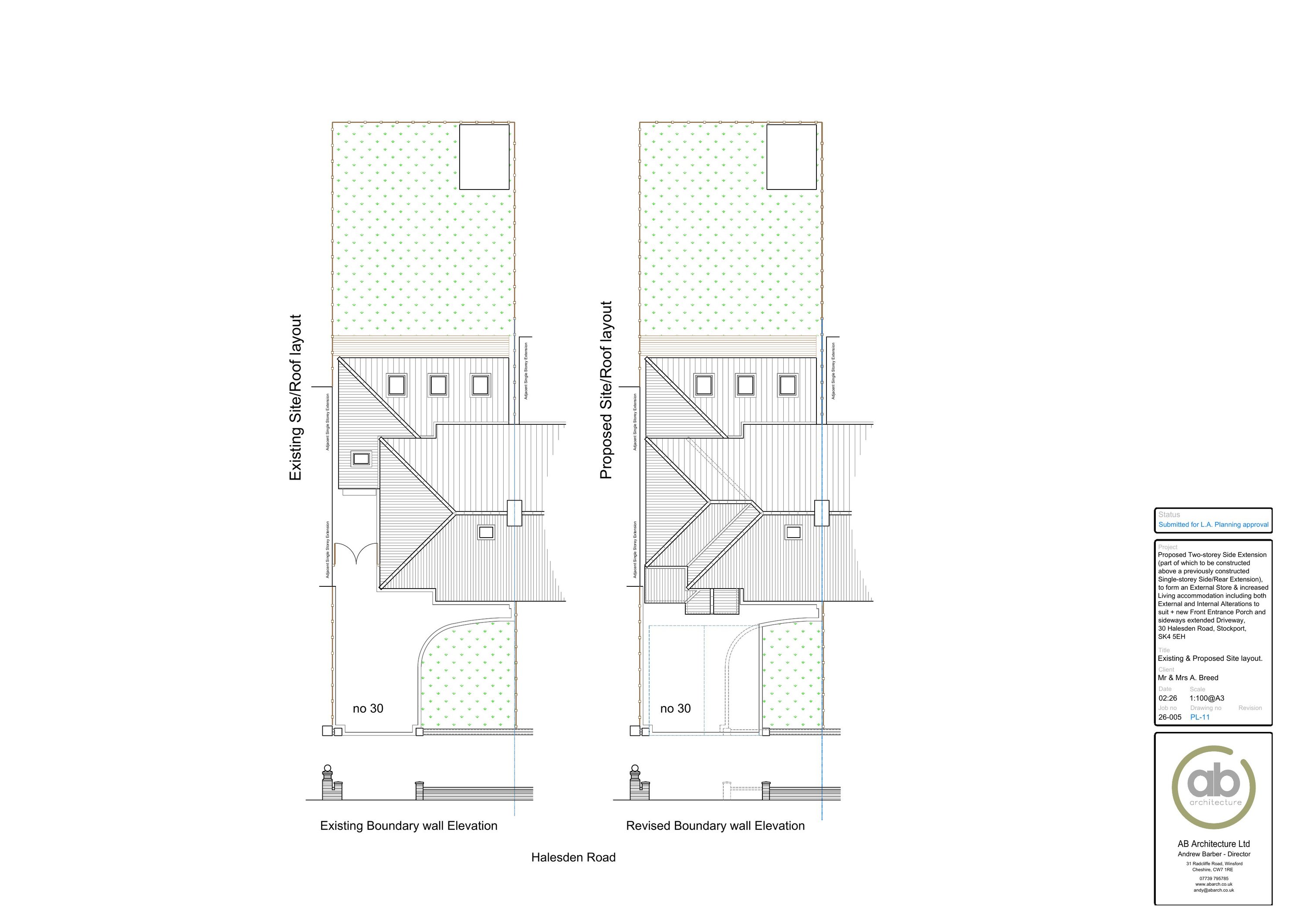
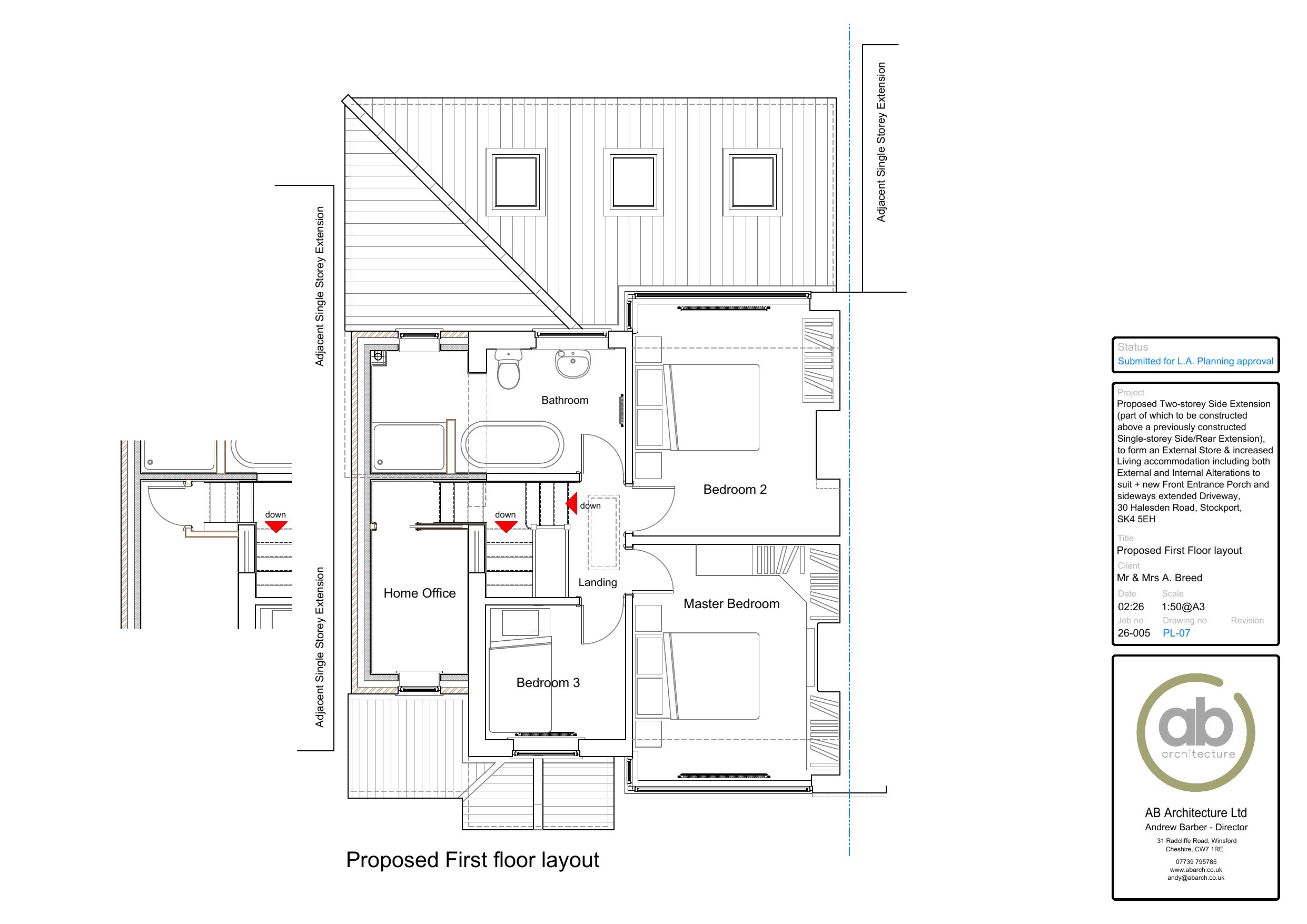
Erection of a two-storey side extension and single storey front extension (porch). Demolition of a section of the front boundary wall to provide increase in hardstanding to front.
Documents
Have your say
Your comment matters. Councils must consider every representation that raises material planning considerations.