← Stockport Metropolitan Borough Council
DC/098518
Stockport Metropolitan Borough Council
Status
Registered
House extension
Received
29 days ago
New homes
0
Full proposal
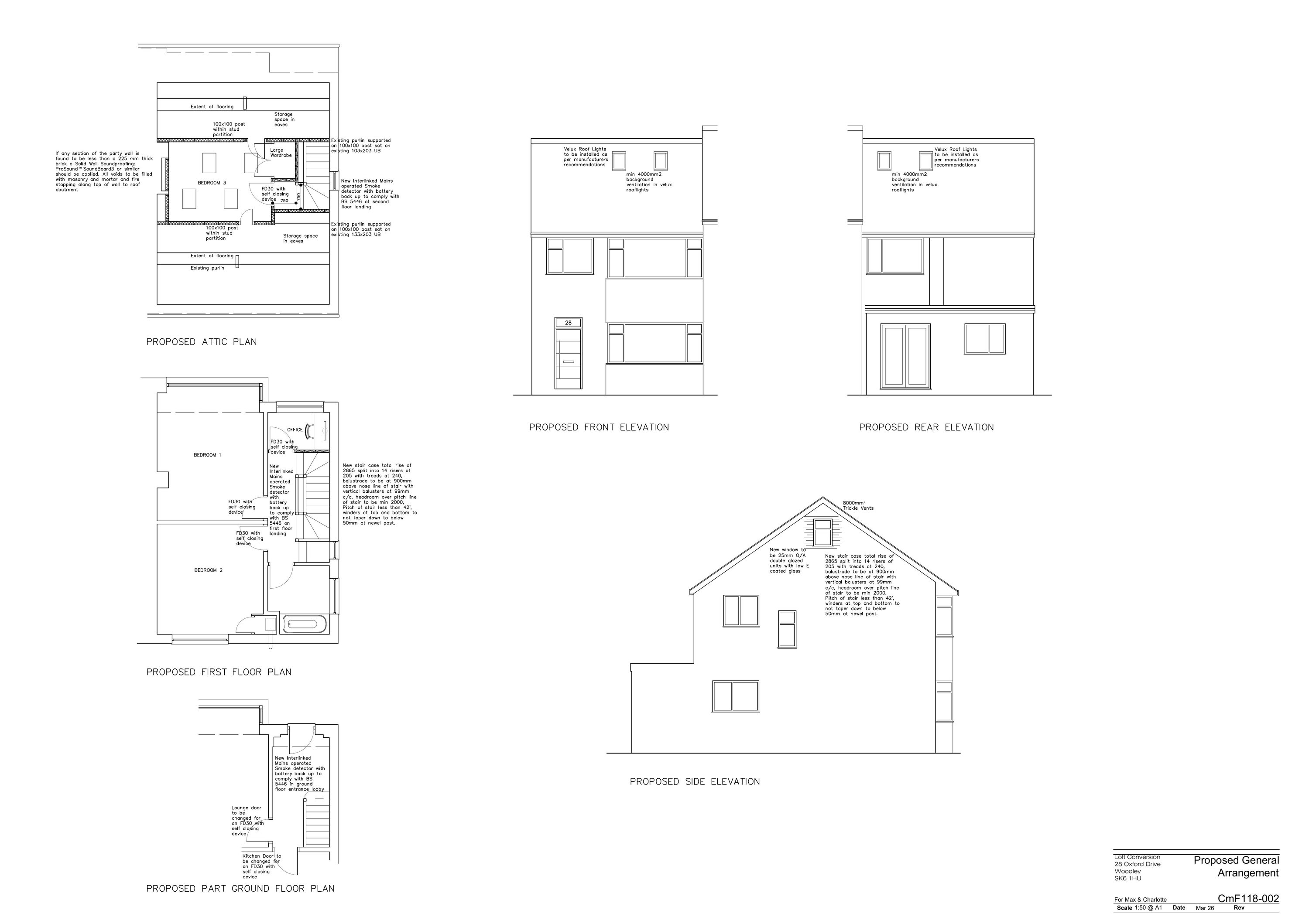
Proposed loft conversion to include front and rear roof lights, plus second floor side elevation window
Documents
Have your say
Your comment matters. Councils must consider every representation that raises material planning considerations.