S.24/2325/HHOLD
Stroud District Council
Status
Permitted
House extension
Received
31 Dec 2024
New homes
0
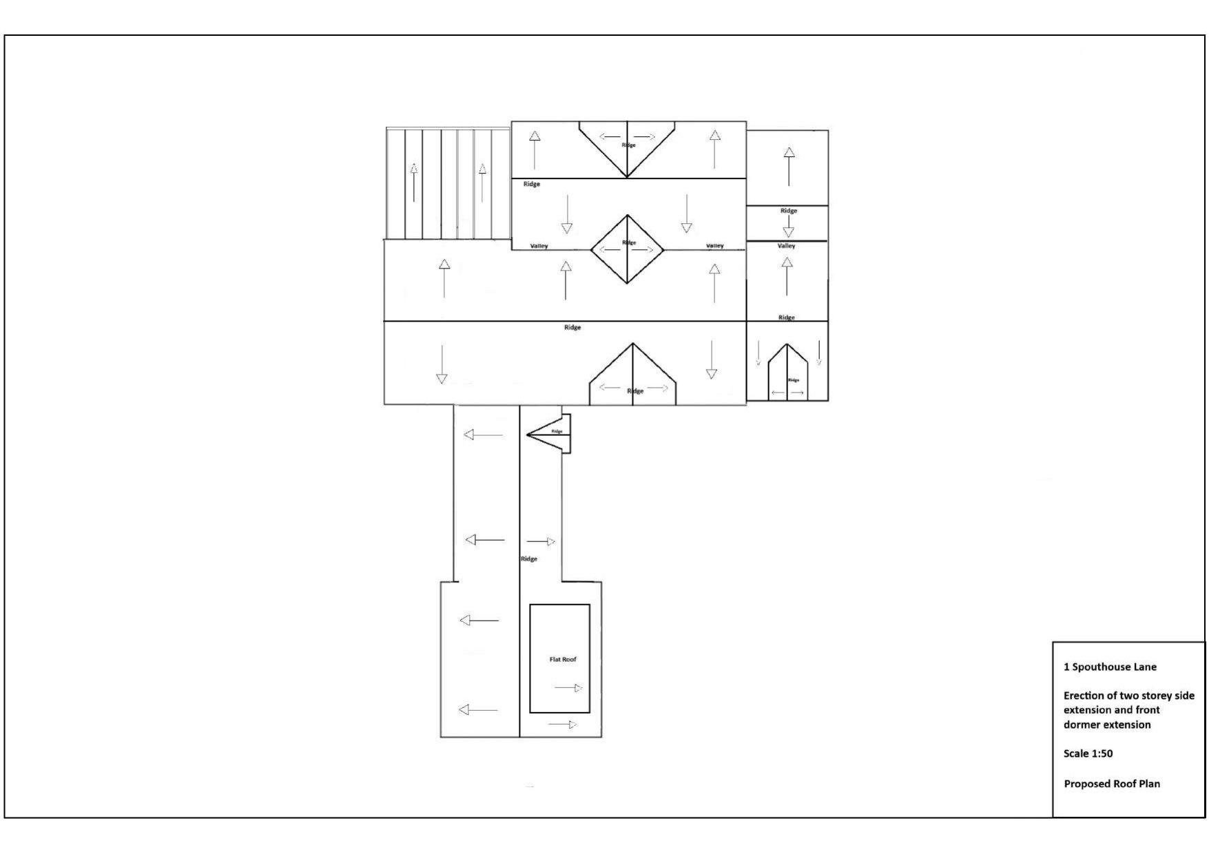
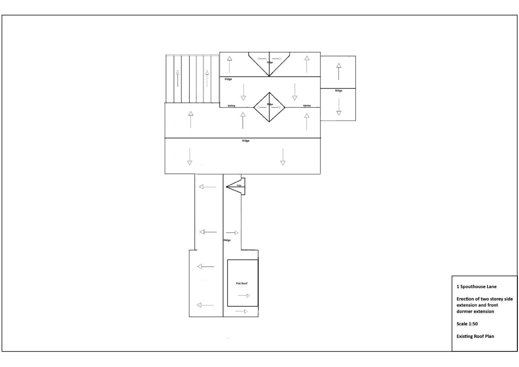
Full proposal
Erection of a two storey side extension and front dormer extensions.
Documents
Have your say
Your comment matters. Councils must consider every representation that raises material planning considerations.