← Stroud District Council

Status

Permitted House extension
Received
09 Jan 2025
New homes
0

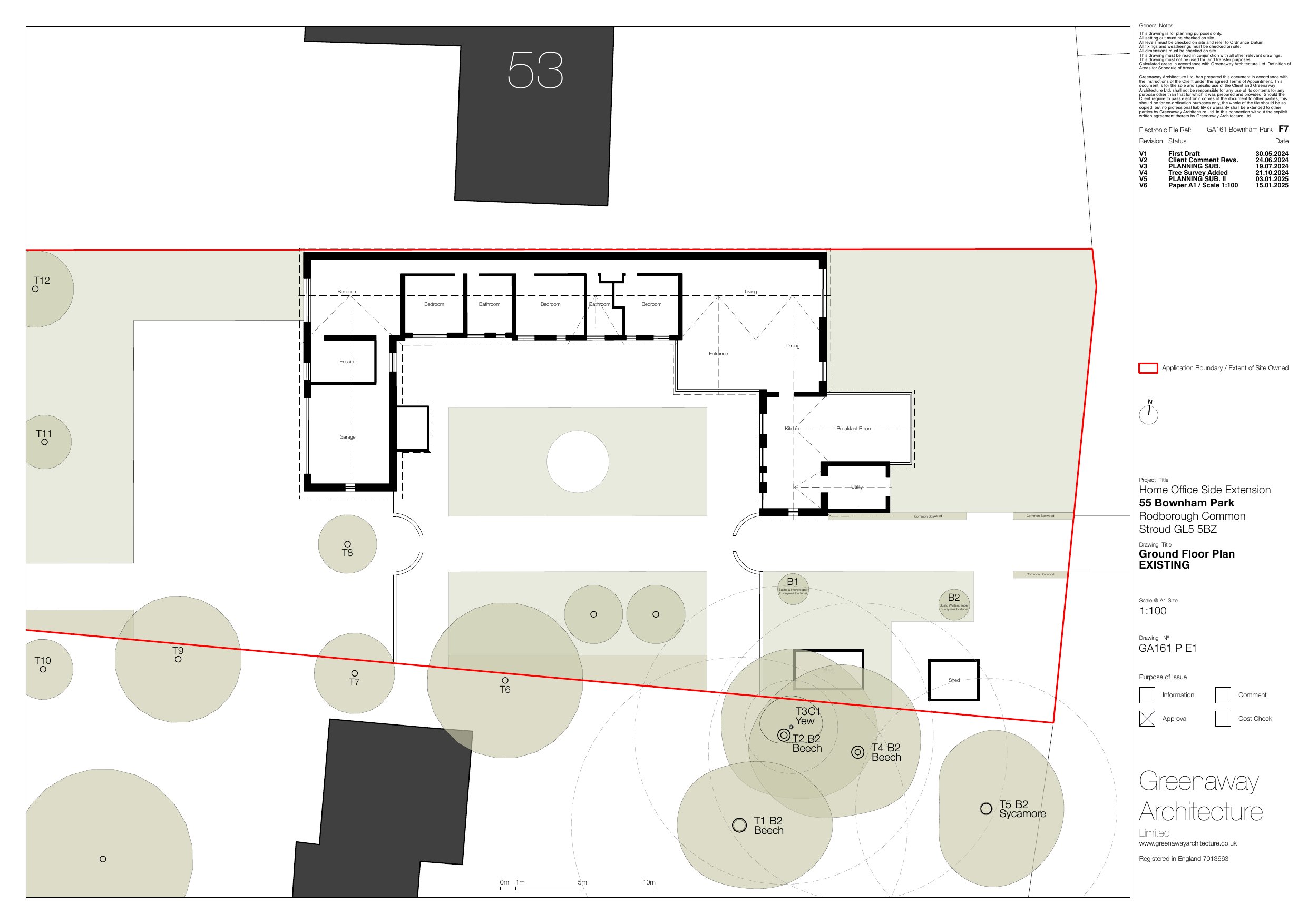
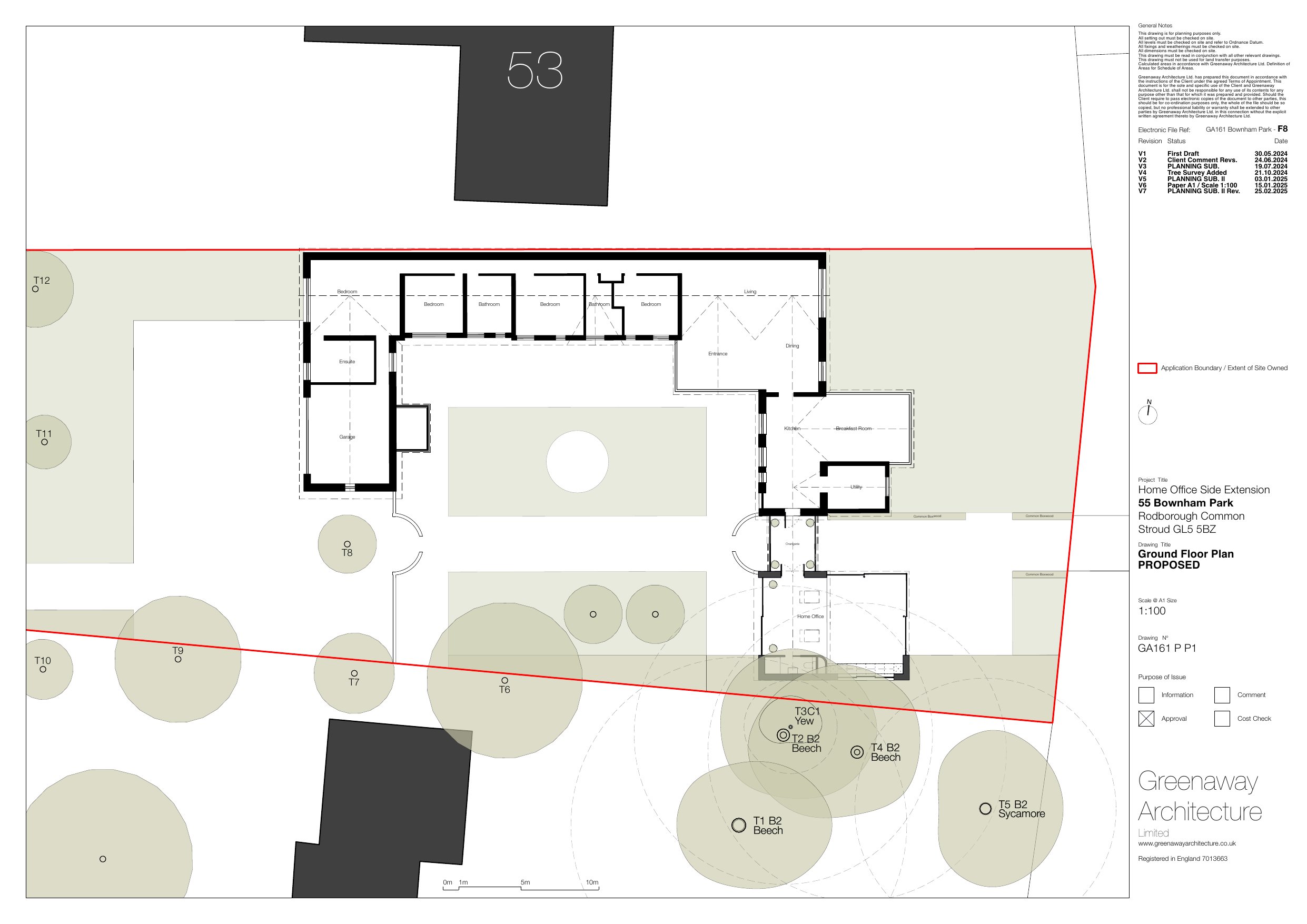
Full proposal

Erection of a single storey extension with associated landscaping.

Documents

Application Form
Archived · Original link
Design and Access Statement
Archived · Original link
Drawing
Archived · Original link
Drawing
Archived · Original link
Drawing
Archived · Original link
Decision
Archived · Original link
Supporting Document
Archived · Original link
Revised Drawing
Archived · Original link
Revised Drawing
Archived · Original link
Revised Drawing
Archived · Original link
Revised Drawing
Archived · Original link

Have your say

Your comment matters. Councils must consider every representation that raises material planning considerations.

Write a comment