S.25/0031/HHOLD
Stroud District Council
Status
Permitted
House extension
Received
09 Jan 2025
New homes
0
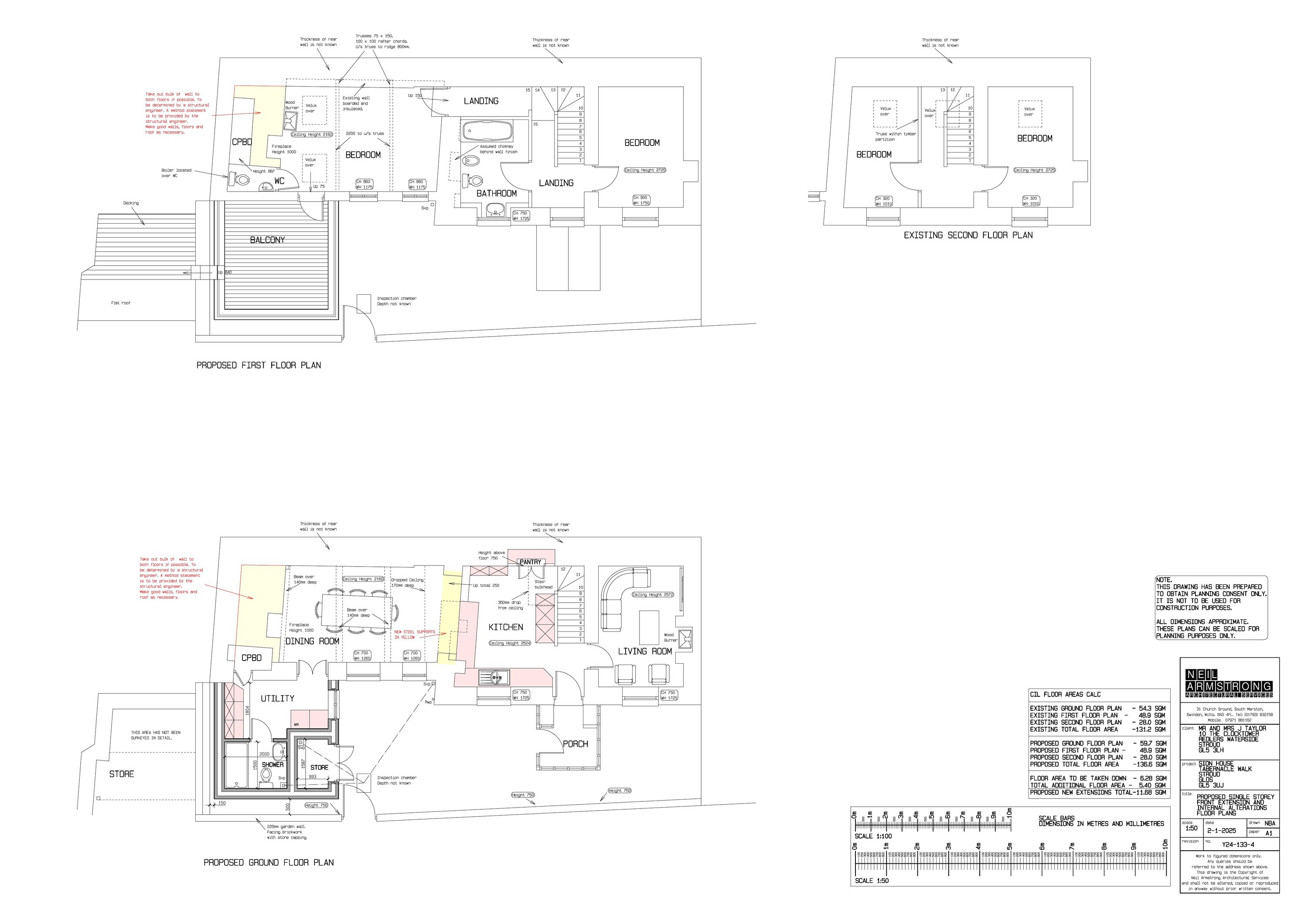
Full proposal
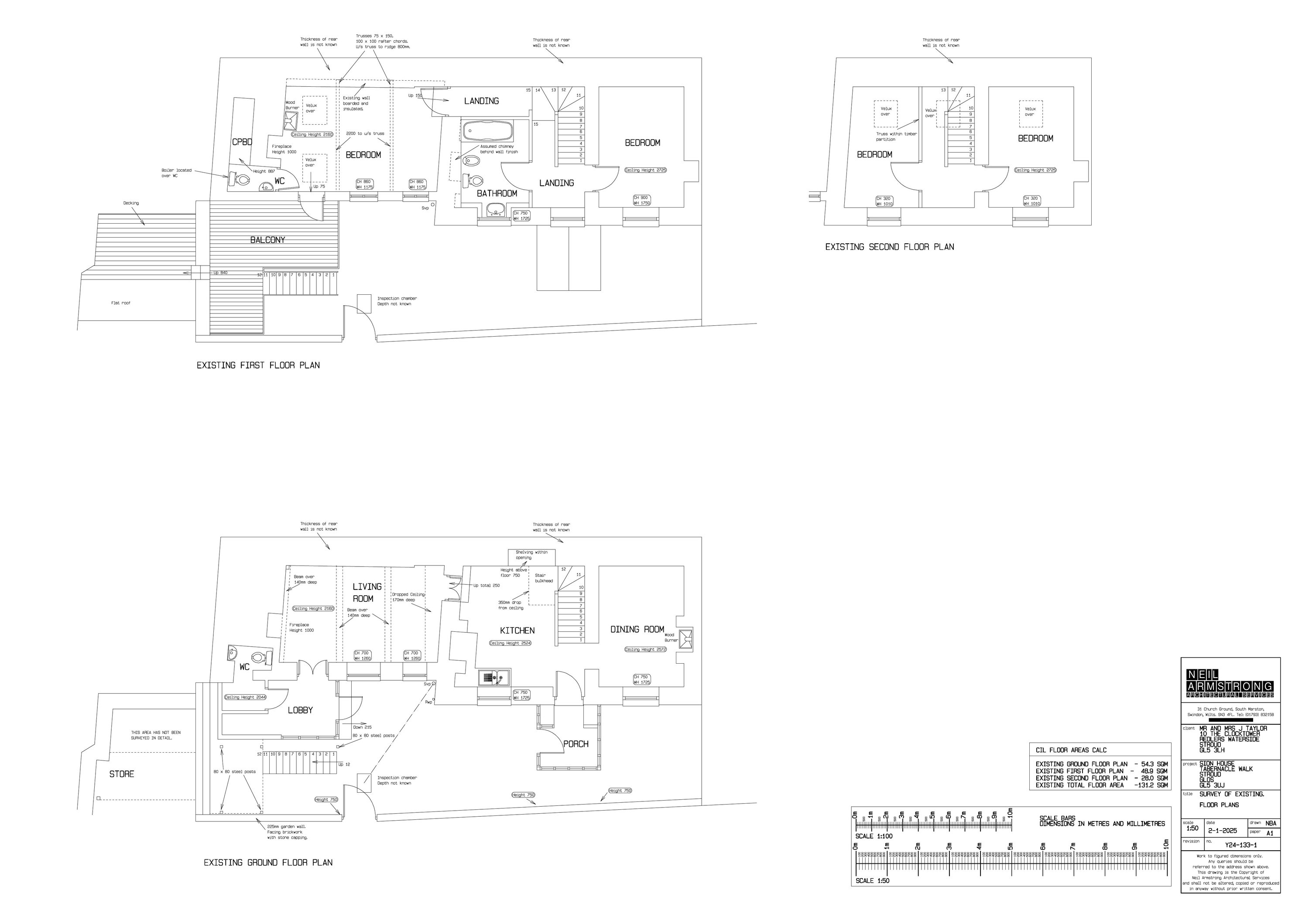
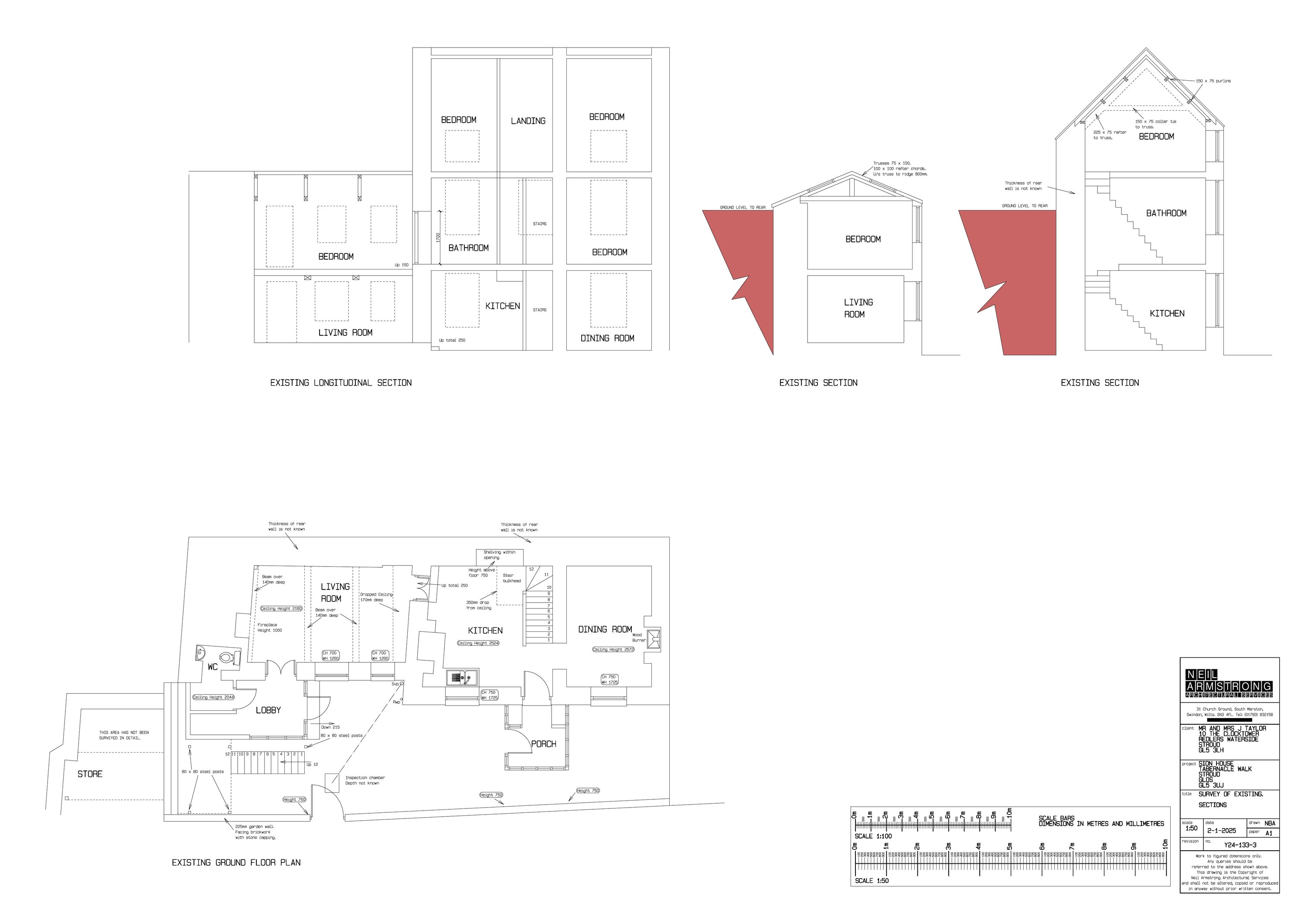
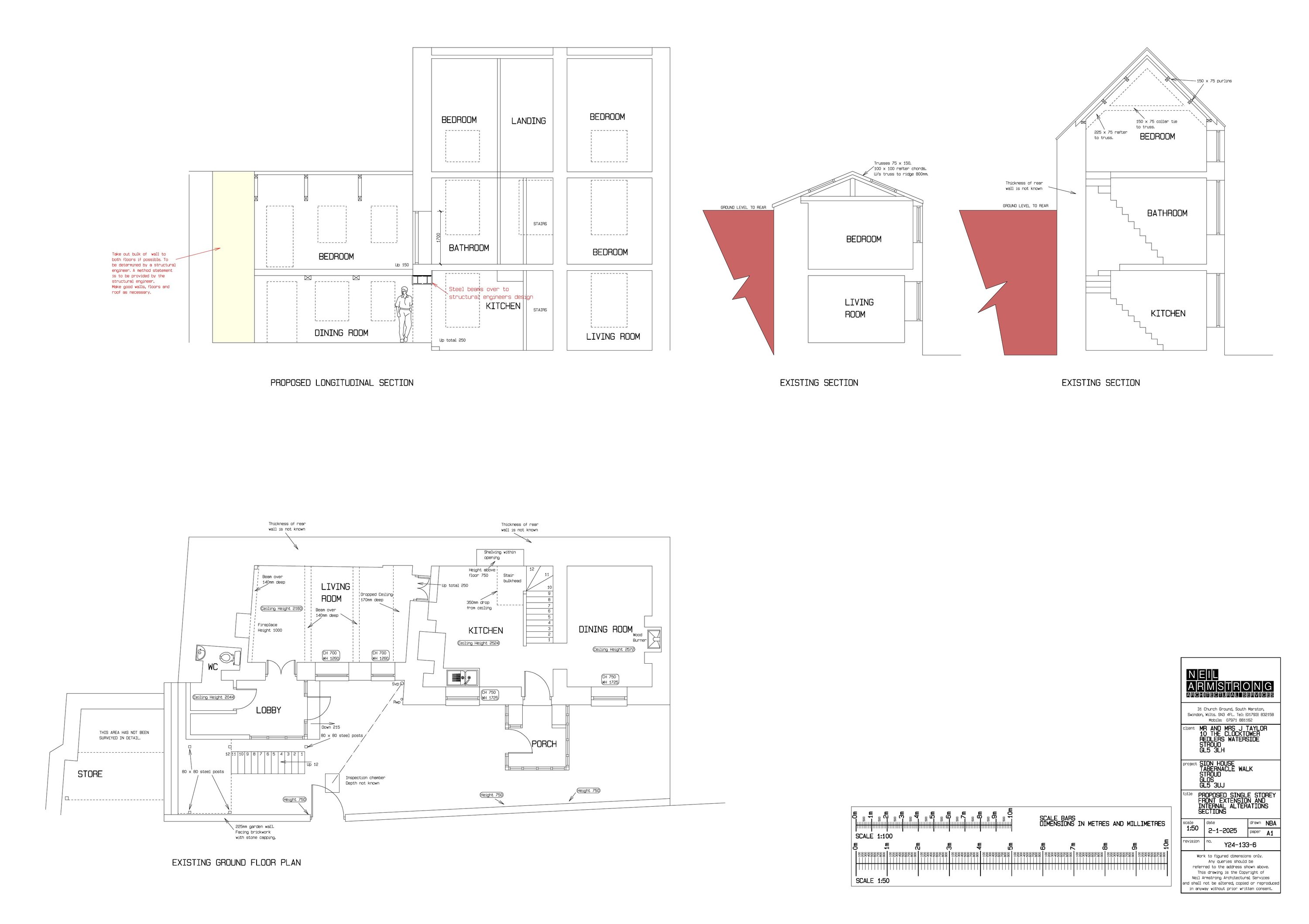
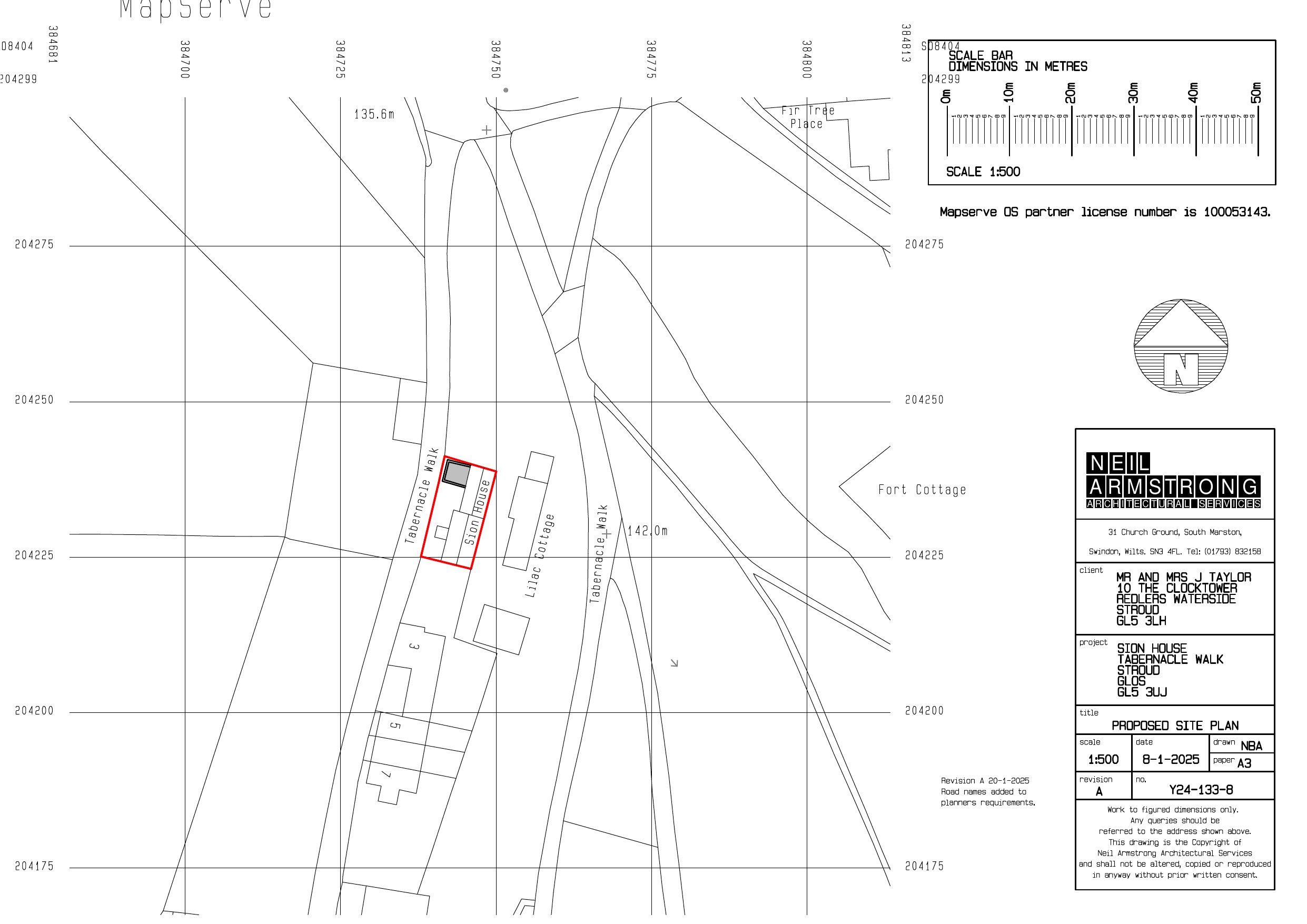
Erection of a single storey front extension with balcony extension above.
Documents
Have your say
Your comment matters. Councils must consider every representation that raises material planning considerations.