← Stroud District Council

Status

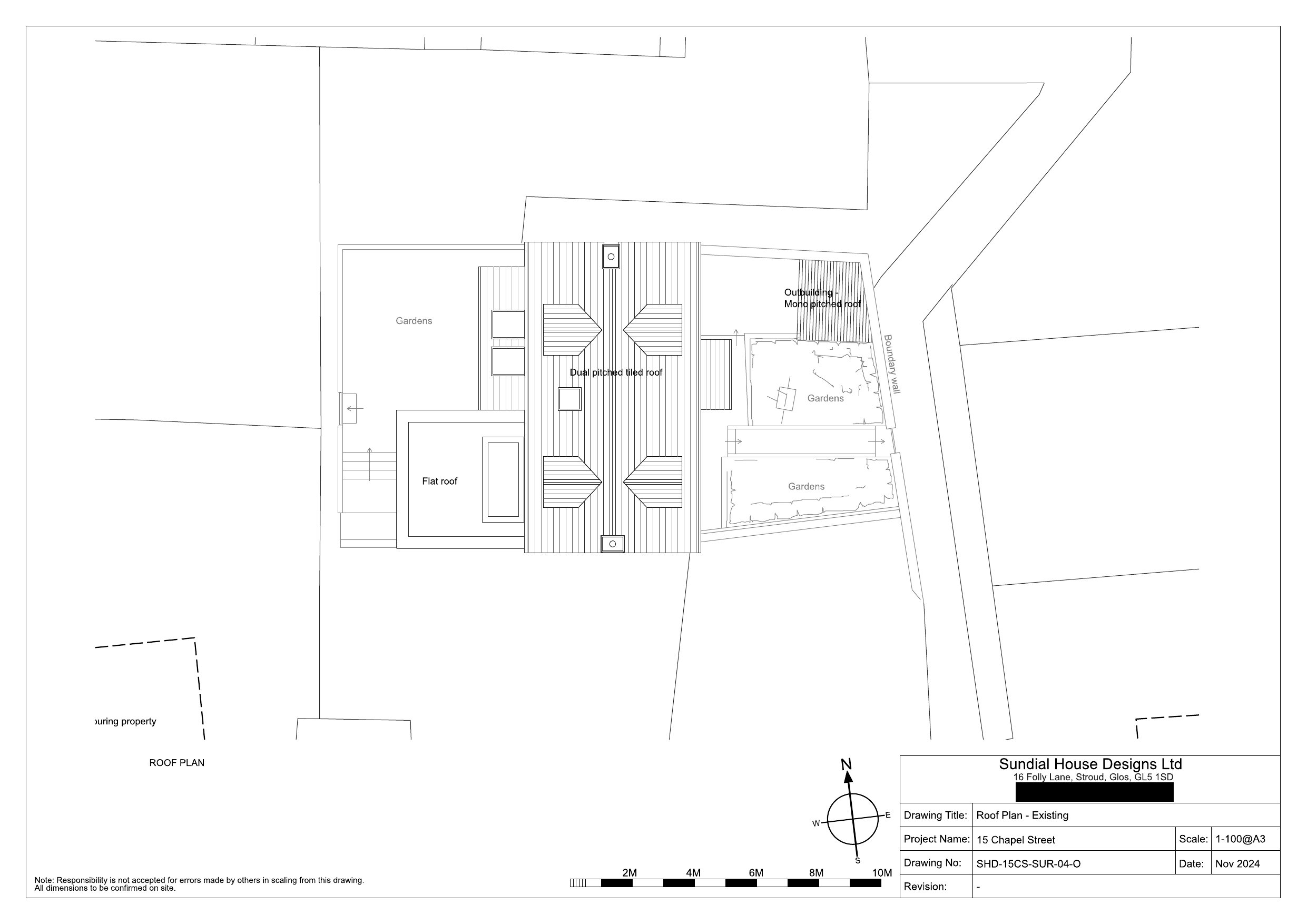
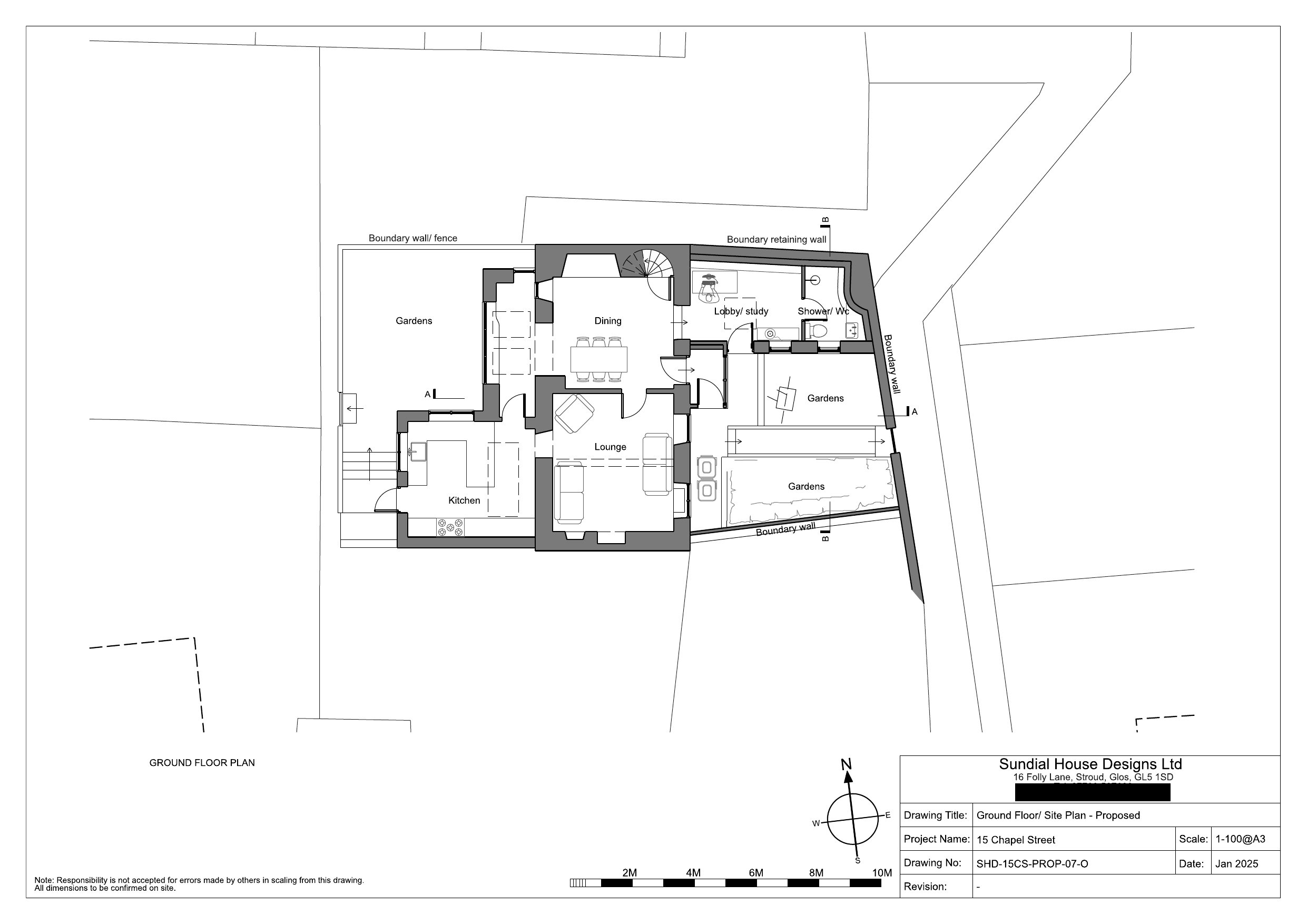
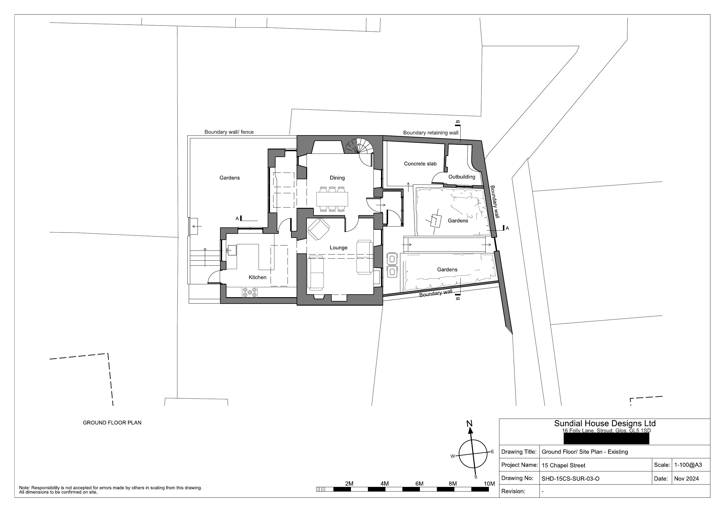
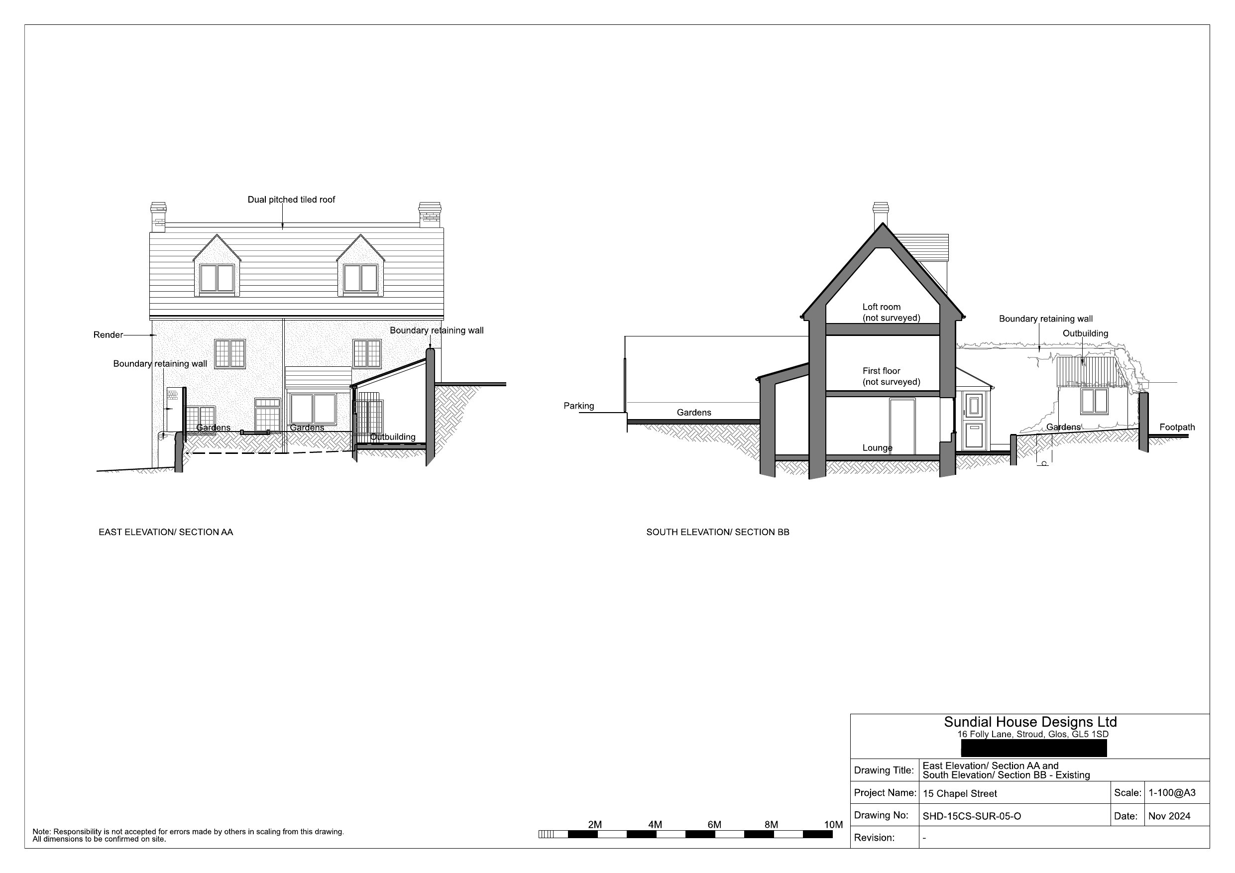
Permitted House extension
Received
07 Jan 2025
New homes
0

Full proposal

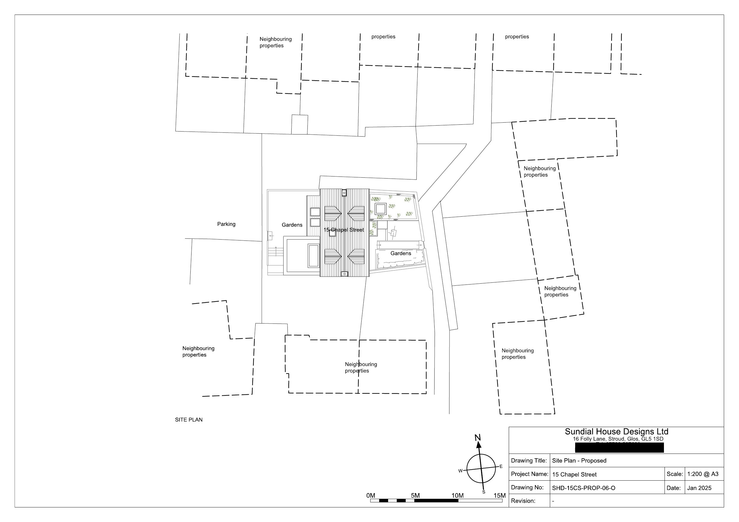
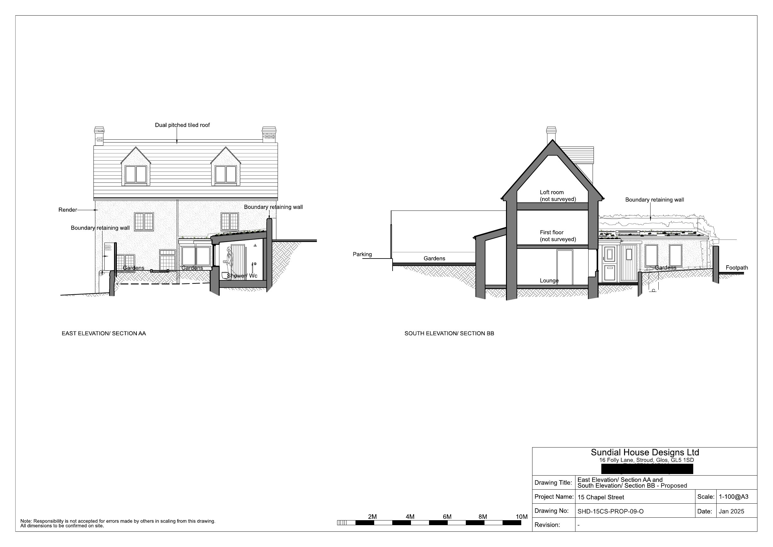
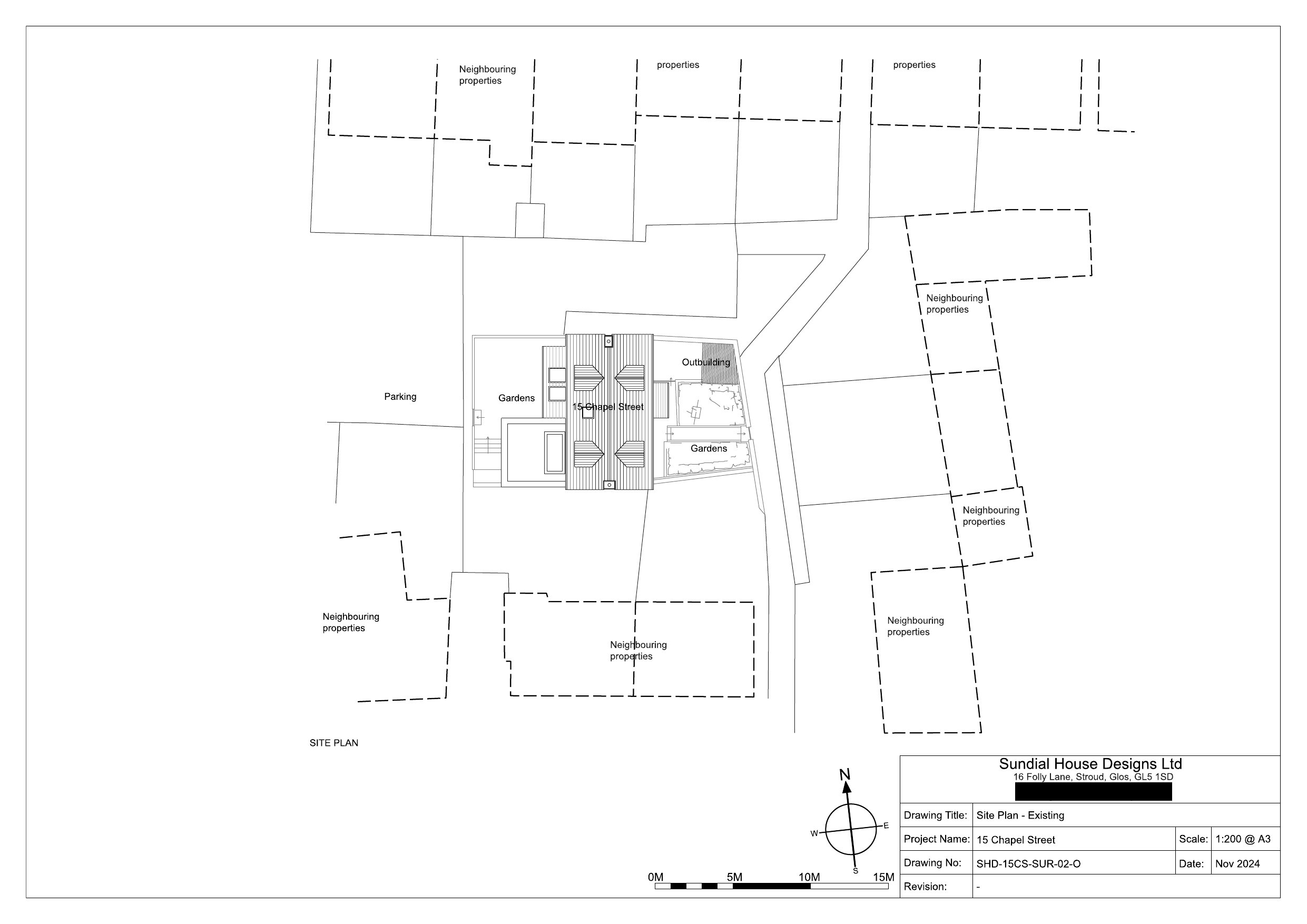
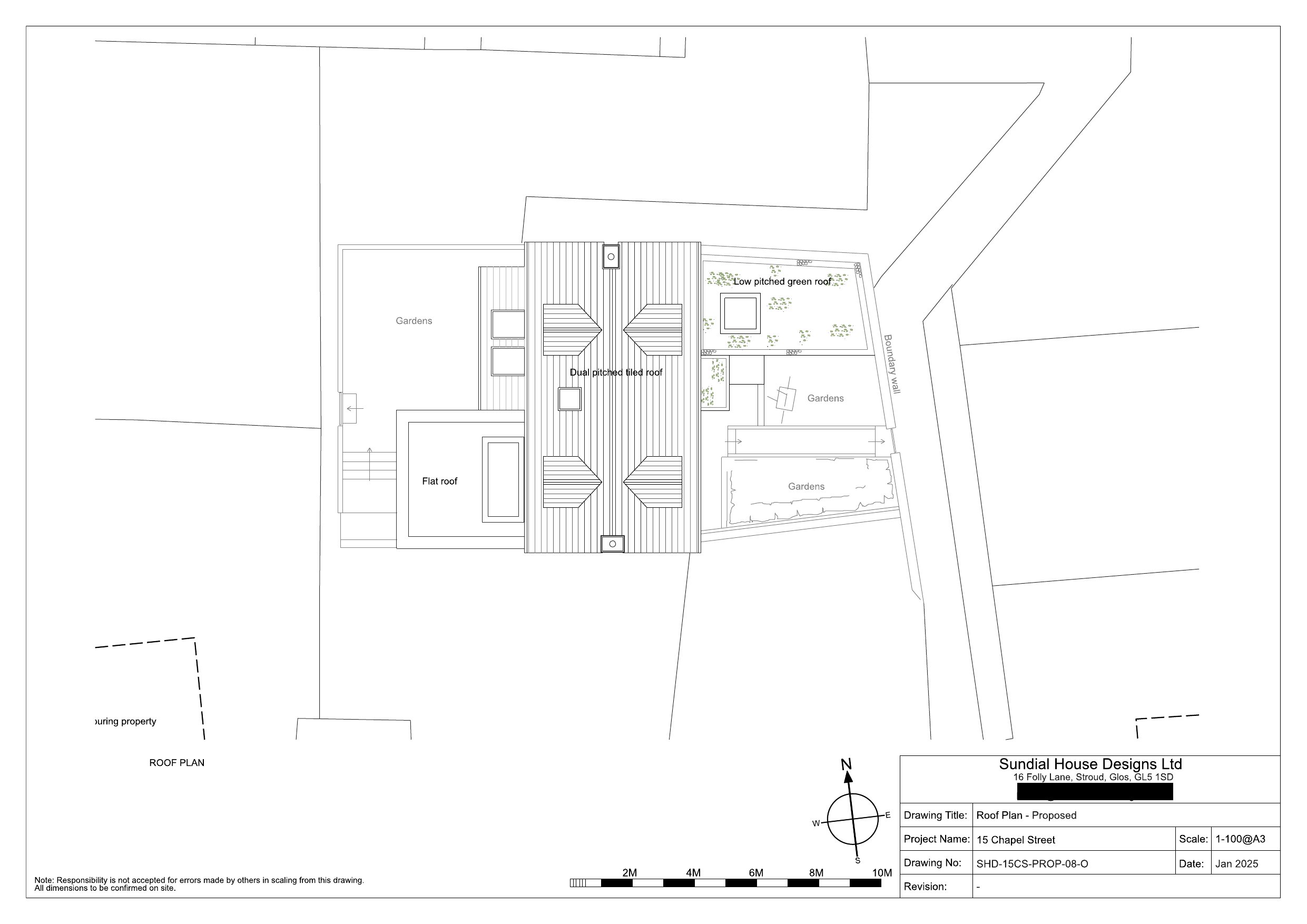
Erection of a single storey front extension.

Documents

Application Form
Archived · Original link
Supporting Document
Archived · Original link
Drawing
Archived · Original link
Drawing
Archived · Original link
Decision
Archived · Original link
Drawing
Archived · Original link
Drawing
Archived · Original link
Drawing
Archived · Original link

Have your say

Your comment matters. Councils must consider every representation that raises material planning considerations.

Write a comment