← Stroud District Council

Status

Permitted House extension
Received
20 Jan 2025
New homes
0

Full proposal

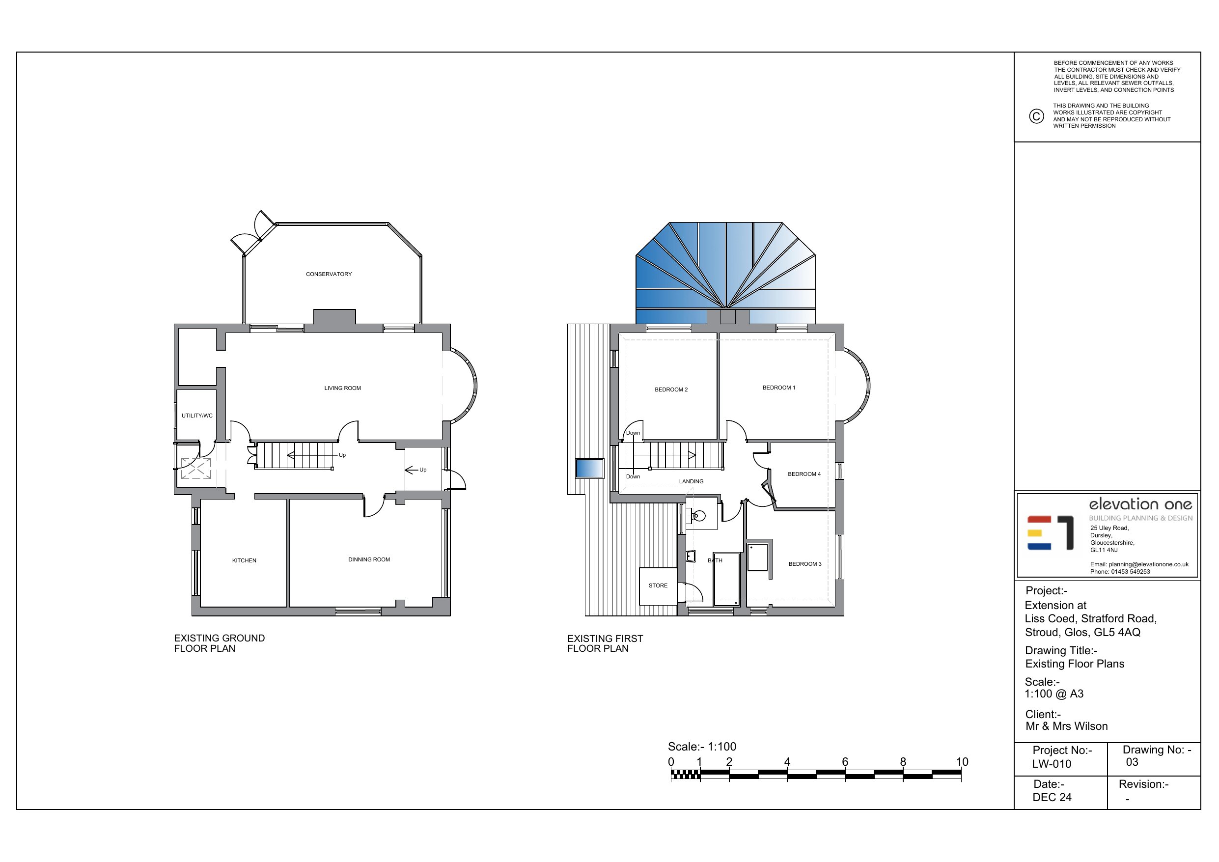
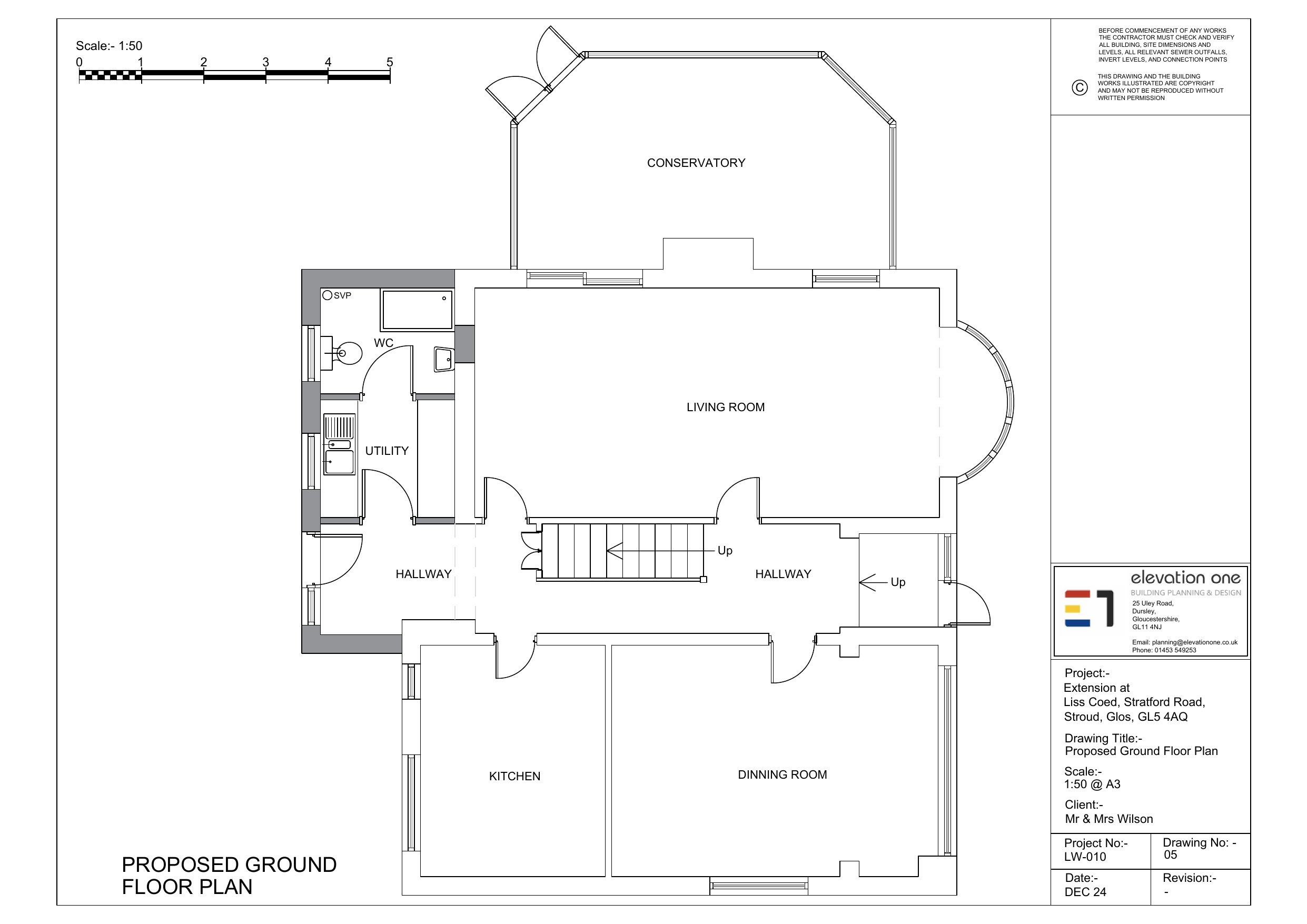
Erection of two storey extension.

Documents

Application Form
Archived · Original link
Drawing
Archived · Original link
Drawing
Archived · Original link
Decision
Archived · Original link
Drawing
Archived · Original link
Revised Drawing
Archived · Original link
Revised Drawing
Archived · Original link
Drawing
Archived · Original link

Have your say

Your comment matters. Councils must consider every representation that raises material planning considerations.

Write a comment