S.25/0130/HHOLD
Stroud District Council
Status
Permitted
House extension
Received
22 Jan 2025
New homes
0
Full proposal
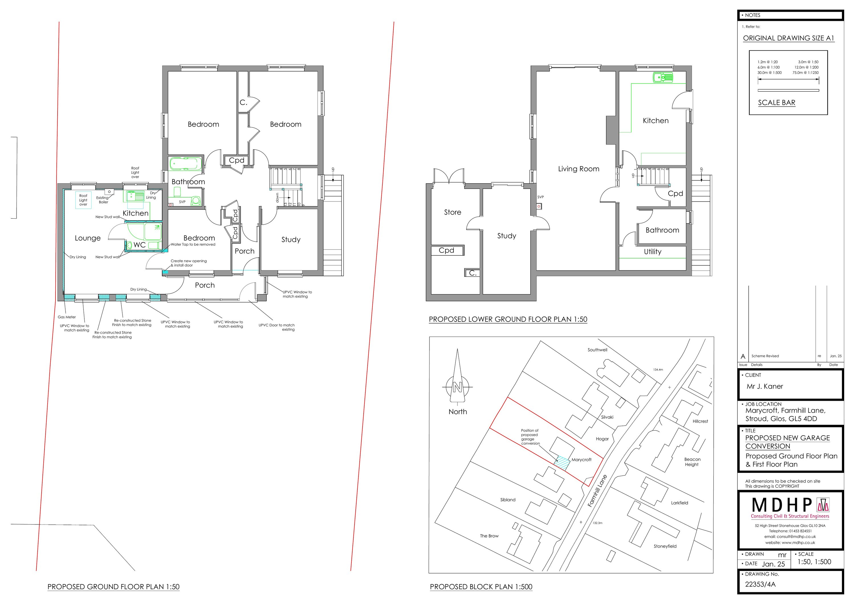
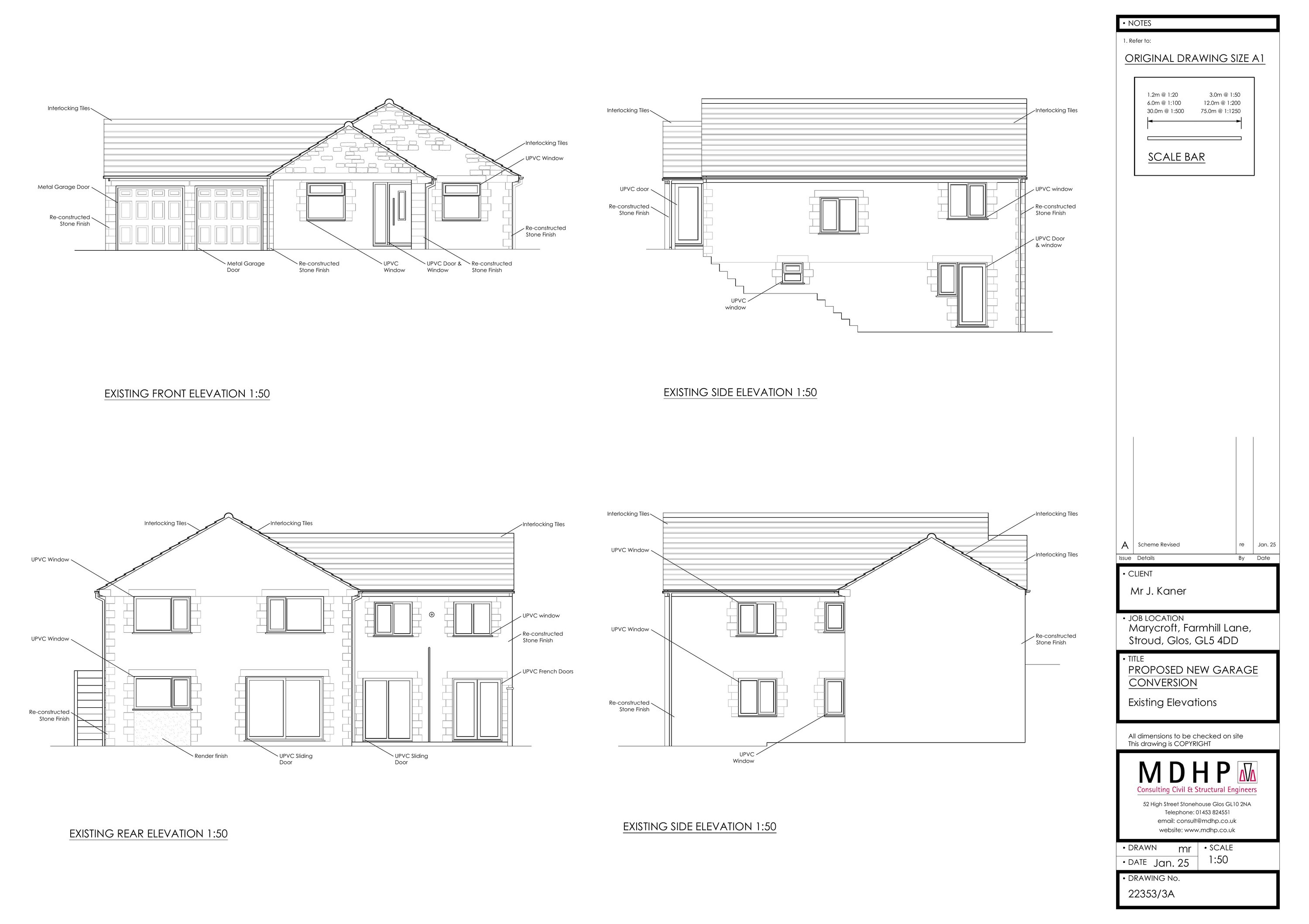
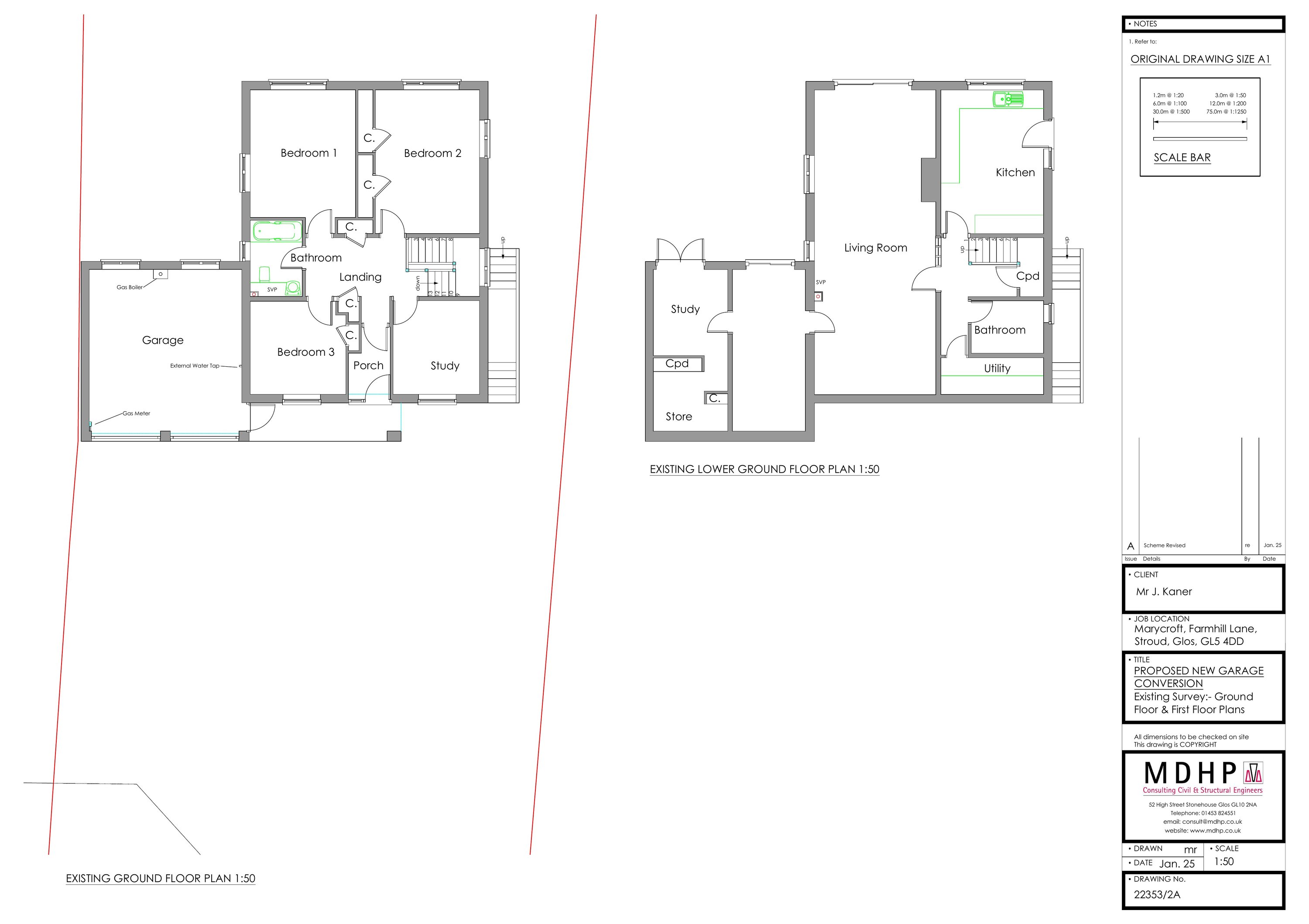
Garage conversion to create an integral annexe (for dependant) and to enclose porch area.
Documents
Have your say
Your comment matters. Councils must consider every representation that raises material planning considerations.