← Stroud District Council

Status

Permitted House extension
Received
22 Jan 2025
New homes
0

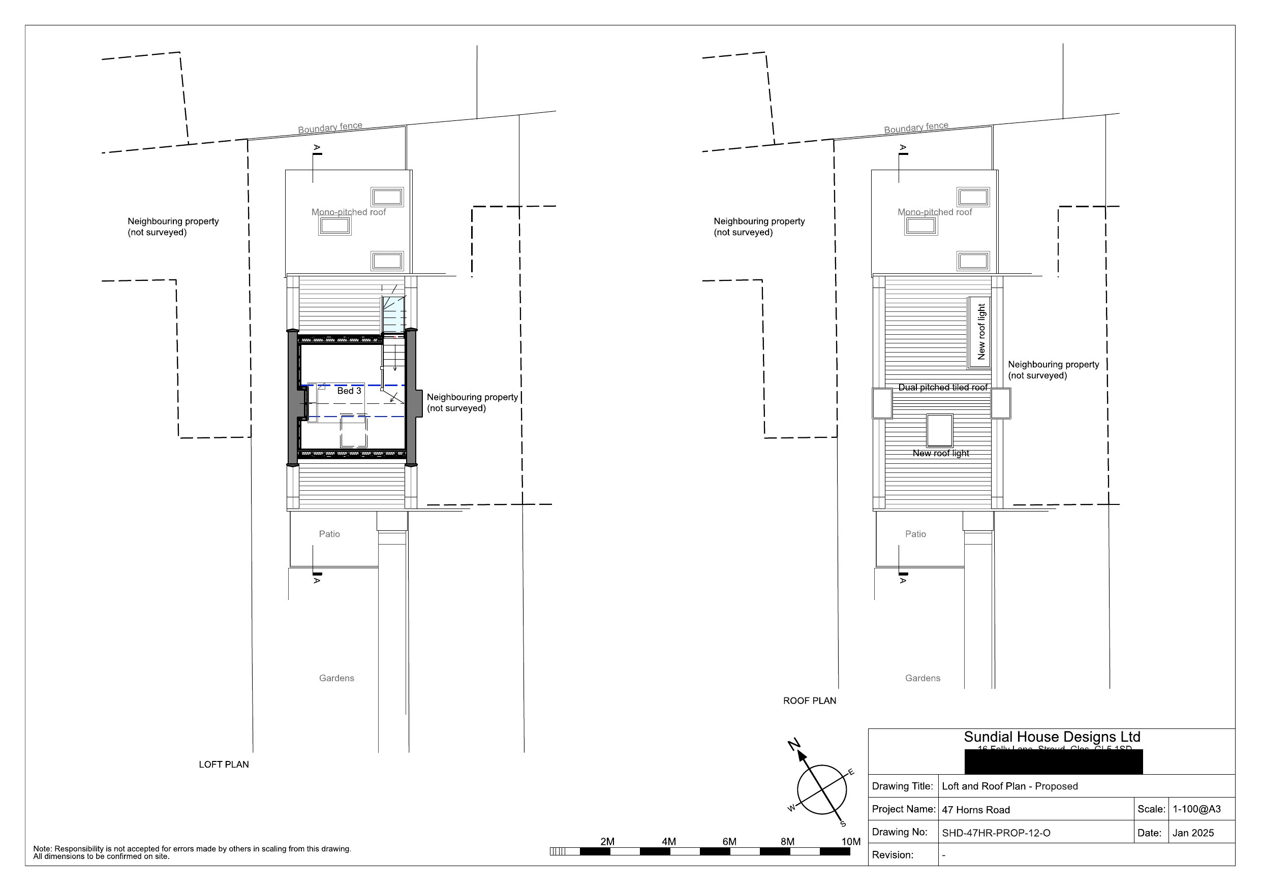
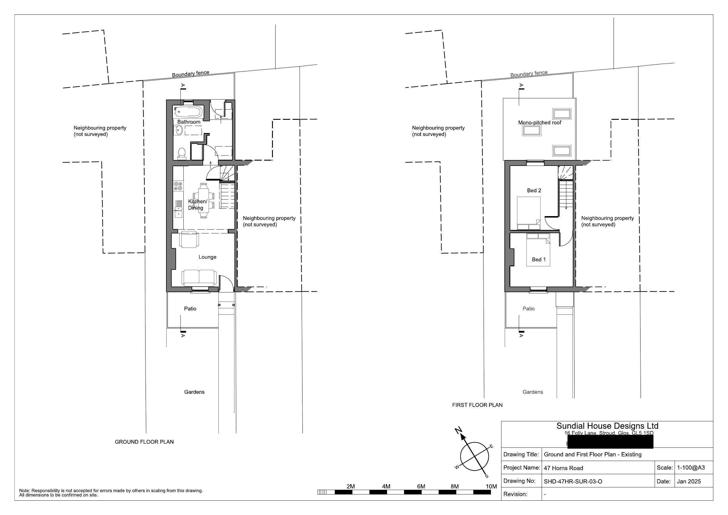
Full proposal

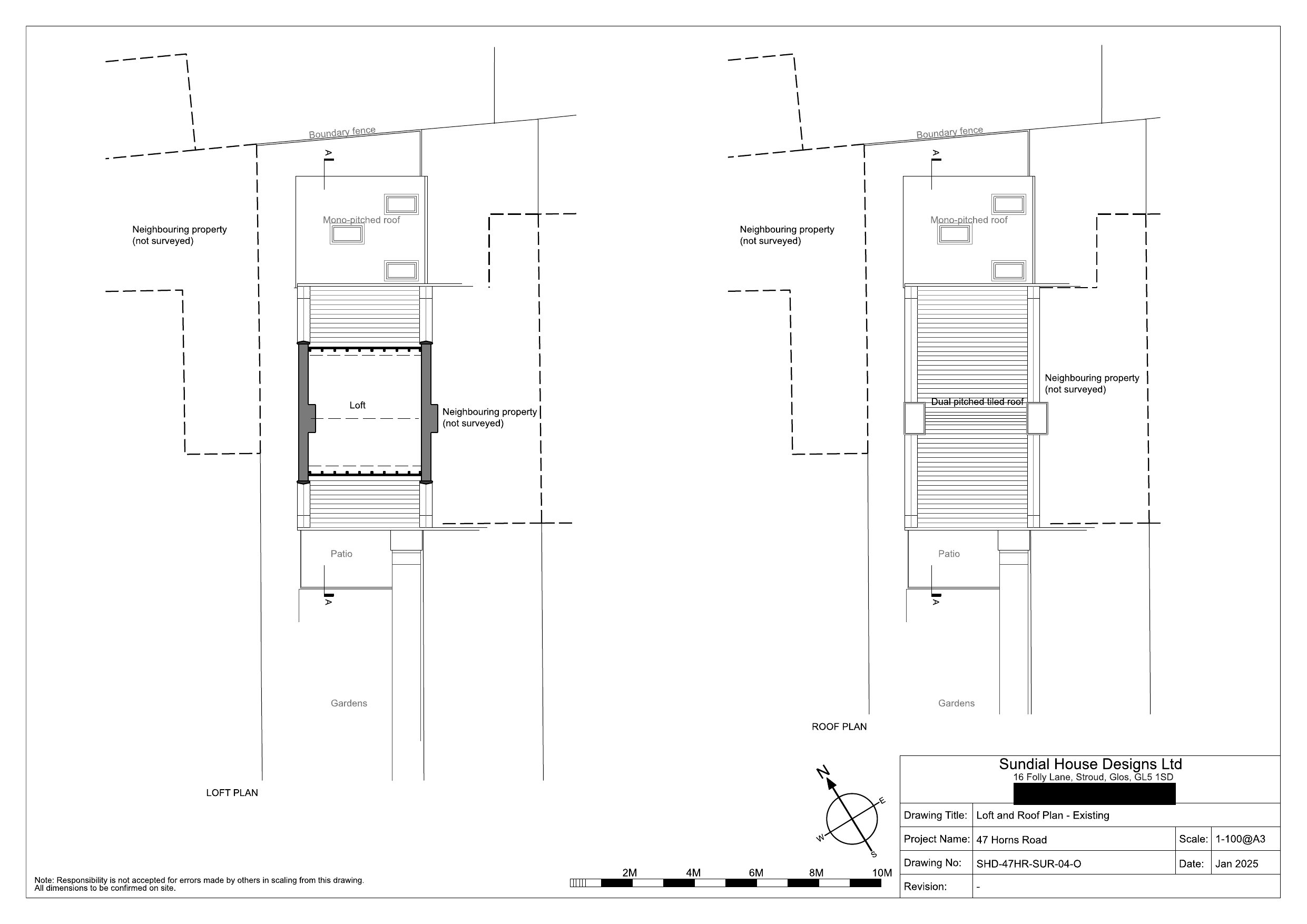
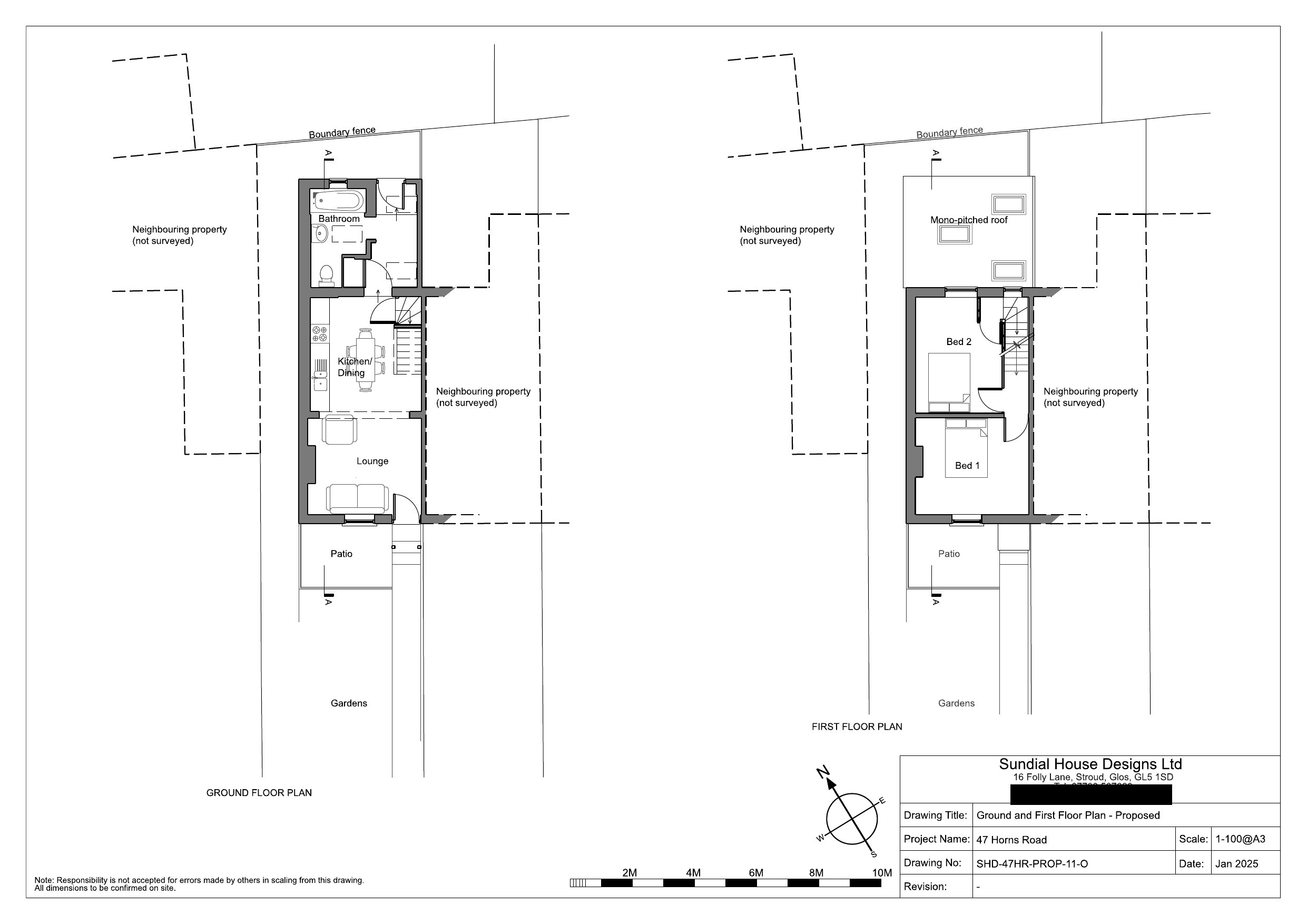
Loft conversion with rooflights and rear first floor window.

Have your say

Your comment matters. Councils must consider every representation that raises material planning considerations.

Write a comment