S.25/0185/HHOLD
Stroud District Council
Status
Permitted
House extension
Received
29 Jan 2025
New homes
0
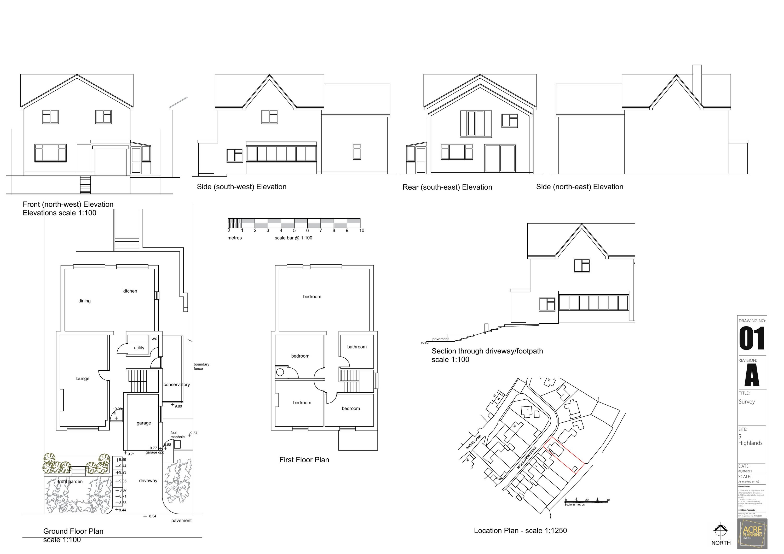
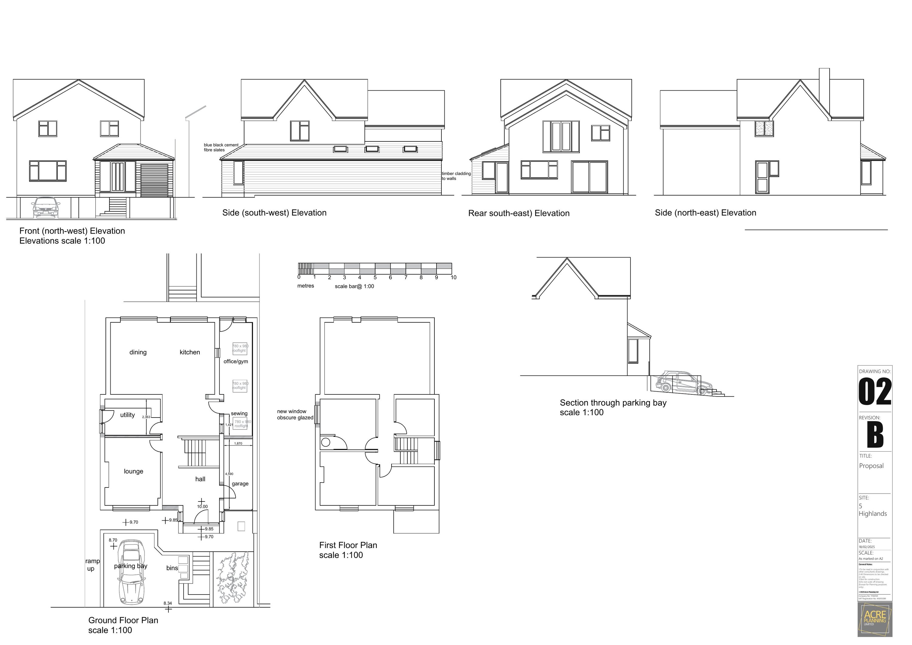
Full proposal
Erection of a replacement single storey front and side extension. Creation of new parking space and dropped kerb. Installation of side door and first-floor window.
Documents
Have your say
Your comment matters. Councils must consider every representation that raises material planning considerations.