← Back to Stroud District Council
Application
S.25/0930/FUL
Stroud District Council · IDOX
Status
Awaiting decision
Change of use
Received
15 May 2025
New dwellings
9
What you can do
Take Action
Make your voice heard. Authorities need to hear from people who support new homes.
Summary
Change of use from care home (C2) to nine apartments (C3) with internal and external alterations.
Full Proposal
Change of use from care home (Use Class C2) to 9no. apartments (Use Class C3) including internal and external alterations.
Detail pages
- View live detail on council site
- No archived detail page available.
Documents
AFFORDABLE HOUSING
Consultee Comment
Not downloaded
· Council link
AFFORDABLE HOUSING
Consultee Comment
Not downloaded
· Council link
APPLICATION FORM - WITHOUT PERSONAL DATA
Application Form
Not downloaded
· Council link
ARBORICULTURAL IMPACT ASSESSMENT & METHOD STATEMENT
Report
Not downloaded
· Council link
BAT SURVEY REPORT
Report
Not downloaded
· Council link
BIODIVERSITY NET GAIN REPORT
Report
Not downloaded
· Council link
BNG BASELINE
Drawing
Not downloaded
· Council link
BNG OFF-SITE - BASELINE
Drawing
Not downloaded
· Council link
BNG OFF-SITE - POST
Drawing
Not downloaded
· Council link
BNG OFFICER
Consultee Comment
Not downloaded
· Council link
BNG OFFICER
Consultee Comment
Not downloaded
· Council link
BNG OFFICER
Consultee Comment
Not downloaded
· Council link
BNG ON-SITE AREA POST
Drawing
Not downloaded
· Council link
BNG ON-SITE AREA PRE
Drawing
Not downloaded
· Council link
BNG ON-SITE LINEAR PRE.
Drawing
Not downloaded
· Council link
BNG POST
Drawing
Not downloaded
· Council link
BNG REPORT
Report
Not downloaded
· Council link
BREADSTONE BNG ON-SITE LINEAR POST
Drawing
Not downloaded
· Council link
CONSERVATION CONSULTANT
Consultee Comment
Not downloaded
· Council link
ECOLOGY RESPONSE
Consultee Comment
Not downloaded
· Council link
ENVIRONMENTAL HEALTH
Consultee Comment
Not downloaded
· Council link
EXISTING ACCOMMODATION SCHEDULE
Report
Not downloaded
· Council link
EXISTING ELEVATIONS
Drawing
Not downloaded
· Council link
EXISTING ELEVATIONS
Drawing
Not downloaded
· Council link
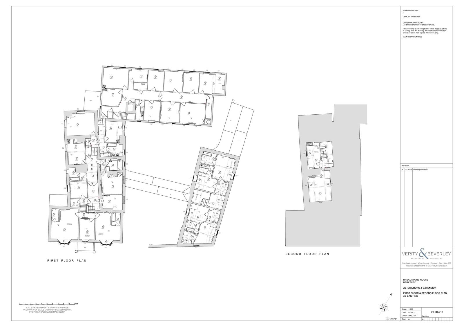
EXISTING FIRST & SECOND FLOOR PLAN
Drawing
Not downloaded
· Council link
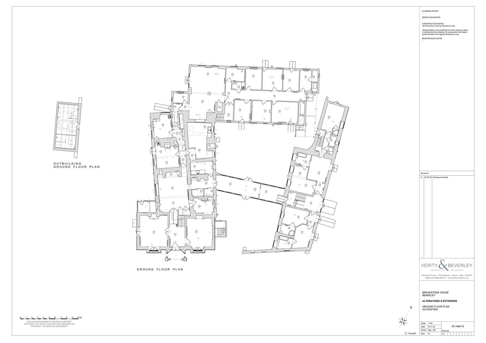
EXISTING GROUND FLOOR PLAN
Drawing
Not downloaded
· Council link
EXISTING SITE PLAN & ROOF PLAN
Drawing
Archived copy
· Council link
FIRST & SECOND FLOOR PLAN AS PROPOSED
Revised Drawing
Not downloaded
· Council link
GCC ADULT SOCIAL CARE COMMENT
Consultee Comment
Not downloaded
· Council link
GCC HIGHWAYS
Consultee Comment
Not downloaded
· Council link
GGC STRATEGIC COMMISSIONING
Consultee Comment
Not downloaded
· Council link
HAMFALLOW PARISH COUNCIL
Consultee Comment
Not downloaded
· Council link
HERITAGE STATEMENT
Report
Not downloaded
· Council link
HRA AA - SEVERN ESTUARY
Report
Not downloaded
· Council link
JUSTIFICATION STATEMENT
Report
Not downloaded
· Council link
NATURAL ENGLAND COMMENT
Consultee Comment
Not downloaded
· Council link
NATURAL ENGLAND COMMENT ANNEXE A
Consultee Comment
Not downloaded
· Council link
OFF-SITE CONDITION SHEETS
Report
Not downloaded
· Council link
OFF-SITE CONDITION SHEETS
Report
Not downloaded
· Council link
ON-SITE CONDITION SHEETS
Report
Not downloaded
· Council link
PARISH CONSULTATION LETTER WEB
Correspondence
Not downloaded
· Council link
PLANNING, DESIGN & ACCESS STATEMENT
Design and Access Statement
Not downloaded
· Council link
PRELIMINARY ECOLOGICAL APPRAISAL
Report
Not downloaded
· Council link
PROPOSED ELEVATIONS
Revised Drawing
Not downloaded
· Council link
PROPOSED ELEVATIONS
Drawing
Not downloaded
· Council link
PROPOSED ELEVATIONS
Drawing
Not downloaded
· Council link
PROPOSED FIRST & SECOND FLOOR PLAN
Drawing
Not downloaded
· Council link
PROPOSED GF PLAN
Revised Drawing
Not downloaded
· Council link
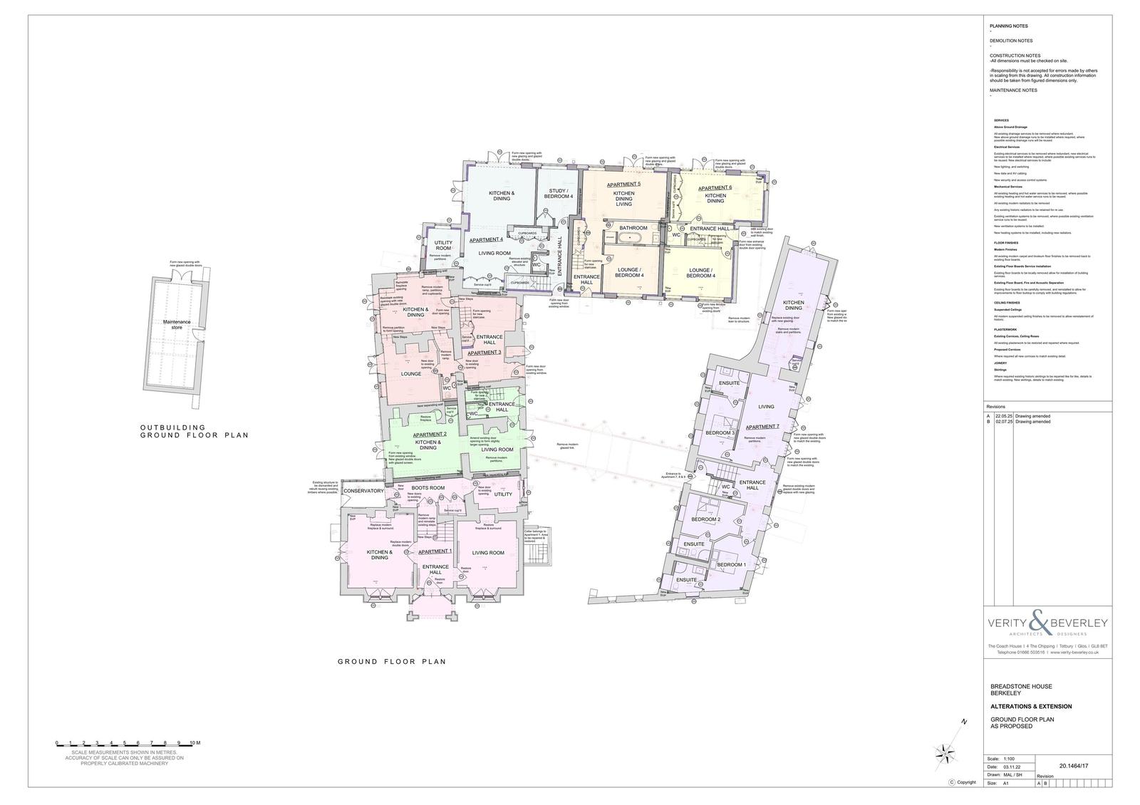
PROPOSED GROUND FLOOR PLAN
Drawing
Not downloaded
· Council link
PROPOSED SITE PLAN & ROOF PLAN
Drawing
Archived copy
· Council link
REVISED CONSULTATION VIA EMAIL
Correspondence
Not downloaded
· Council link
REVISED CONSULTATION VIA EMAIL
Correspondence
Not downloaded
· Council link
SDC DRAINAGE RESPONSE
Consultee Comment
Not downloaded
· Council link
SITE LOCATION PLAN
Drawing
Archived copy
· Council link
SITE NOTICE NOV 17
Correspondence
Not downloaded
· Council link
SITE PLAN & ROOF PLAN AS PROPOSED
Revised Drawing
Archived copy
· Council link
STANDARD CONSULTATION VIA EMAIL
Correspondence
Not downloaded
· Council link
STANDARD CONSULTATION VIA EMAIL
Correspondence
Not downloaded
· Council link
STANDARD CONSULTATION VIA EMAIL
Correspondence
Not downloaded
· Council link
STANDARD CONSULTATION VIA EMAIL
Correspondence
Not downloaded
· Council link
STANDARD CONSULTATION VIA EMAIL
Correspondence
Not downloaded
· Council link
STANDARD CONSULTATION VIA EMAIL
Correspondence
Not downloaded
· Council link
STANDARD CONSULTATION VIA EMAIL
Correspondence
Not downloaded
· Council link
STANDARD CONSULTATION VIA EMAIL
Correspondence
Not downloaded
· Council link
STANDARD CONSULTATION VIA EMAIL
Correspondence
Not downloaded
· Council link
STANDARD CONSULTATION VIA EMAIL
Correspondence
Not downloaded
· Council link
STANDARD CONSULTATION VIA EMAIL
Correspondence
Not downloaded
· Council link
STANDARD CONSULTATION VIA EMAIL
Correspondence
Not downloaded
· Council link
TECHNICAL NOTE - TRANSPORTATION MATTERS
Report
Not downloaded
· Council link
THE GRANARY
Public Comment
Not downloaded
· Council link
THE GRANARY
Public Comment
Not downloaded
· Council link
TREE OFFICER
Consultee Comment
Not downloaded
· Council link
VACANT BUILDING STATEMENT
Report
Not downloaded
· Council link