← Stroud District Council

Status

Awaiting decision Change of use
Received
15 May 2025
New homes
9

Summary

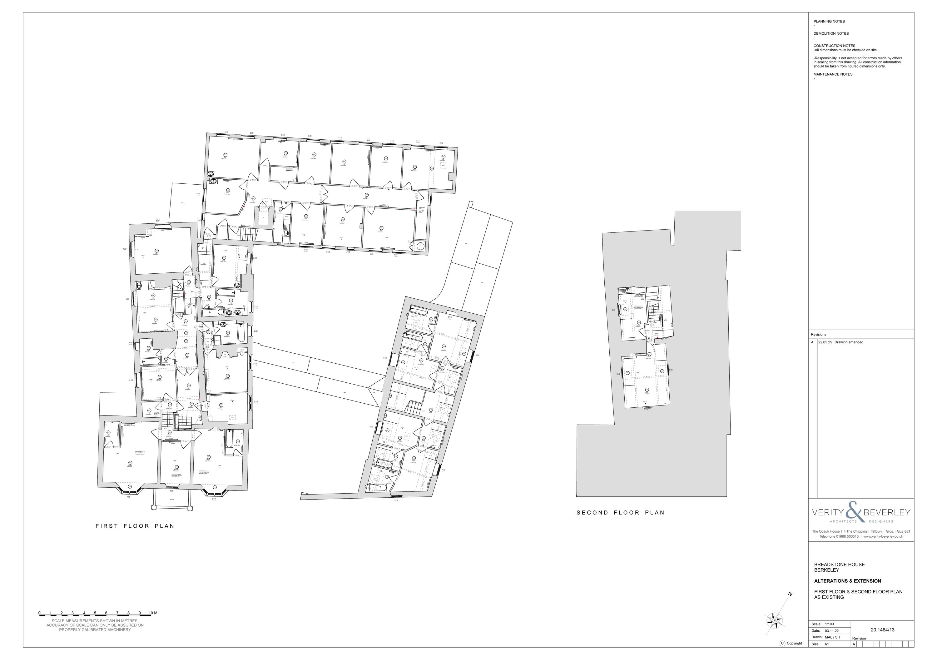
Change of use from care home (C2) to nine apartments (C3) with internal and external alterations.

Full proposal

Change of use from care home (Use Class C2) to 9no apartments (Use Class C3) including internal & external alterations.

Documents

Application Form
Archived · Original link
Report
Archived · Original link
Drawing
Archived · Original link
Drawing
Archived · Original link
Report
Archived · Original link
Consultee Comment
Archived · Original link
Drawing
Archived · Original link
Drawing
Archived · Original link
Consultee Comment
Archived · Original link
Report
Archived · Original link
OFF-SITE CONDITION SHEETS
Report
Not yet archived · Original link
Correspondence
Archived · Original link
Design and Access Statement
Archived · Original link
Drawing
Archived · Original link
Superseded Drawing
Archived · Original link
Revised Drawing
Archived · Original link
Superseded Drawing
Archived · Original link
Revised Drawing
Archived · Original link
Superseded Drawing
Archived · Original link
Revised Drawing
Archived · Original link
Superseded Drawing
Archived · Original link
Drawing
Archived · Original link
Correspondence
Archived · Original link
Correspondence
Archived · Original link
Correspondence
Archived · Original link
Report
Archived · Original link
Report
Archived · Original link

Have your say

Your comment matters. Councils must consider every representation that raises material planning considerations.

Write a comment