← Stroud District Council

Status

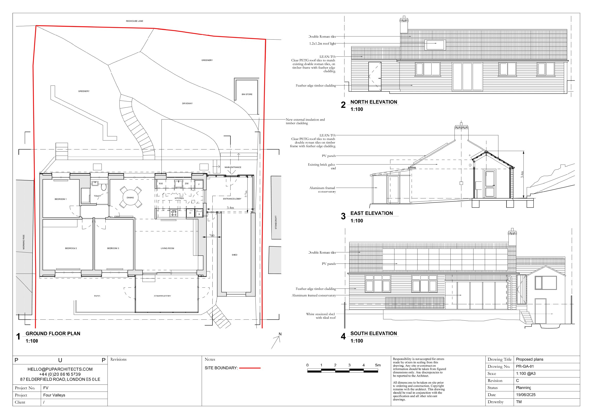
Permitted House extension
Received
16 May 2025
New homes
0

Full proposal

Installation of external insulation with timber cladding & erection of side lean-to extension

Documents

Supporting Document
Archived · Original link
Application Form
Archived · Original link
Revised Drawing
Archived · Original link
Supporting Document
Archived · Original link
Decision
Archived · Original link
Revised Drawing
Archived · Original link
Drawing
Archived · Original link

Have your say

Your comment matters. Councils must consider every representation that raises material planning considerations.

Write a comment