← Stroud District Council

Status

Permitted House extension
Received
19 May 2025
New homes
0

Full proposal

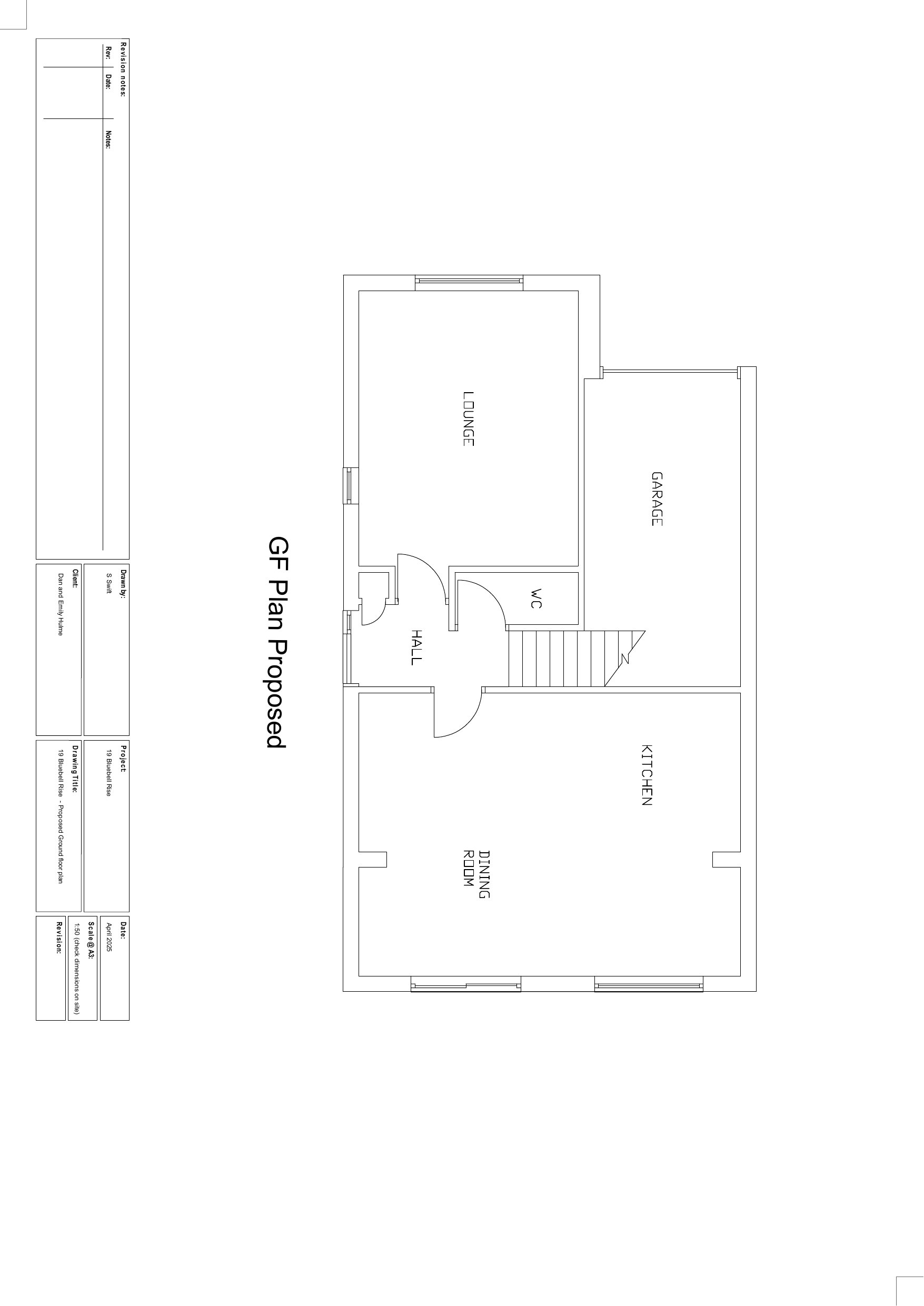
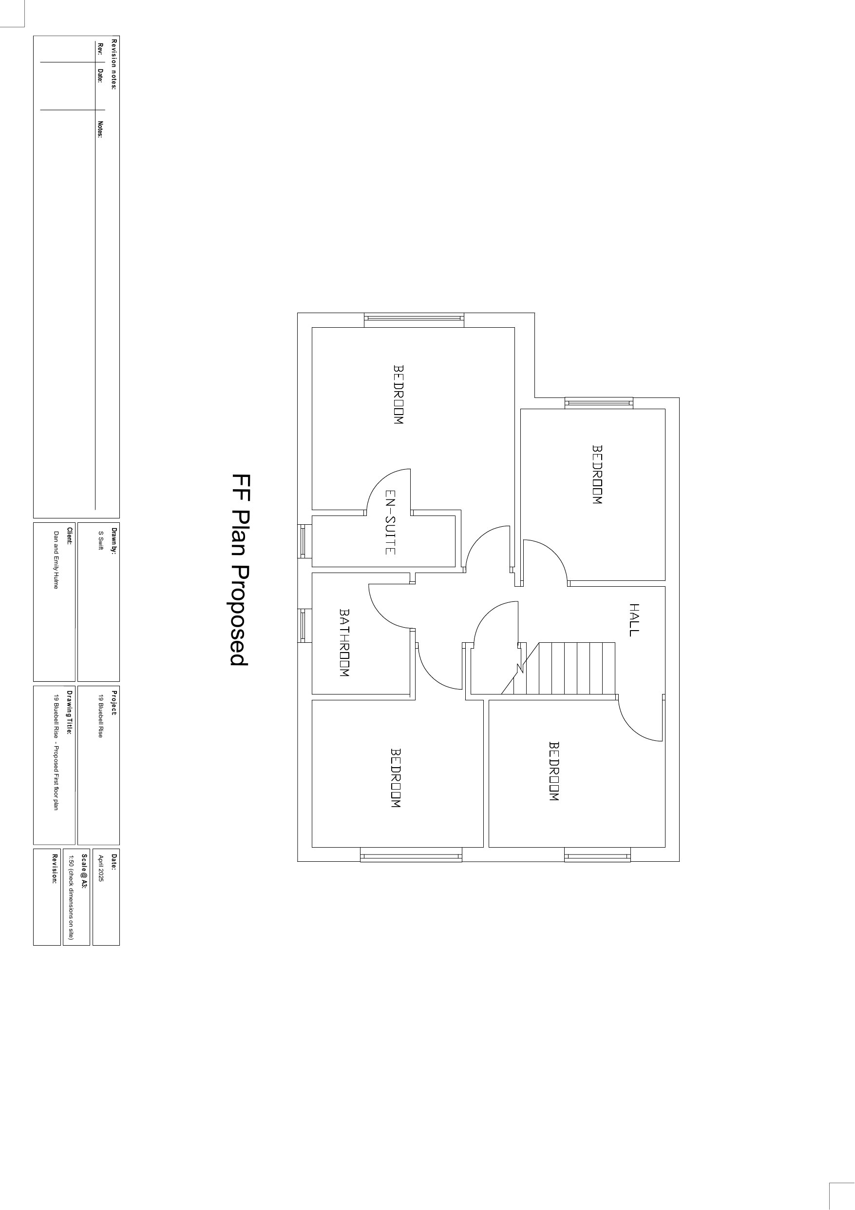
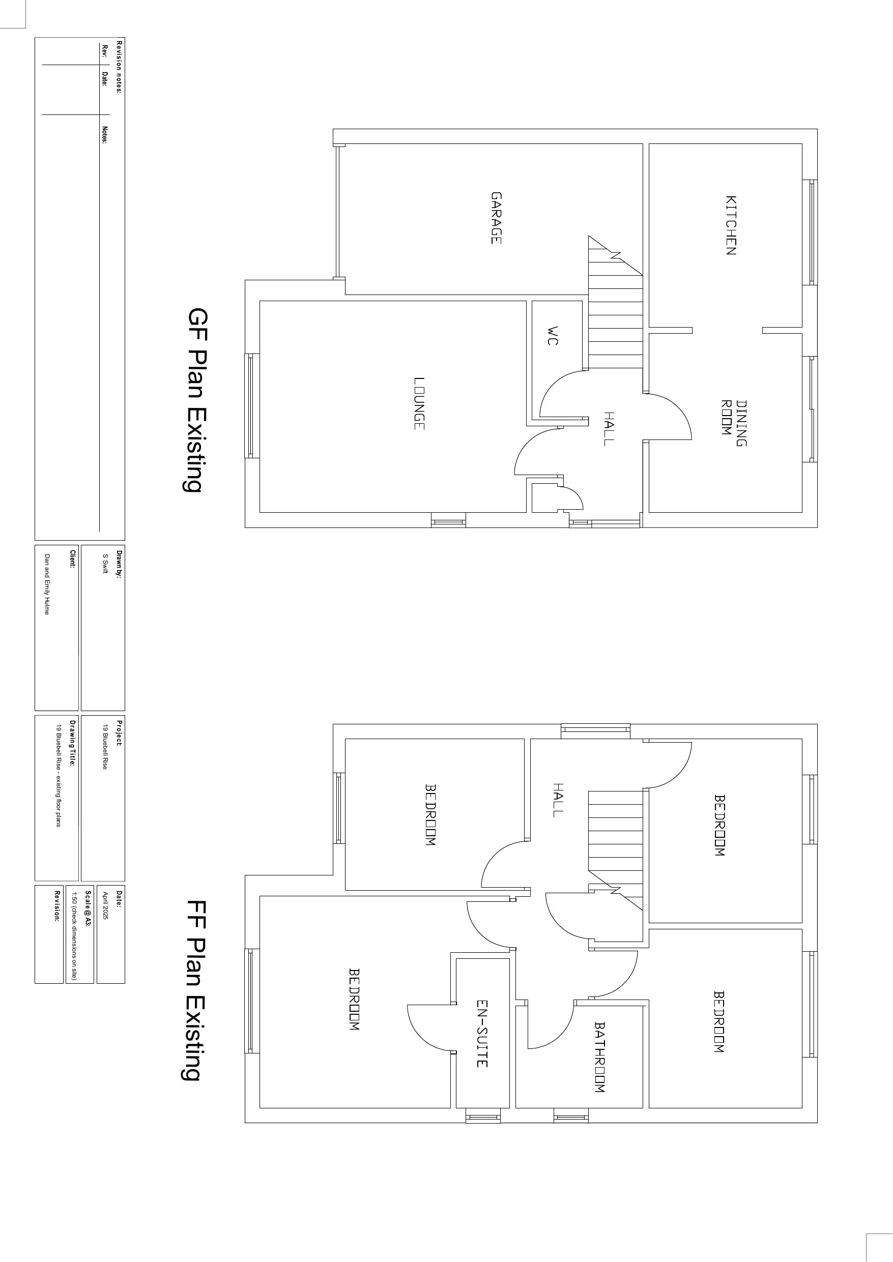
Erection of a single storey rear extension and internal alterations.

Have your say

Your comment matters. Councils must consider every representation that raises material planning considerations.

Write a comment