← Stroud District Council

Status

Awaiting decision Listed building
Received
05 Dec 2025
New homes
0

Full proposal

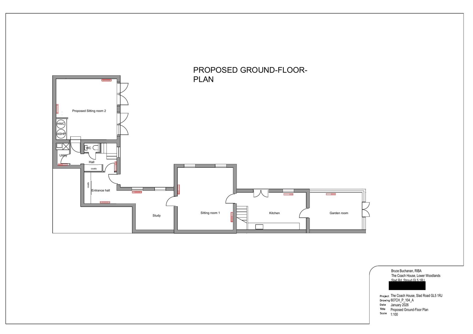
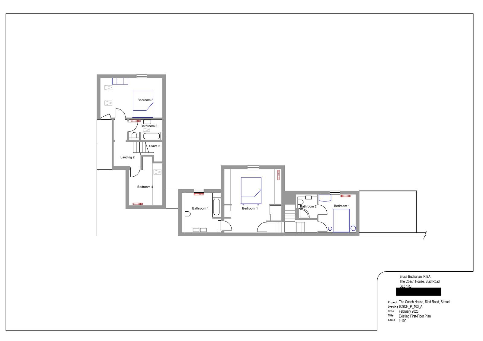
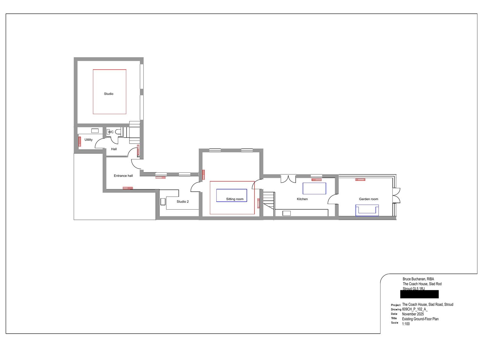
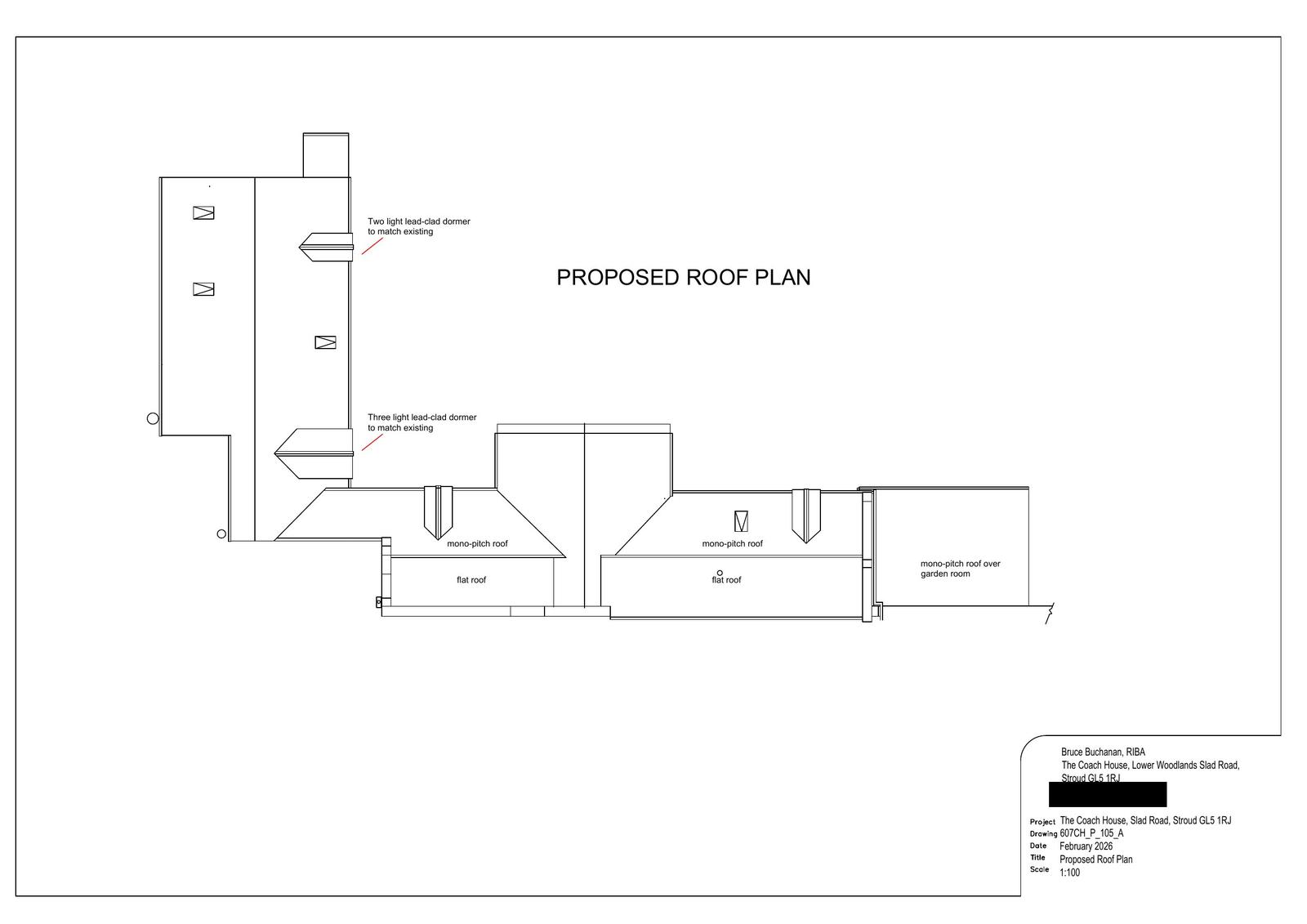
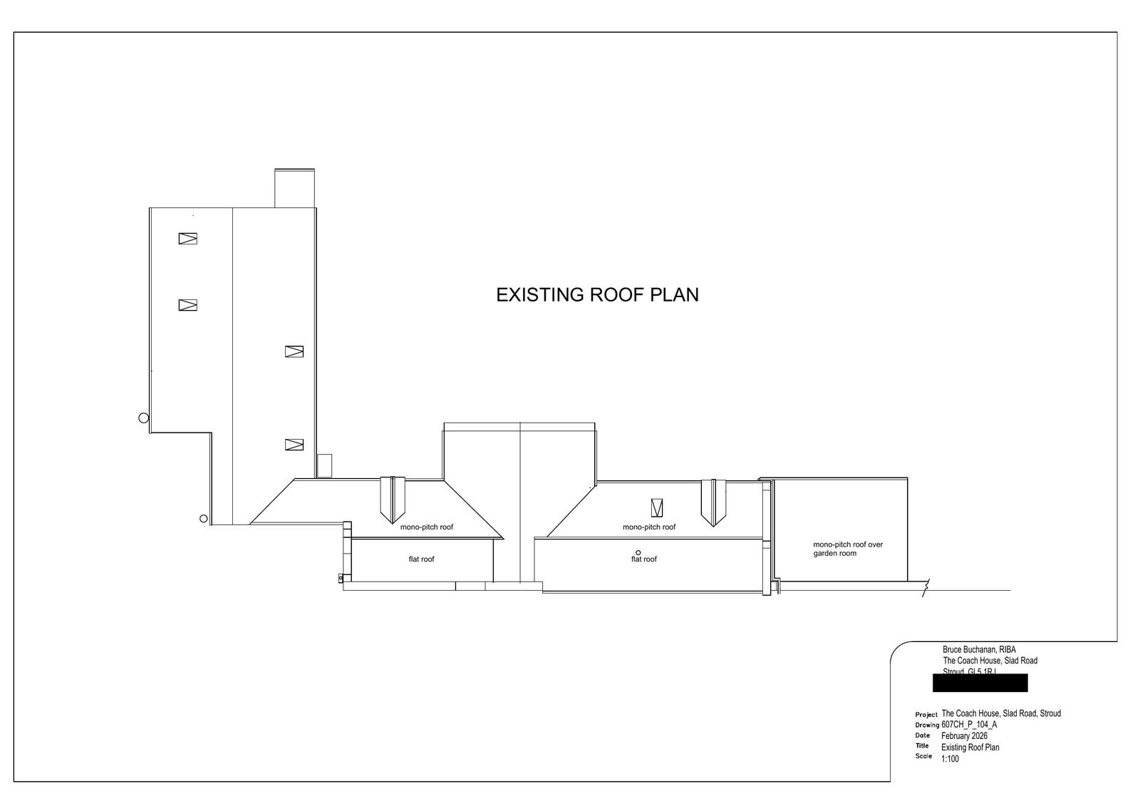
Replacement of a first floor window, erection of two dormer windows to replace roof lights, internal alterations.

Have your say

Your comment matters. Councils must consider every representation that raises material planning considerations.

Write a comment