← Stroud District Council

Status

Awaiting decision House extension
Received
18 Dec 2025
New homes
0

Full proposal

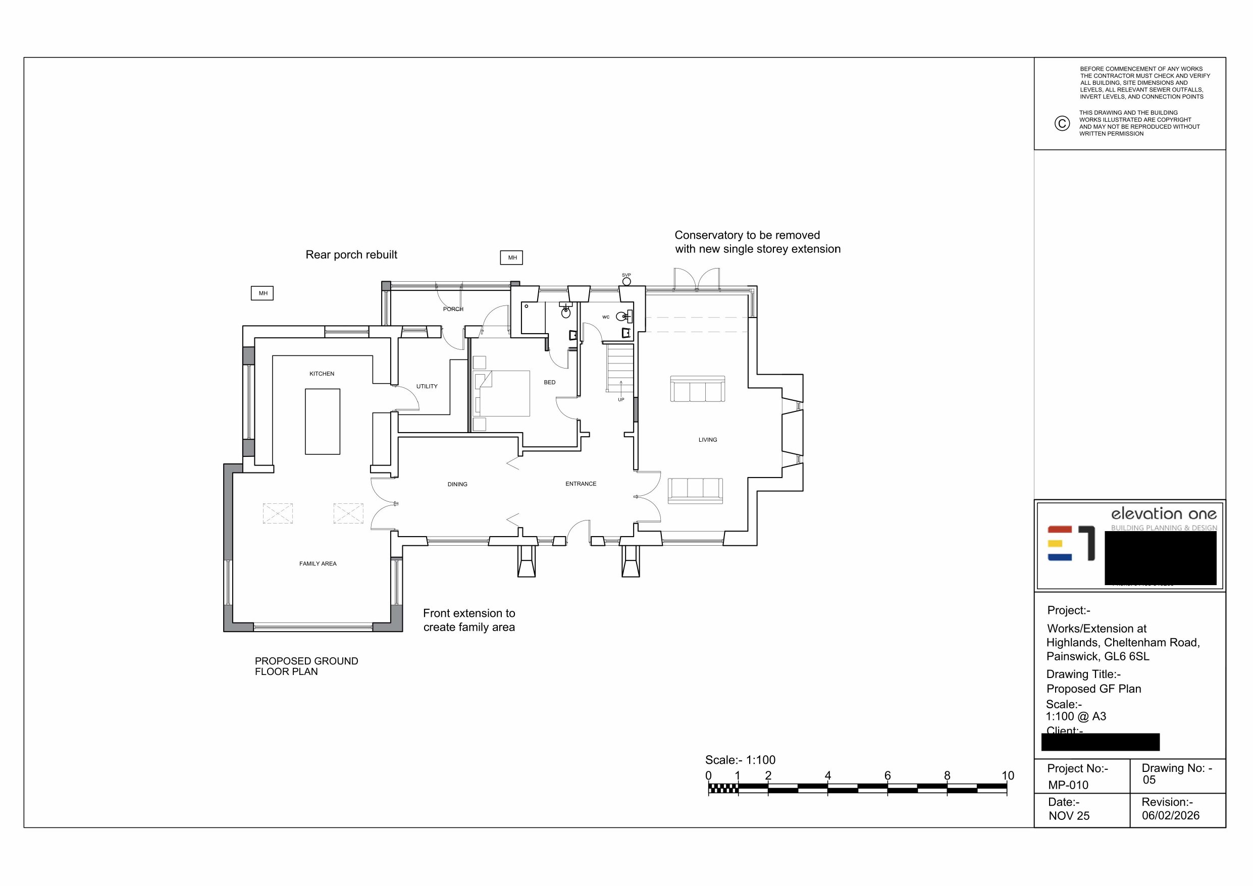
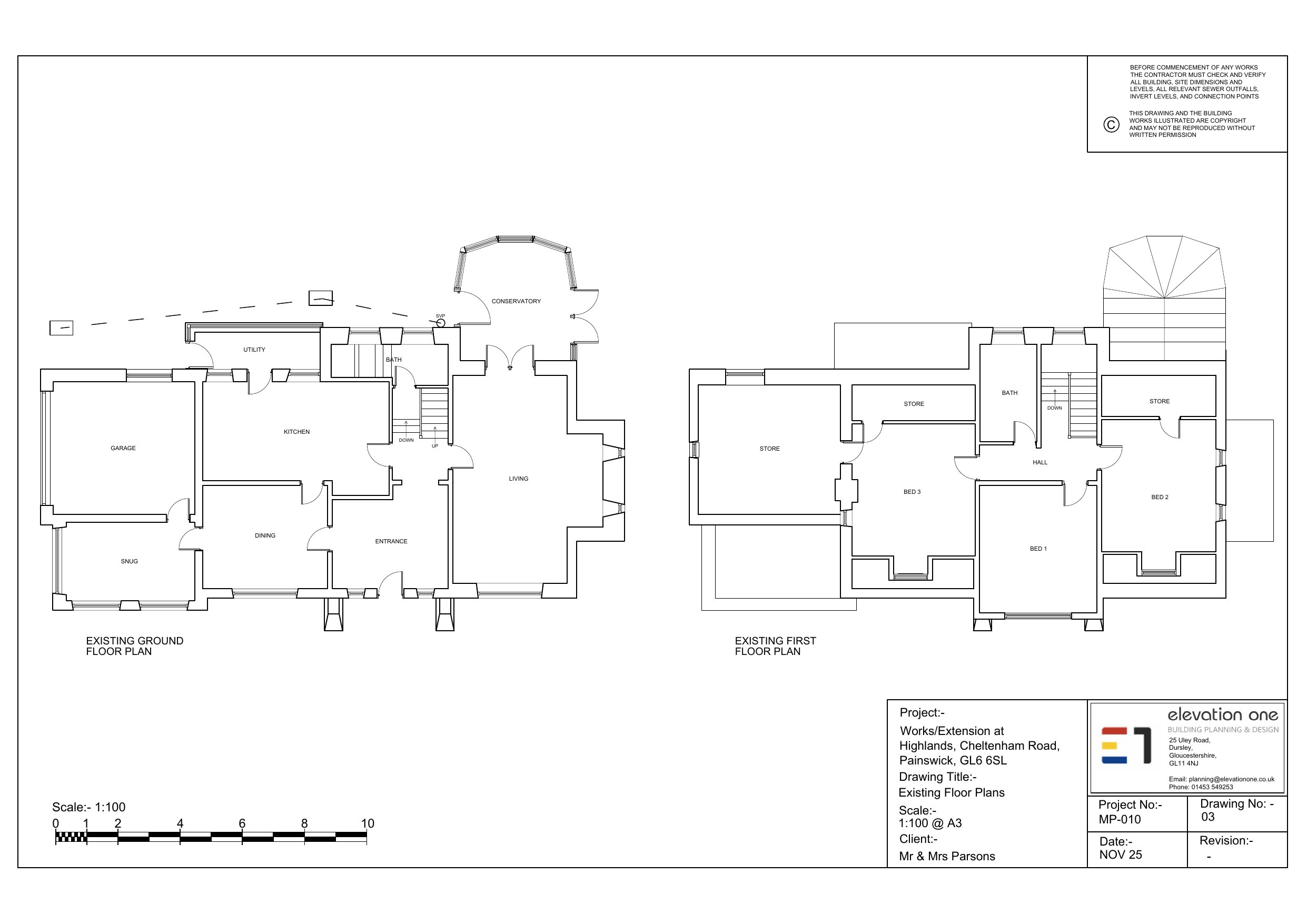
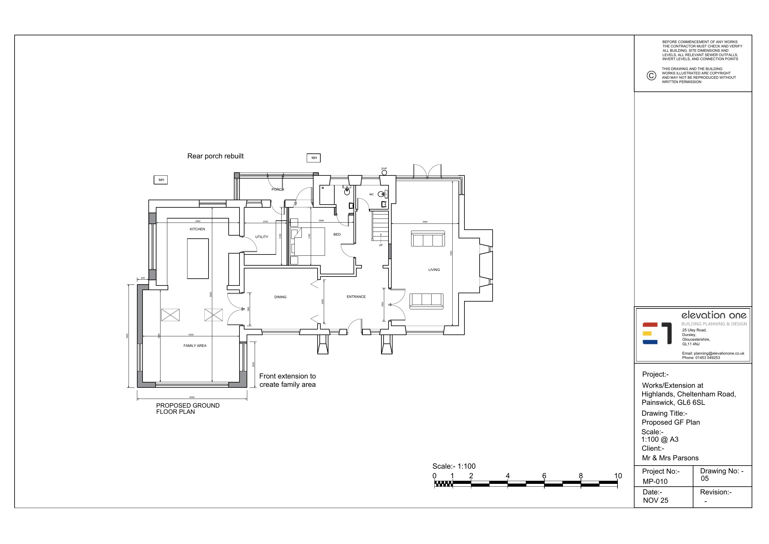
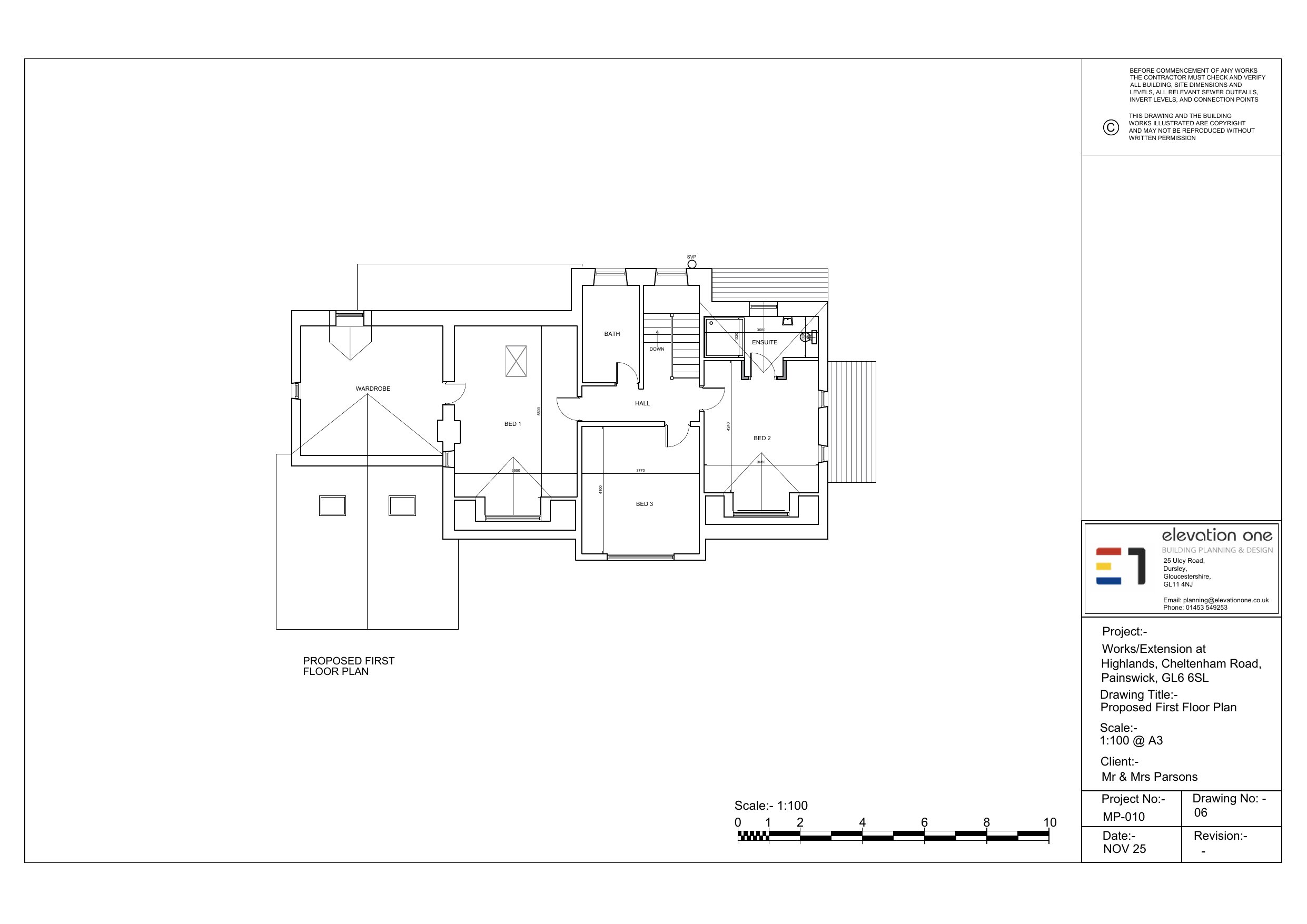
Erection of a single storey front extension, two storey and single storey rear extension, replacement front dormer windows and erection of new rear dormer window. Erection of a replacement rear porch.

Documents

Application Form
Archived · Original link
Consultee Comment
Archived · Original link
Superseded Drawing
Archived · Original link
Revised Drawing
Archived · Original link
Drawing
Archived · Original link
Drawing
Archived · Original link
Drawing
Archived · Original link
Consultee Comment
Archived · Original link
Correspondence
Archived · Original link
Revised Drawing
Archived · Original link
Superseded Drawing
Archived · Original link
Revised Drawing
Archived · Original link
Superseded Drawing
Archived · Original link
Revised Drawing
Archived · Original link
Superseded Drawing
Archived · Original link
Revised Drawing
Archived · Original link
Superseded Drawing
Archived · Original link
Correspondence
Archived · Original link
Correspondence
Archived · Original link

Have your say

Your comment matters. Councils must consider every representation that raises material planning considerations.

Write a comment