← Stroud District Council

Status

Awaiting decision Listed building
Received
19 Dec 2025
New homes
0

Full proposal

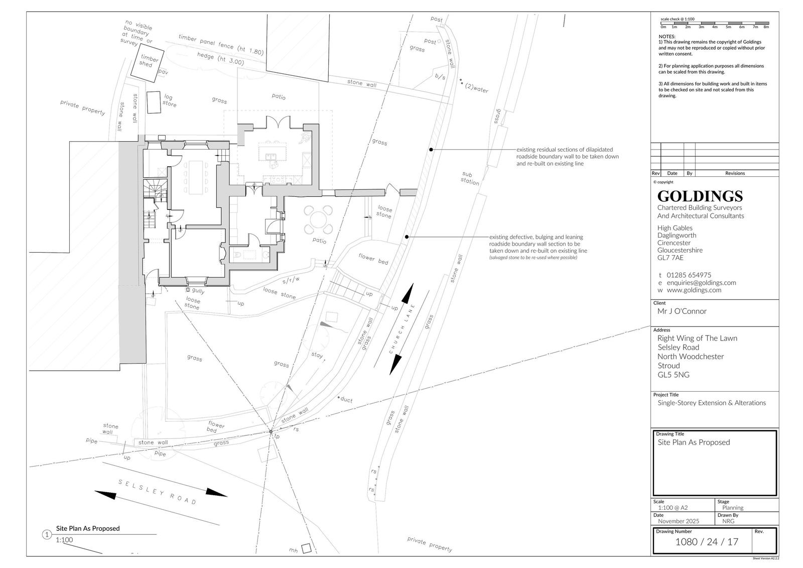
Erection of a single storey side extension, rebuild of wall, external repairs and internal alterations.

Have your say

Your comment matters. Councils must consider every representation that raises material planning considerations.

Write a comment