← Stroud District Council

Status

Awaiting decision House extension
Received
05 Jan 2026
New homes
0

Full proposal

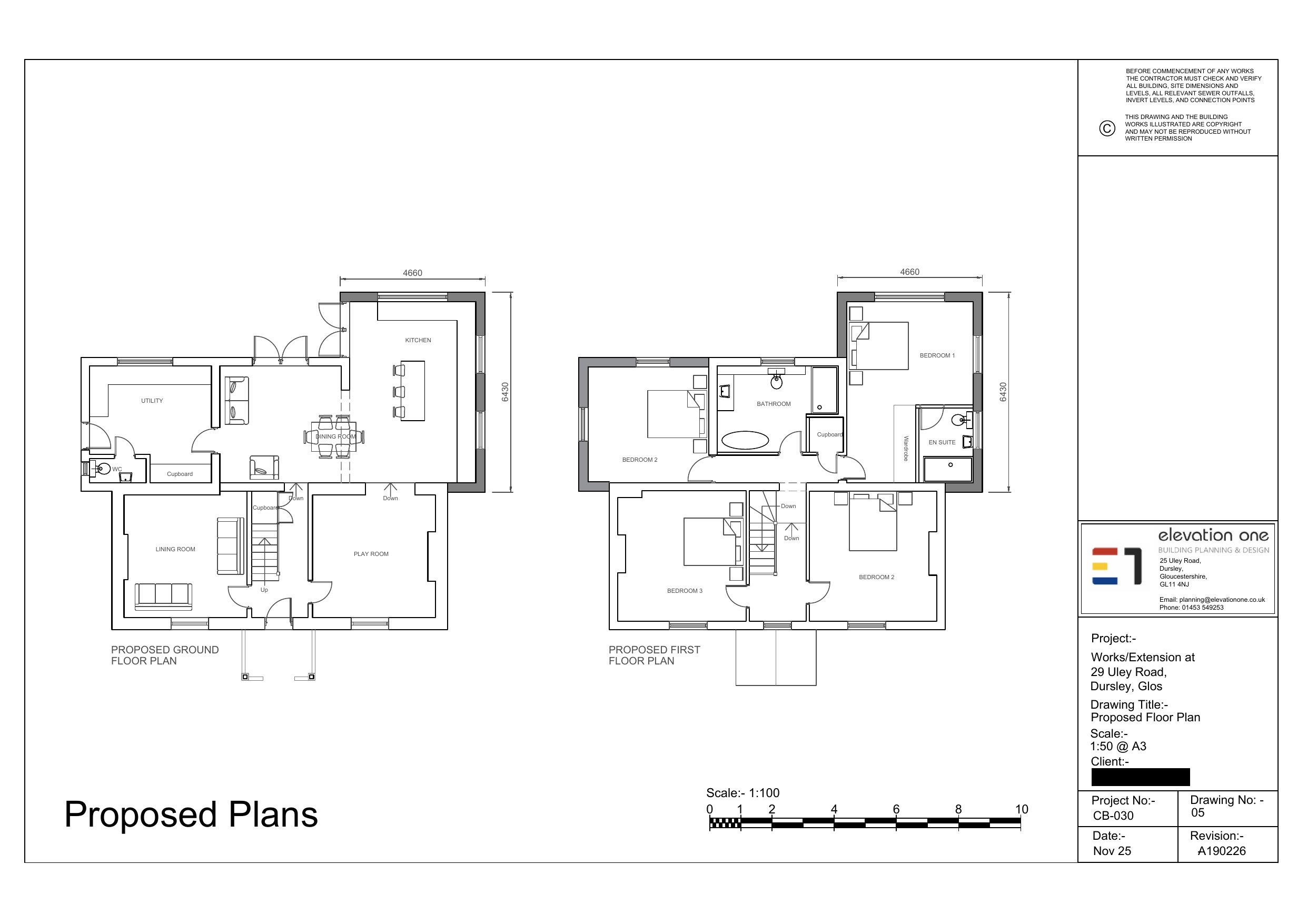
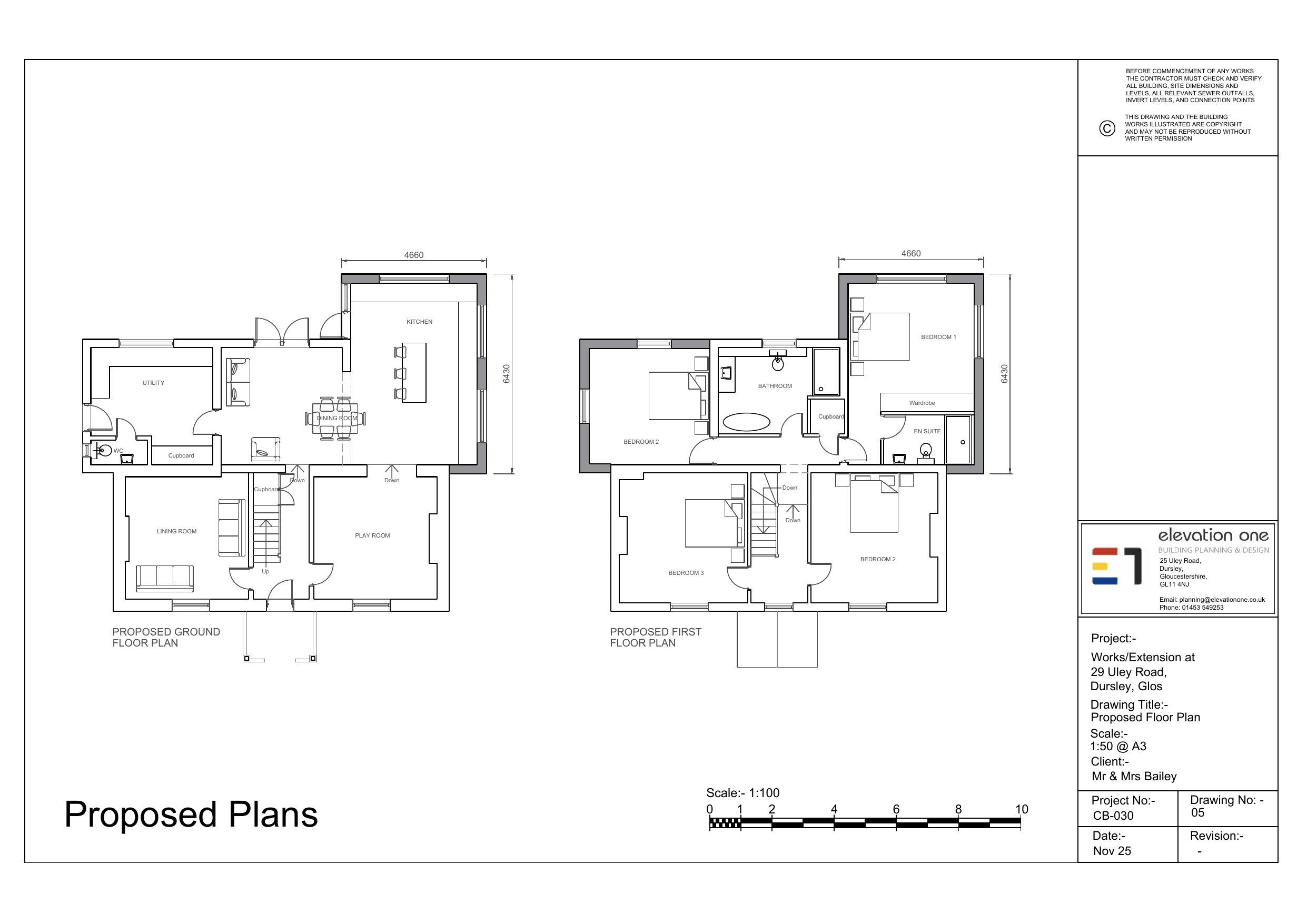
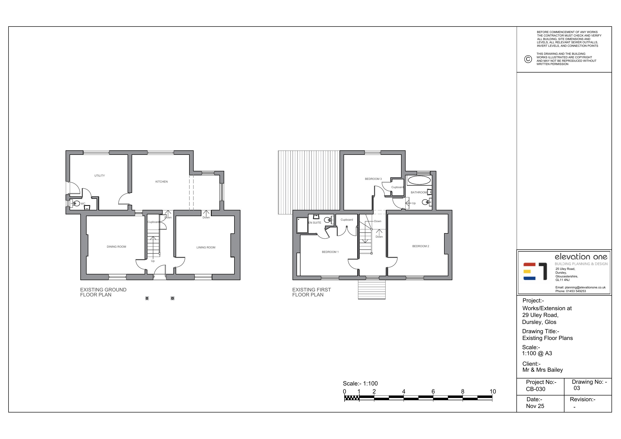
Erection of two storey rear extension and first floor rear/side extension.

Documents

Drawing
Archived · Original link
Drawing
Archived · Original link
Drawing
Archived · Original link
Drawing
Archived · Original link
Revised Drawing
Archived · Original link
Drawing
Archived · Original link
Revised Drawing
Archived · Original link
Drawing
Archived · Original link

Have your say

Your comment matters. Councils must consider every representation that raises material planning considerations.

Write a comment