S.26/0278/HHOLD
Stroud District Council
Status
Awaiting decision
House extension
Received
Last month
New homes
0
Full proposal
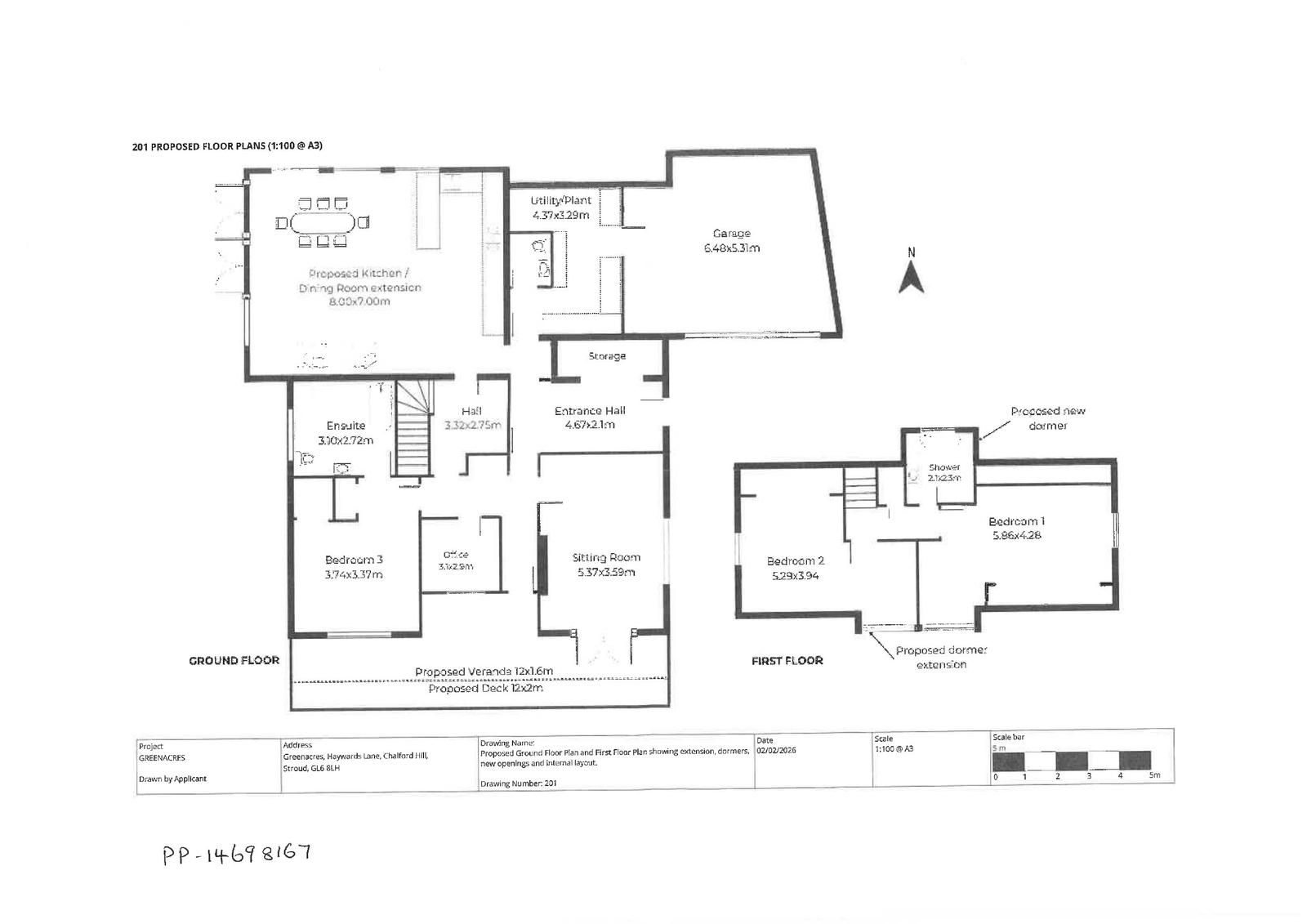
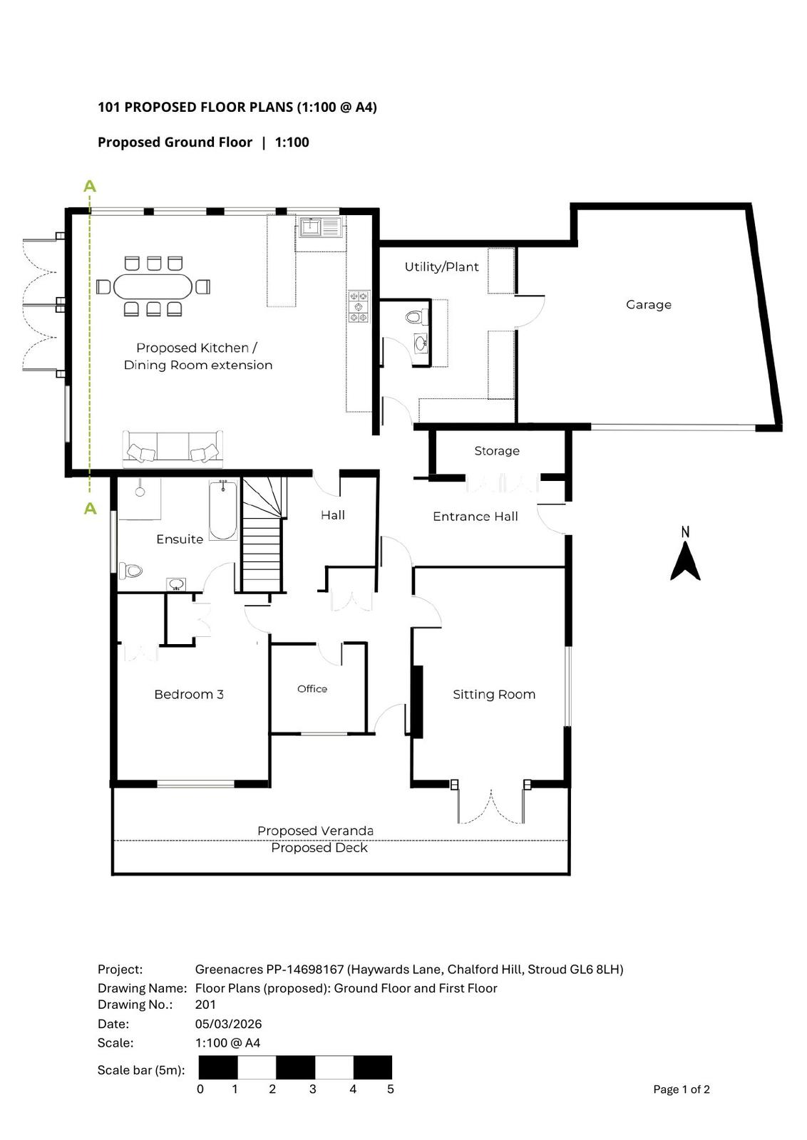
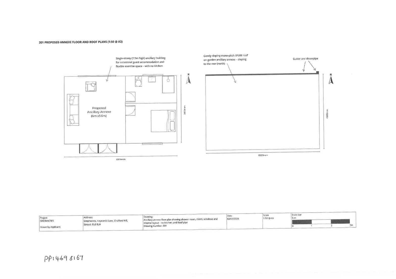
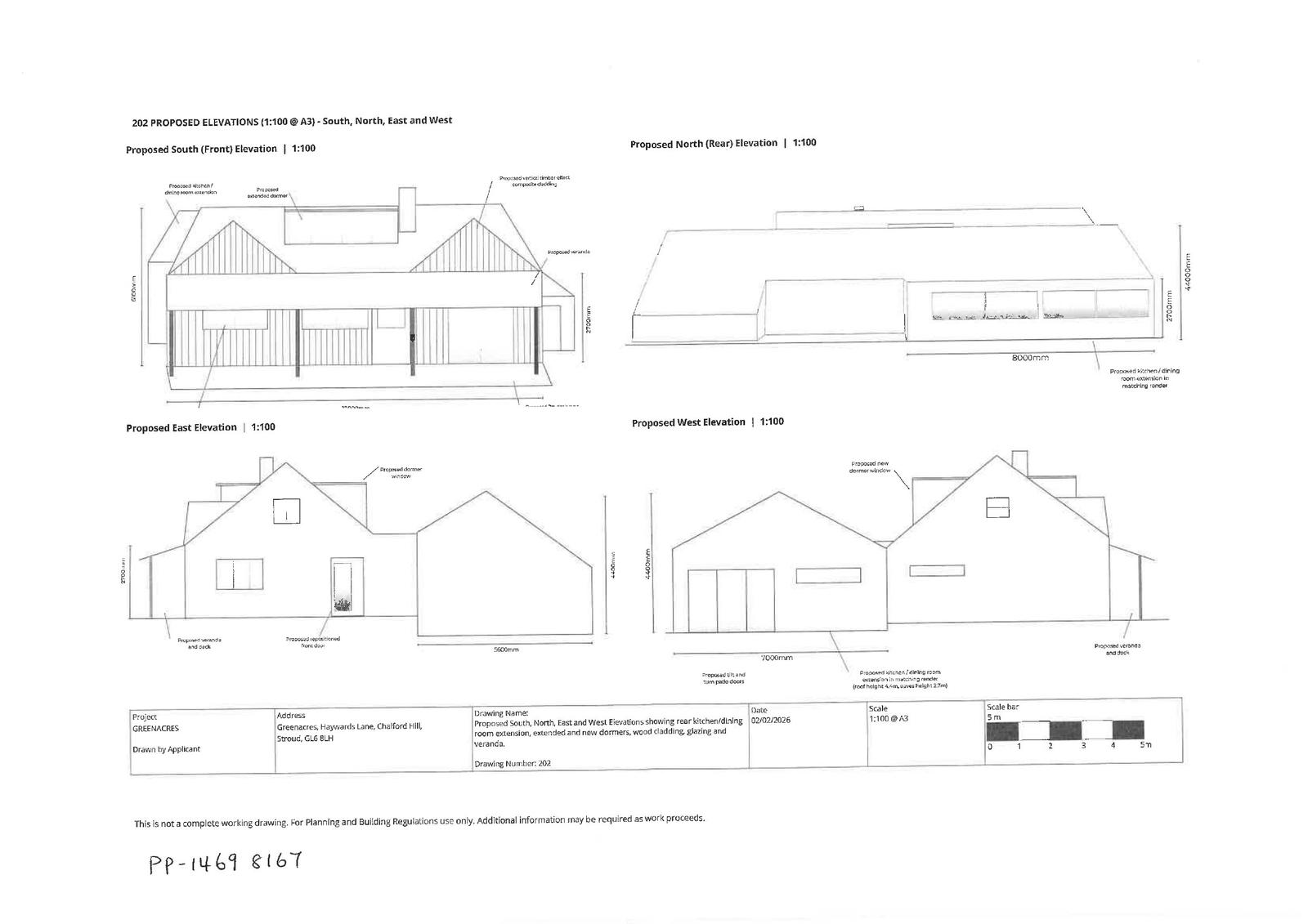
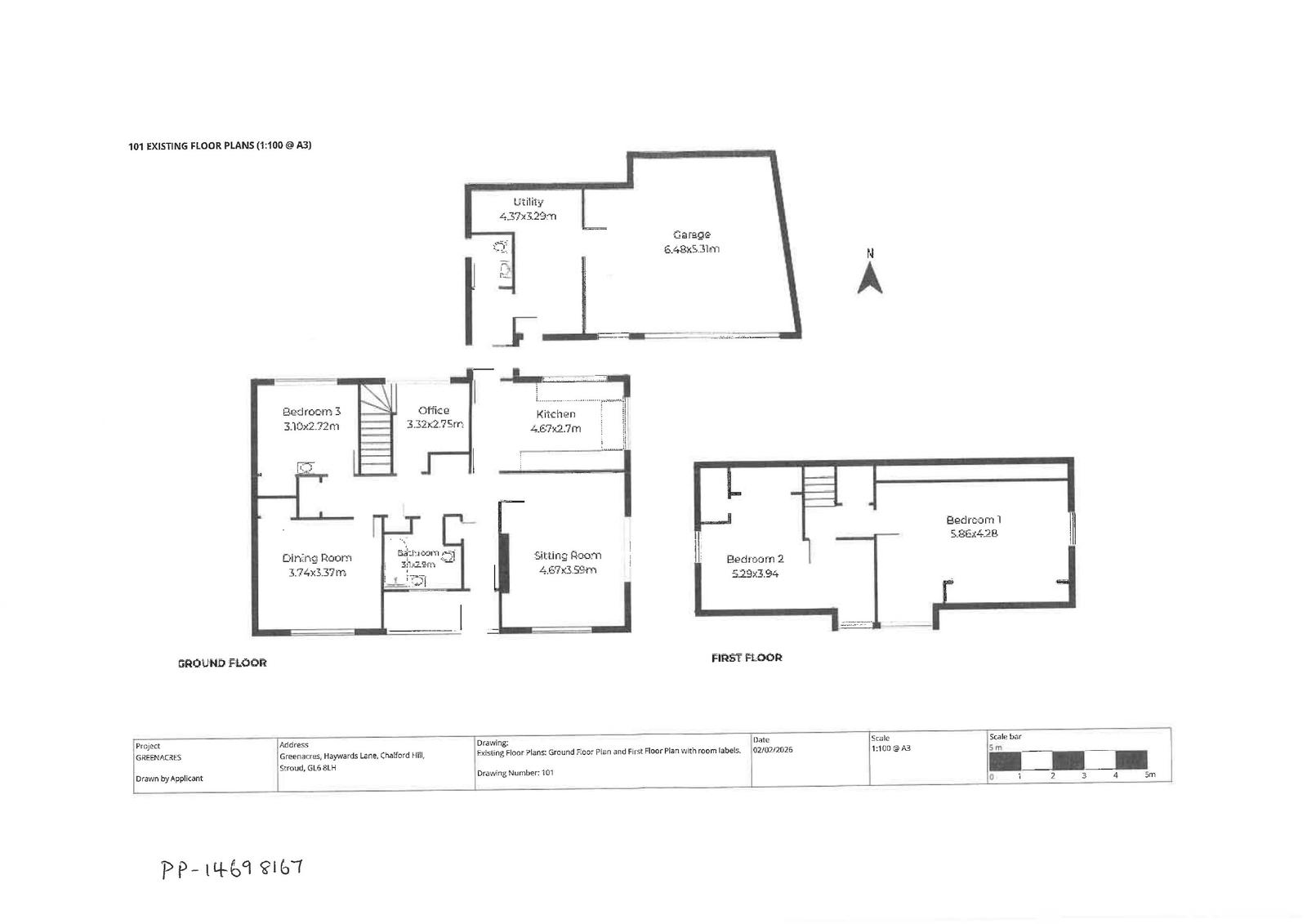
Erection of single storey rear extension, front dormer extension, rear dormer, rooflights, timber cladding, veranda, decking, solar panels, air source heat pump and erection of detached Ancillary Annexe.
Documents
Have your say
Your comment matters. Councils must consider every representation that raises material planning considerations.