← Sunderland City Council

Status

Unknown House extension
Received
13 Mar 2025
New homes
0

Full proposal

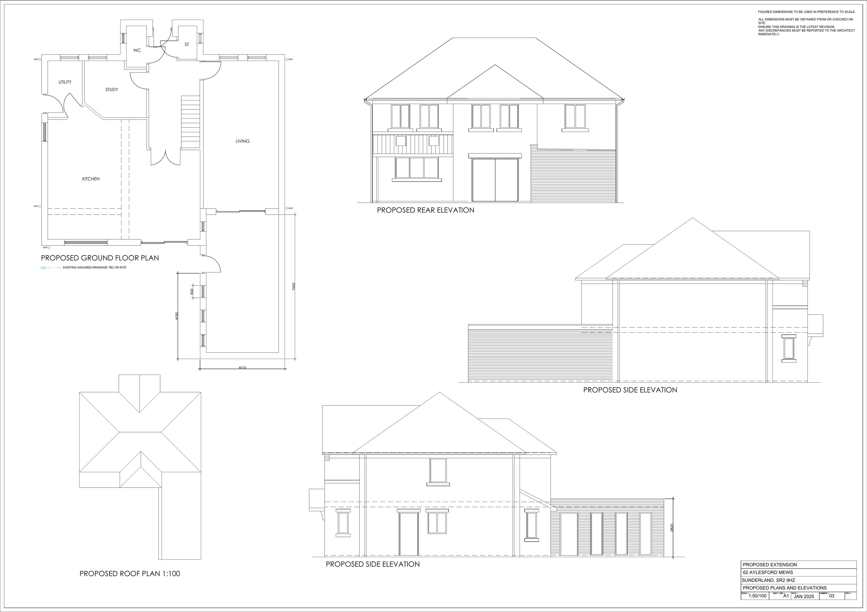
Erection of a single storey rear extension. (Extends 7m from the original dwelling, 2.8m in height and 2.8m to the eaves).

Documents

APPLICATION FORM
Application Form Redacted
Not yet archived · Original link
Decision Notice
Decision Notice
Not yet archived · Original link
EXISTING PLANS AND ELEVATIONS
Plan/Drawing
Not yet archived · Original link
Plan/Drawing
Archived · Original link

Have your say

Your comment matters. Councils must consider every representation that raises material planning considerations.

Write a comment