← Sunderland City Council

Status

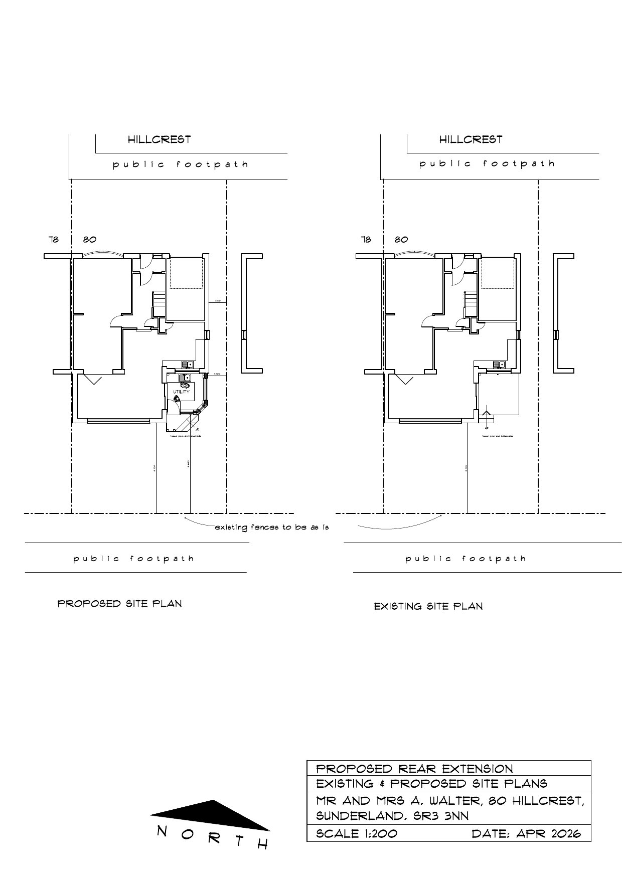
Current House extension
Received
09 Dec 2025
New homes
0

Full proposal

Erection of single storey extension to rear.

Documents

Application Form Redacted
Archived · Original link
Location Plan
Archived · Original link
Plan/Drawing
Archived · Original link

Have your say

Your comment matters. Councils must consider every representation that raises material planning considerations.

Write a comment