← Sunderland City Council

Status

Current Change of use
Received
17 Dec 2025
New homes
7

Full proposal

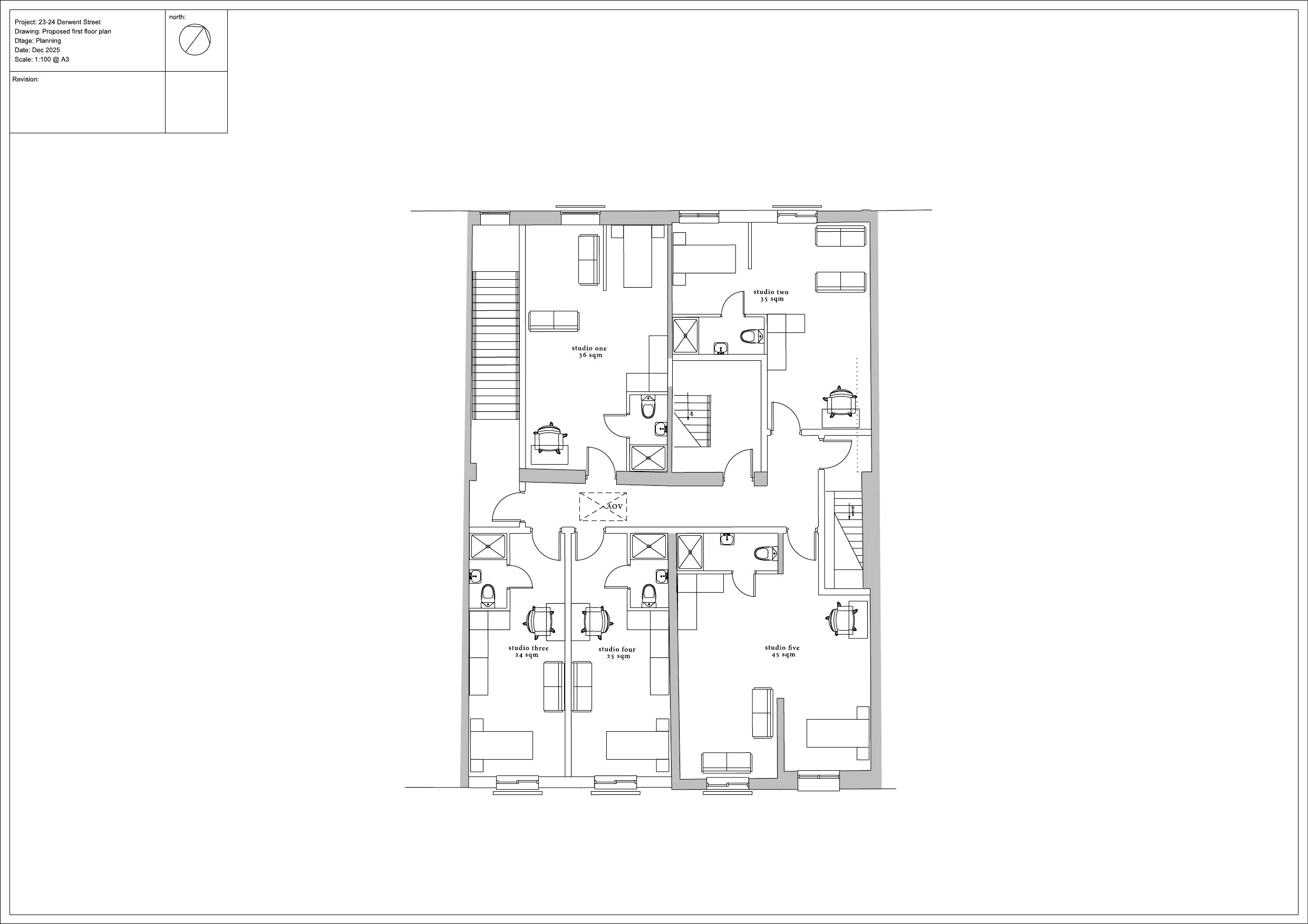
Change of use of upper floors to 7no. single occupancy student studios with rear first floor extension and external alterations to elevations.

Documents

Plan/Drawing
Archived · Original link
Plan/Drawing
Archived · Original link
Plan/Drawing
Archived · Original link
Plan/Drawing
Archived · Original link
Plan/Drawing
Archived · Original link
Plan/Drawing
Archived · Original link
Plan/Drawing
Archived · Original link
Location Plan
Archived · Original link
Plan/Drawing
Archived · Original link
Plan/Drawing
Archived · Original link
Plan/Drawing
Archived · Original link
Plan/Drawing
Archived · Original link
Plan/Drawing
Archived · Original link
Plan/Drawing
Archived · Original link
Plan/Drawing
Archived · Original link

Have your say

Your comment matters. Councils must consider every representation that raises material planning considerations.

Write a comment