← Sunderland City Council

Status

Current Commercial
Received
08 Jan 2026
New homes
0

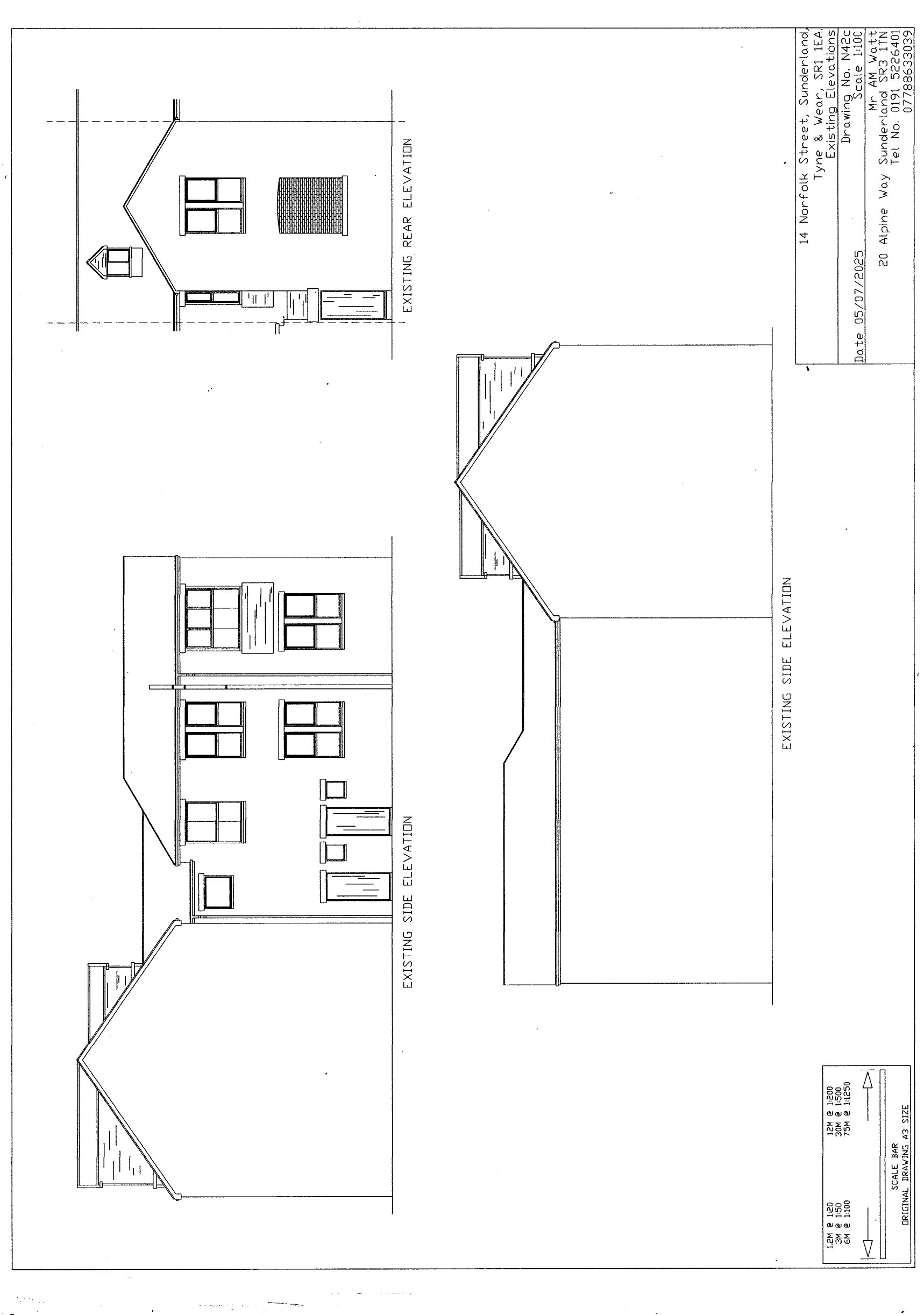
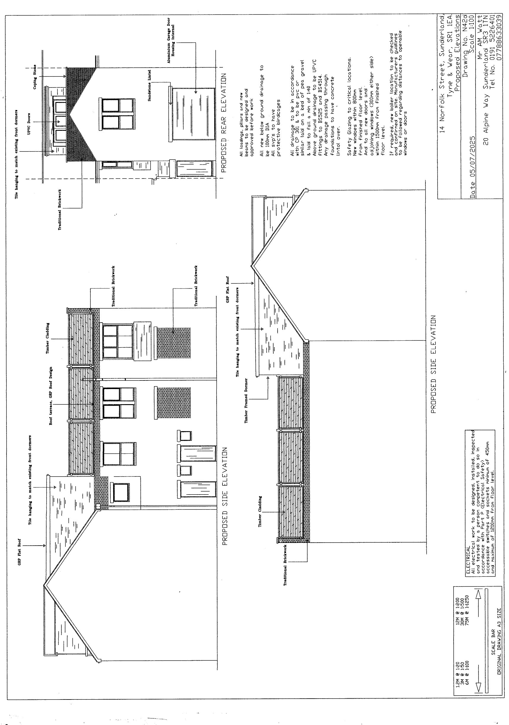
Full proposal

Erection of replacement dormer to rear roof slope. Erection of roof terrace. Replace existing infilled ground floor rear opening with garage door. Infill 2no. ground floor openings to south facing side elevation

Documents

Plan/Drawing
Archived · Original link
Plan/Drawing
Archived · Original link
Location Plan
Archived · Original link
Plan/Drawing
Archived · Original link
Plan/Drawing
Archived · Original link

Have your say

Your comment matters. Councils must consider every representation that raises material planning considerations.

Write a comment