← Sunderland City Council

Status

Current Change of use
Received
19 Jan 2026
New homes
0

Full proposal

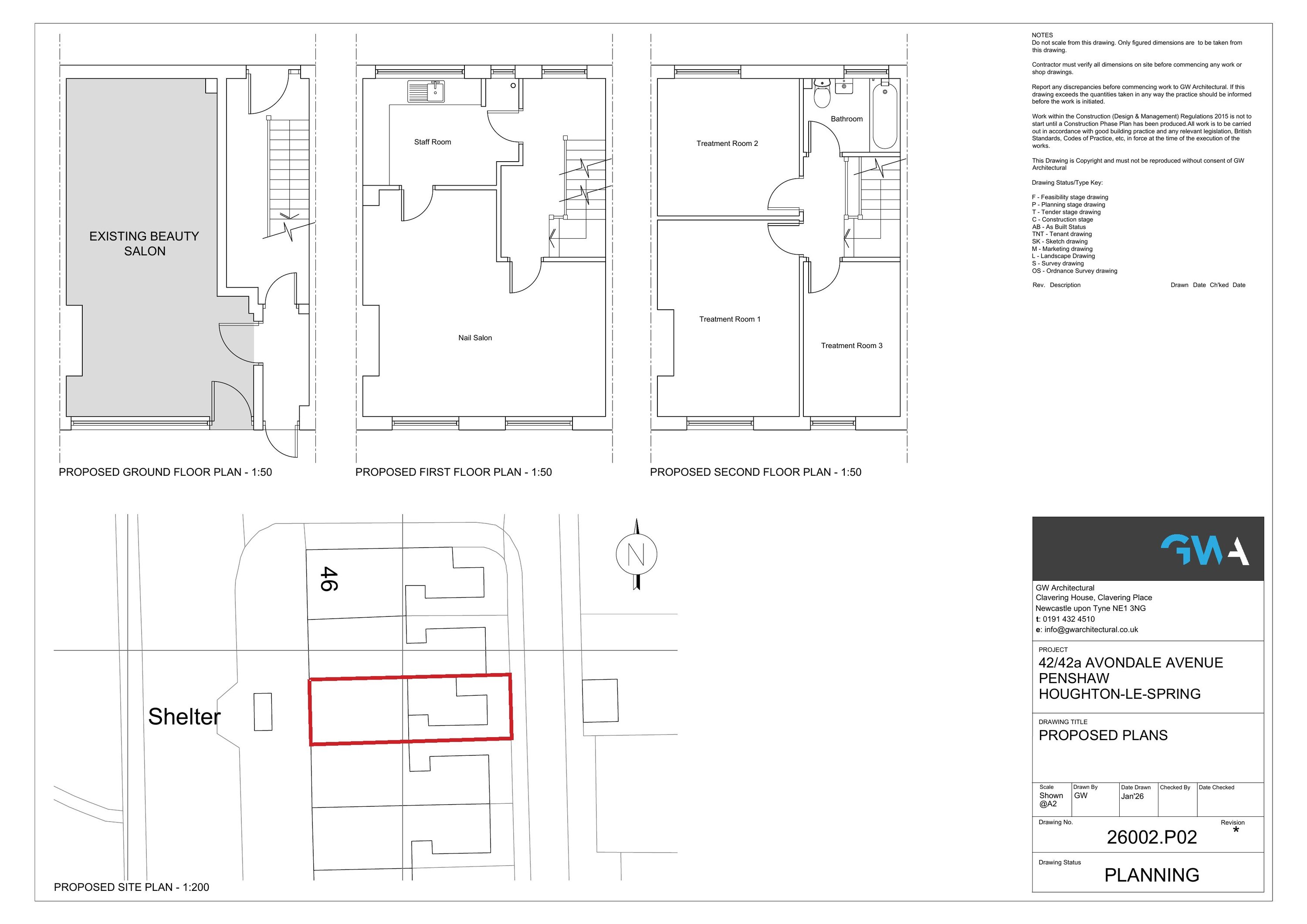
Change of use to first floor flat to Beauty Salon to connect with existing ground floor beauty salon

Documents

Plan/Drawing
Archived · Original link
Location Plan
Archived · Original link
Application Correspondence
Archived · Original link
Plan/Drawing
Archived · Original link

Have your say

Your comment matters. Councils must consider every representation that raises material planning considerations.

Write a comment