← Sunderland City Council

Status

Current House extension
Received
Last month
New homes
0

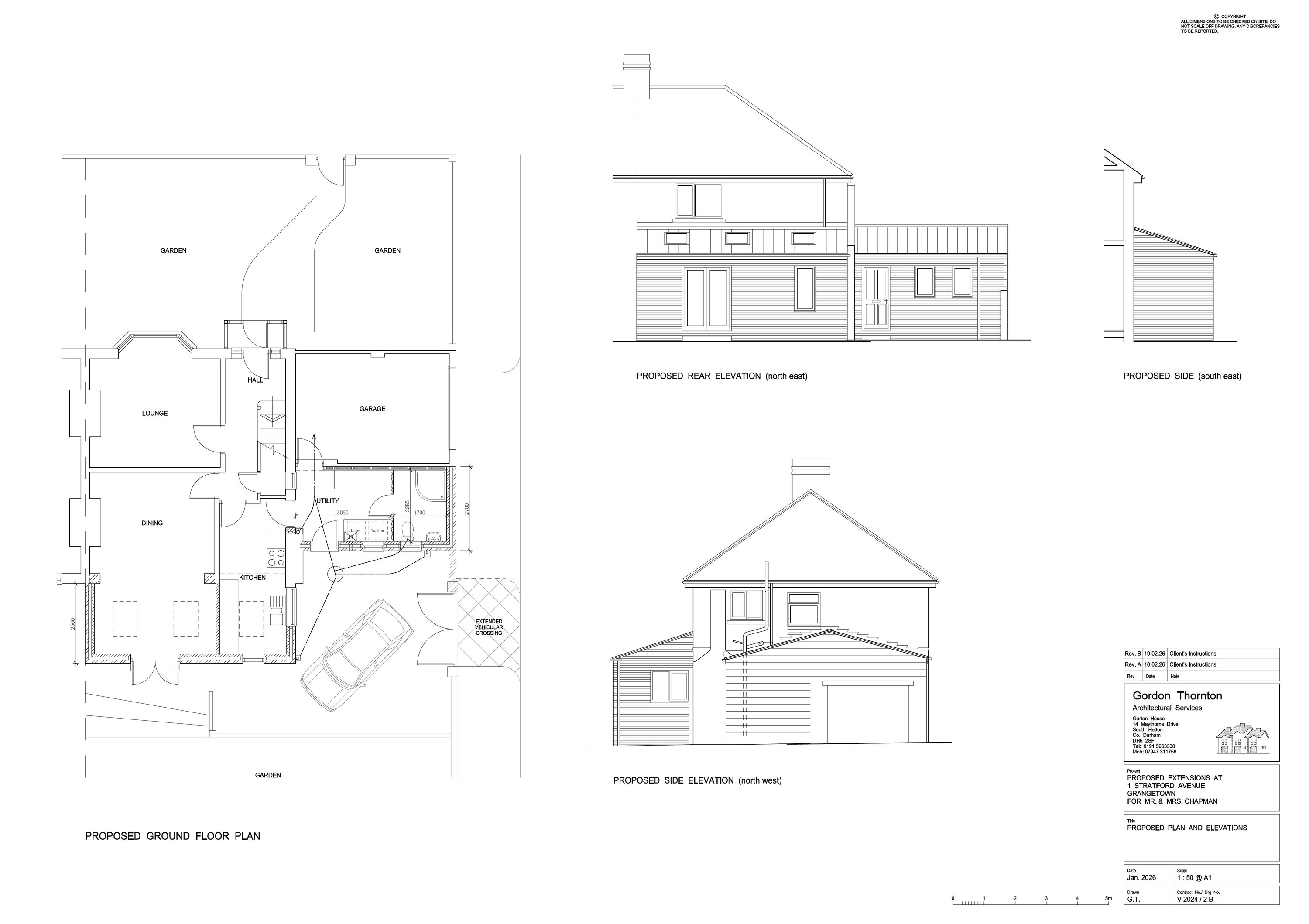
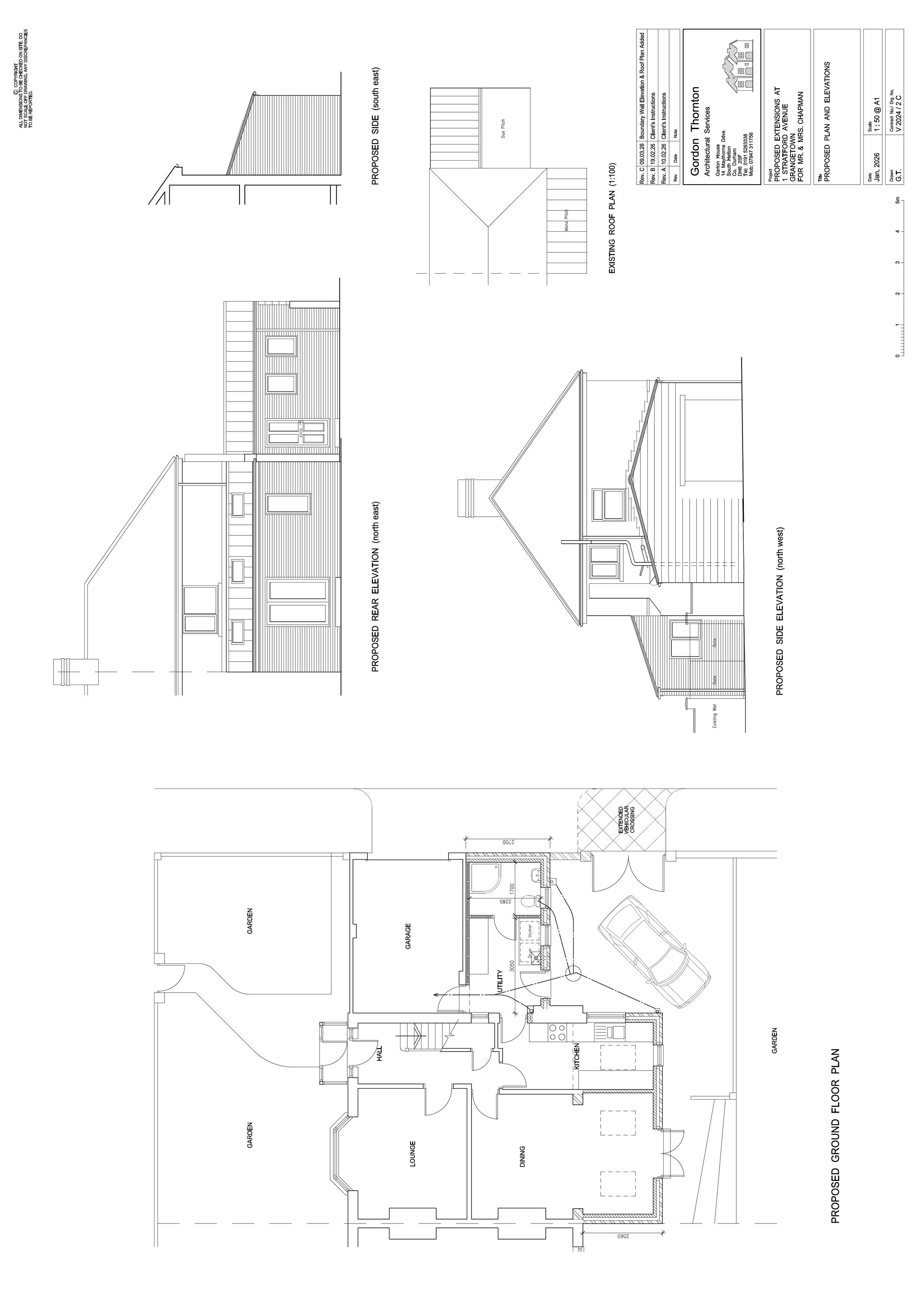
Full proposal

Erection of single storey extensions to side and rear and extension to vehicular crossing

Documents

Application Form Redacted
Archived · Original link
Plan/Drawing
Archived · Original link
Plan/Drawing
Archived · Original link
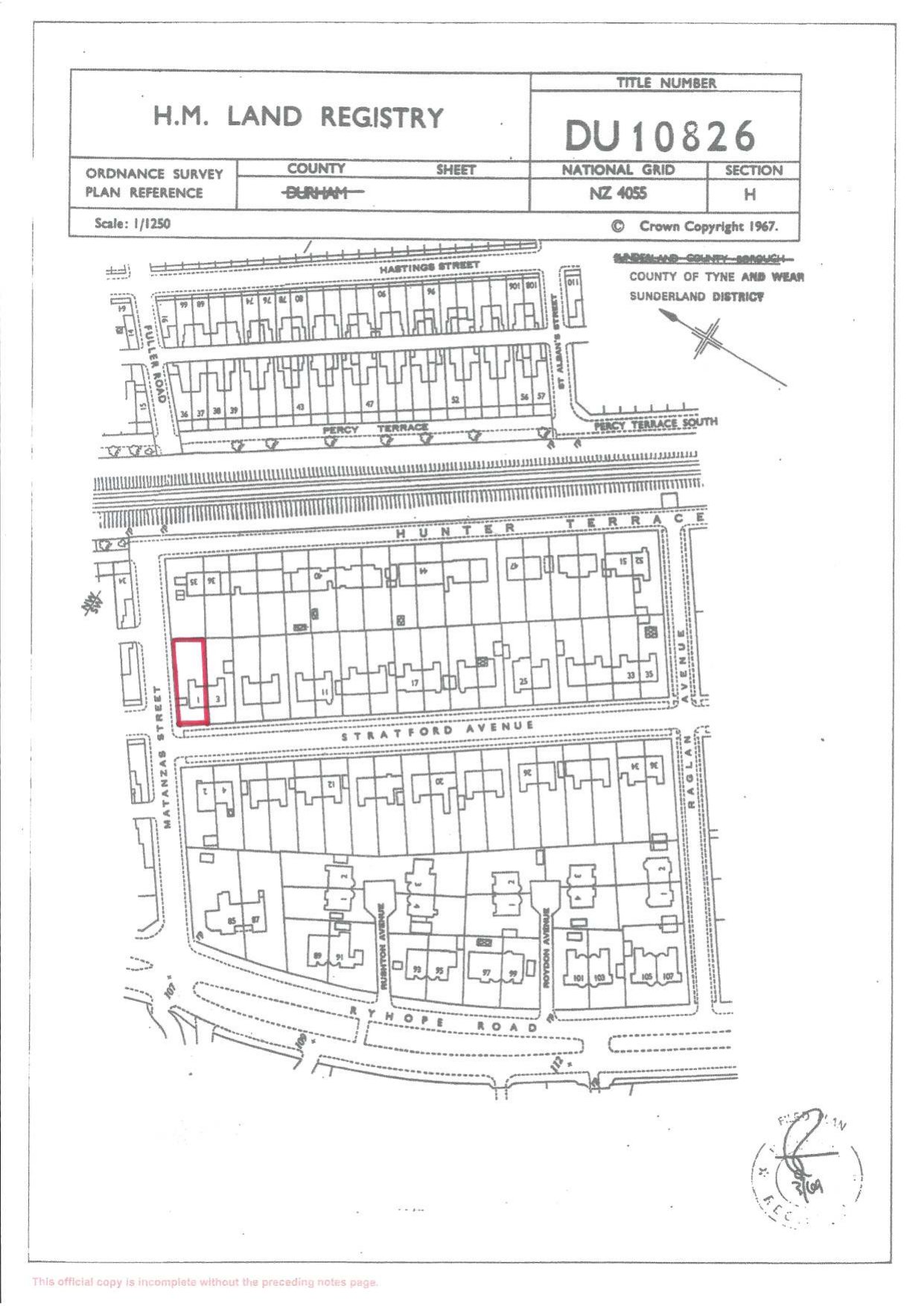
Location Plan
Archived · Original link
Plan/Drawing
Archived · Original link
Plan/Drawing
Archived · Original link

Have your say

Your comment matters. Councils must consider every representation that raises material planning considerations.

Write a comment