← Sunderland City Council

Status

Current Change of use
Received
Last month
New homes
3

Full proposal

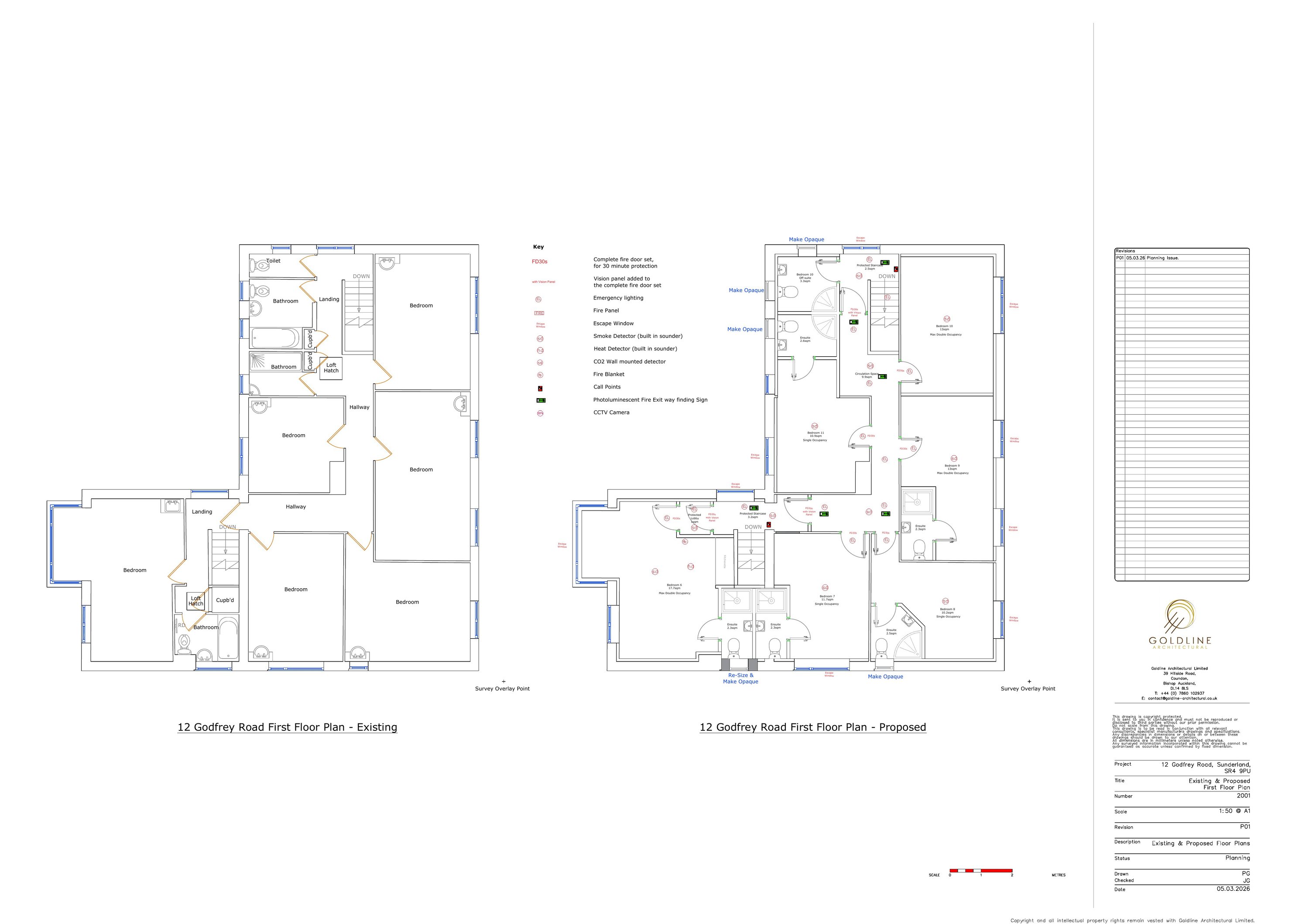
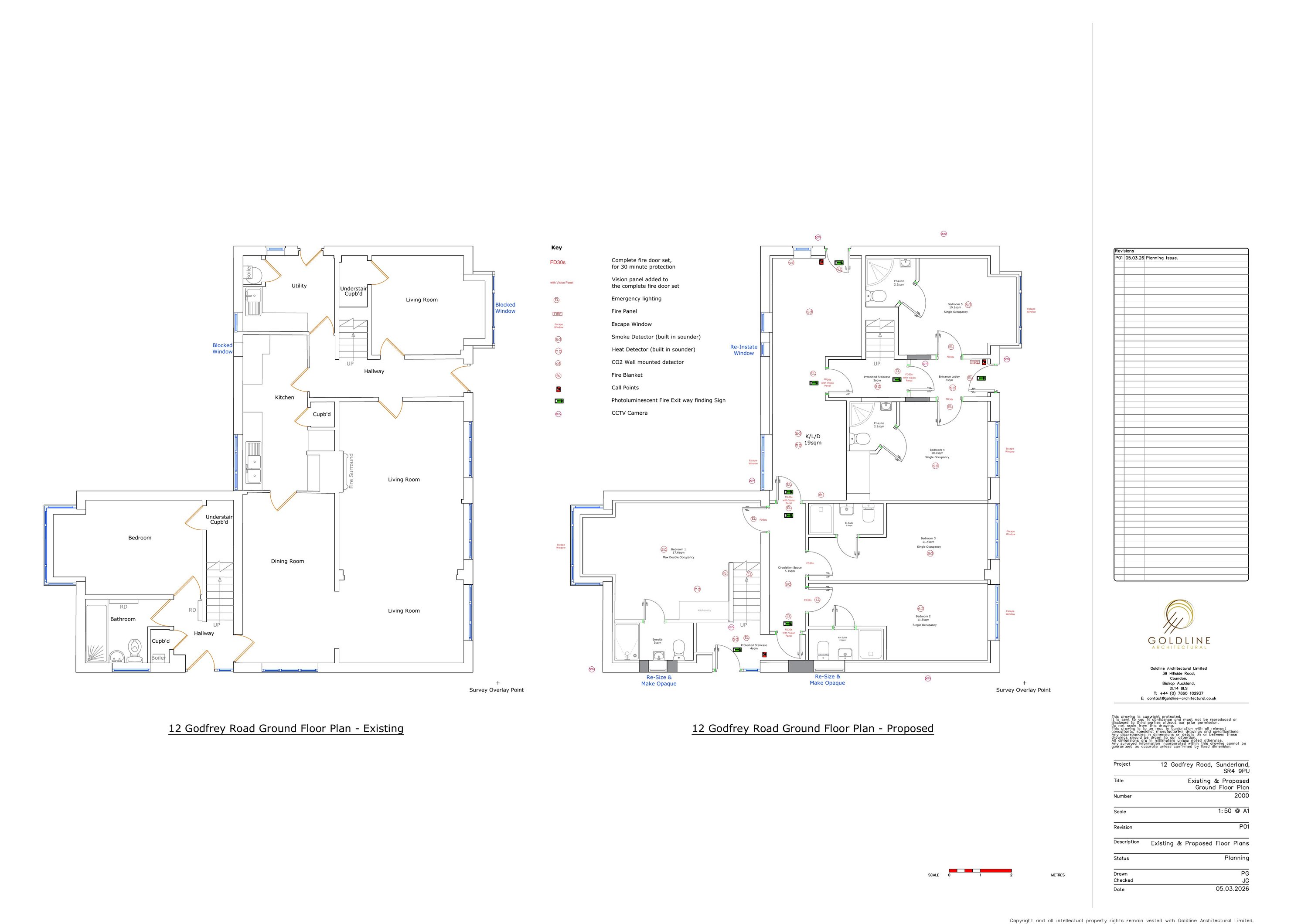
Conversion from 8no. bedroom care facility into an 11no. bedroom HMO, including associated external changes. Erection of new bin and bike stores.

Have your say

Your comment matters. Councils must consider every representation that raises material planning considerations.

Write a comment