← Sunderland City Council

Status

Current Change of use
Received
29 days ago
New homes
0

Full proposal

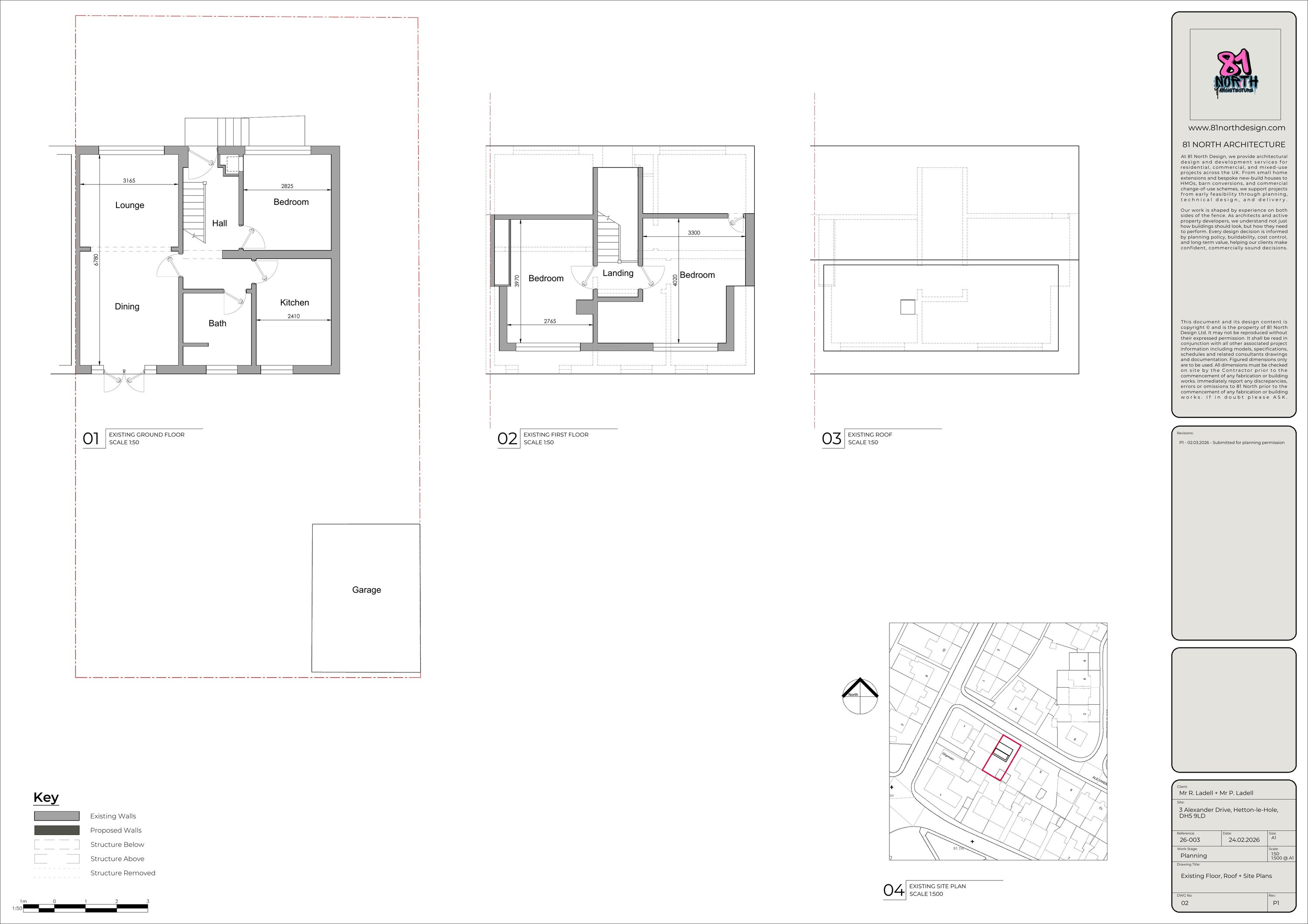
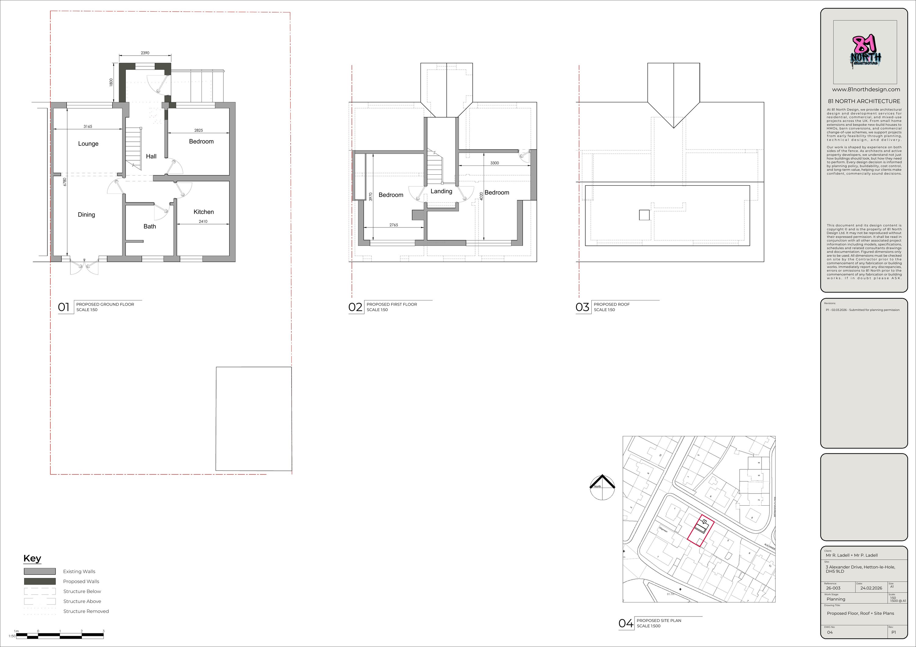
Change of use from residential dwelling (C3) to short-term serviced accommodation (Sui Generis) and erection of front porch.

Documents

Application Form Redacted
Archived · Original link
Application Form Redacted
Archived · Original link
Report/Statement
Archived · Original link
Plan/Drawing
Archived · Original link
Plan/Drawing
Archived · Original link
Plan/Drawing
Archived · Original link
Plan/Drawing
Archived · Original link
Location Plan
Archived · Original link
Consultee Response
Archived · Original link

Have your say

Your comment matters. Councils must consider every representation that raises material planning considerations.

Write a comment