← Sunderland City Council

Status

Current Change of use
Received
29 days ago
New homes
0

Full proposal

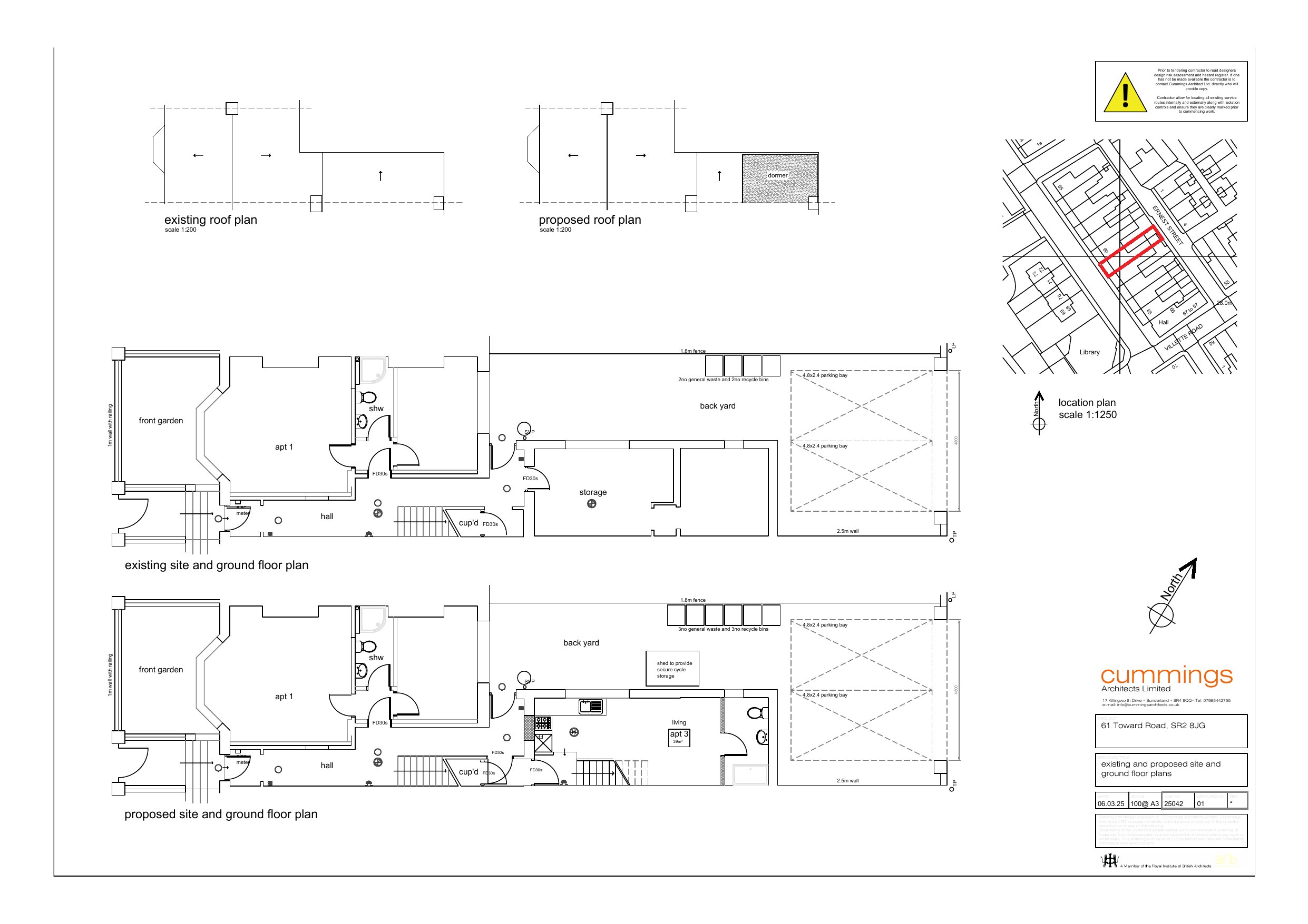
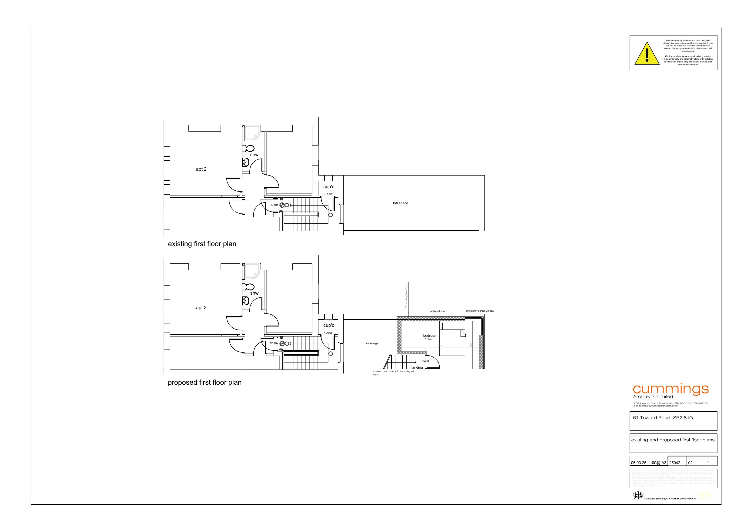
Conversion of off-shoot to self contained apartment with erection of new dormer window

Documents

Application Form Redacted
Archived · Original link
Application Correspondence
Archived · Original link

Have your say

Your comment matters. Councils must consider every representation that raises material planning considerations.

Write a comment