← Surrey Heath Borough Council

Status

Registered New housing
Received
18 Mar 2025
New homes
1

Summary

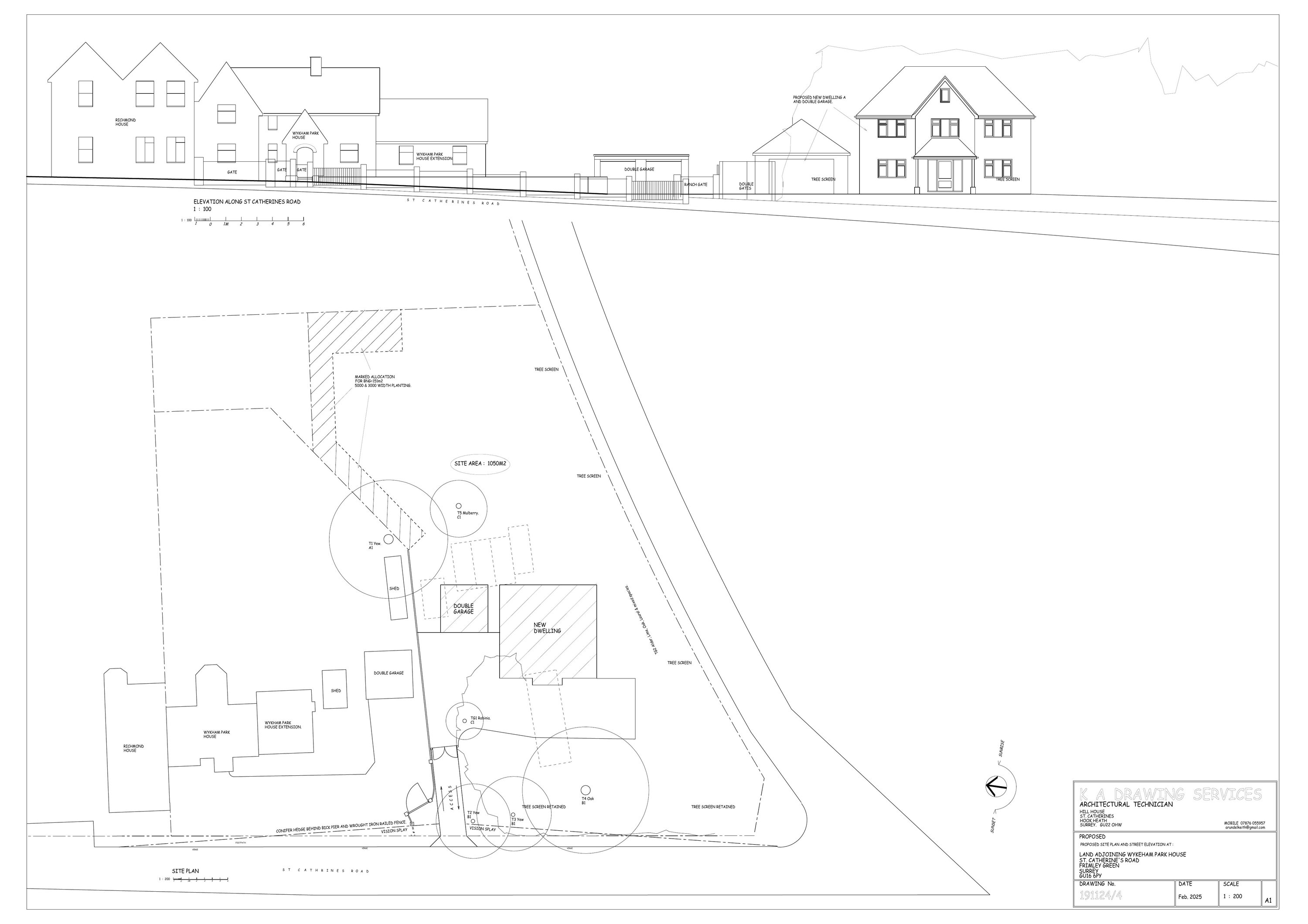
Outline application for one new dwelling; access considered, other matters reserved.

Full proposal

Outline application for the erection of one new dwelling (use class C3) with matters of access to be considered and all other matters reserved.

Documents

AIA AND AMS
Report
Not yet archived · Original link
APPENDIX 1 PHOTOS
Report
Not yet archived · Original link
APPENDIX 2 E-MAIL NAVIL RAHMAN 23RD JANUARY 2023
Report
Not yet archived · Original link
APPENDIX 3A 23-0620-OOU OFFICER REPORT
Report
Not yet archived · Original link
APPENDIX 3B 23-0620-OOU DECISION NOTICE
Report
Not yet archived · Original link
APPENDIX 4 SHBC CALL FOR SITES FORM PRO FORMA
Report
Not yet archived · Original link
APPENDIX 5 E-MAIL.
Report
Not yet archived · Original link
APPENDIX 6 EXTRACT DRAFT LOCAL LIST JANUARY 2024
Report
Not yet archived · Original link
APPLICATION FORM
Application Form
Not yet archived · Original link
ARBORICULTURAL COMMENTS
Consultee Comment
Not yet archived · Original link
BIODIVERSITY NET GAIN ASSESSMENT
Report
Not yet archived · Original link
BIODIVERSITY NET GAIN MATRIC
Report
Not yet archived · Original link
BNG SPREADSHEET
Report
Not yet archived · Original link
CIL FORM 1
CIL Forms
Not yet archived · Original link
ENVIROMENTAL HEALTH RESPONSE
Consultee Response
Not yet archived · Original link
HABITAT CONDITION ASSESSMENT
Report
Not yet archived · Original link
HABITAT CONDITION SURVEY DATA
Report
Not yet archived · Original link
HIGHWAYS RESPONSE
Consultee Response
Not yet archived · Original link
HIGHWAYS RESPONSE COVERING EMAIL
Consultee Response
Not yet archived · Original link
JOINT WASTE SOLUTIONS COMMENTS
Consultee Response
Not yet archived · Original link
LOCATION PLAN
Plans
Not yet archived · Original link
PLANNING STATEMENT
Report
Not yet archived · Original link
PROPOSED LOCATION AND BLOCK PLAN
Plans
Not yet archived · Original link
PROTECTED SPECIES WALKOVER SURVEY
Report
Not yet archived · Original link
REPTILE WALKOVER SURVEY AND PRECAUTIONARY WORKING METHOD STATEMENT
Report
Not yet archived · Original link
STATUTORY BIODIVERSITY METRIC CONDITION
Report
Not yet archived · Original link
SWT COMMENTS
Consultee Comment
Not yet archived · Original link
SWT COMMENTS 3
Consultee Comment
Not yet archived · Original link
SWT COMMENTS V2
Consultee Response
Not yet archived · Original link
THE STATUTORY BIODIVERSITY MET
Report
Not yet archived · Original link
TRANSPORT INFORMATION
Report
Not yet archived · Original link

Have your say

Your comment matters. Councils must consider every representation that raises material planning considerations.

Write a comment