← Surrey Heath Borough Council

Status

Registered Demolition
Received
04 Jun 2025
New homes
0

Summary

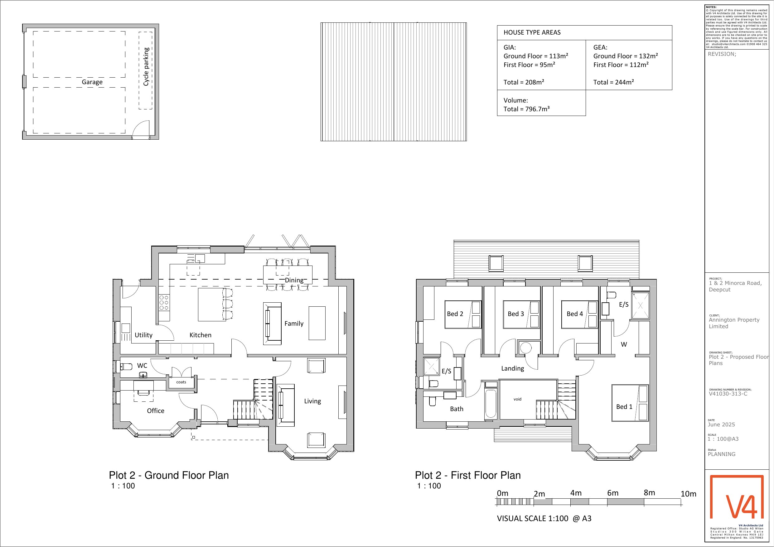
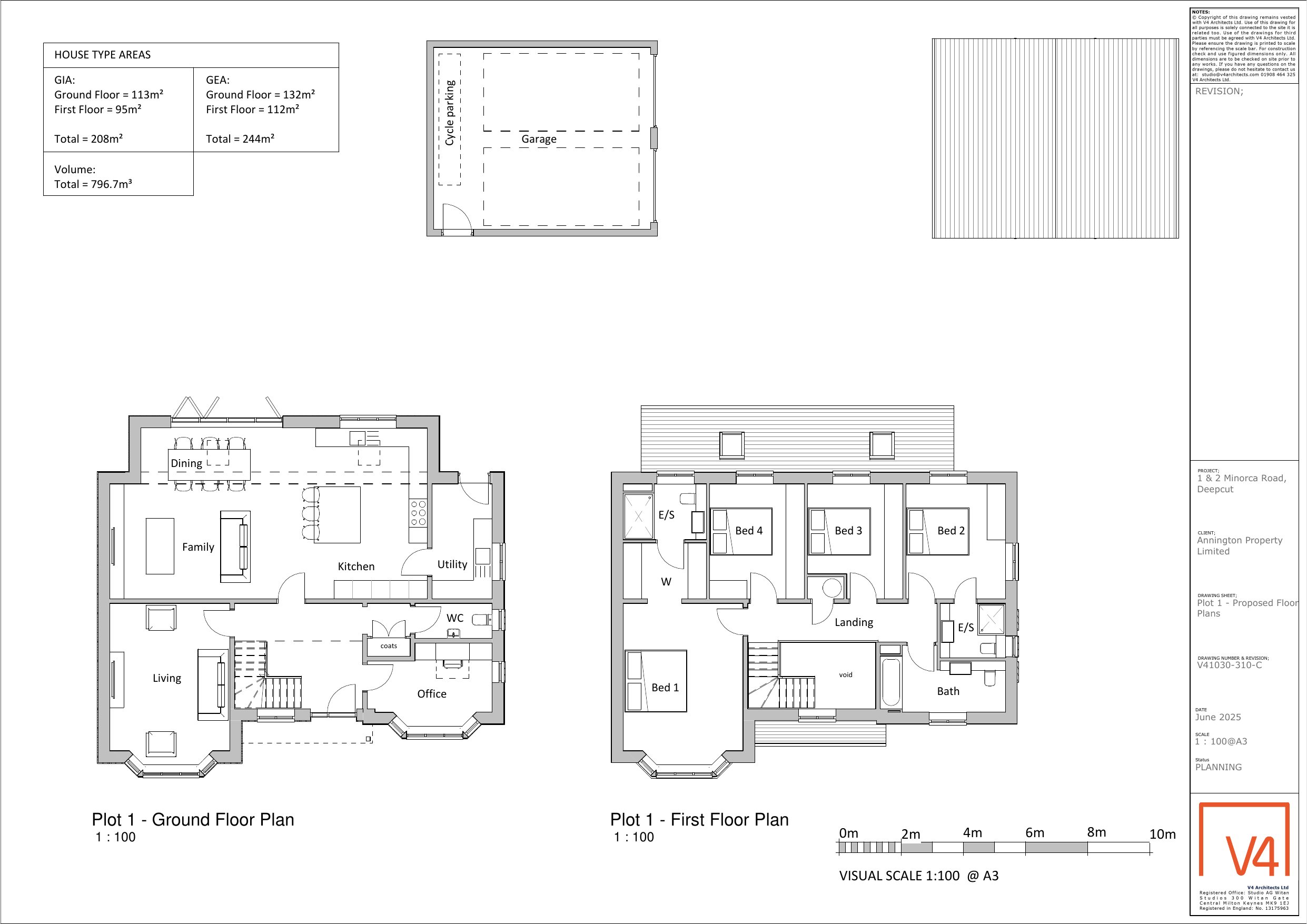
Demolish two properties and erect replacement two-storey dwellings with new access.

Full proposal

Demolition of 1 and 2 Minorca Road and ancillary structures and erection of replacement two storey dwellings and ancillary structures with access from Minorca Avenue and associated works.

Documents

(PERMITTED DEVELOPMENT) PD AREA ASSESSMENT
Plans
Not yet archived · Original link
ADDITIONAL INFORMATION
CIL Forms
Not yet archived · Original link
APPLICANT RESPONSE TO SURREY WILDLIFE TRUST CONSULTATION
Correspondence
Not yet archived · Original link
APPLICANT'S DRAINAGE CONSULTANT'S RESPONSE TO LEAD LOCAL FLOOD AUTHORITY CONSULT
Correspondence
Not yet archived · Original link
ARBORICULTURAL OFFICER
Consultee Response
Not yet archived · Original link
ATTENUATION CALCULATIONS
Report
Not yet archived · Original link
ATTENUATION CALCULATIONS
Amended Report
Not yet archived · Original link
BAT EMERGENCE AND RE-ENTRY SURVEY
Report
Not yet archived · Original link
BIODIVERSITY NET GAIN FILE NOTE
Report
Not yet archived · Original link
BIODIVERSITY STATEMENT - 1 AND 2 MINORCA ROAD
Report
Not yet archived · Original link
BNG METRIC
Report
Not yet archived · Original link
CONSTRUCTION ENVIRONMENTAL MANAGEMENT PLAN
Report
Not yet archived · Original link
CONSTRUCTION ENVIRONMENTAL MANAGEMENT PLAN
Amended Report
Not yet archived · Original link
COUNTY HIGHWAY AUTHORITY
Consultee Response
Not yet archived · Original link
COUNTY HIGHWAY AUTHORITY
Consultee Response
Not yet archived · Original link
COUNTY HIGHWAY AUTHORITY
Consultee Response
Not yet archived · Original link
COVERING E-MAIL
Correspondence
Not yet archived · Original link
COVERING E-MAIL
Correspondence
Not yet archived · Original link
COVERING E-MAIL
Correspondence
Not yet archived · Original link
COVERING E-MAIL
Correspondence
Not yet archived · Original link
COVERING LETTER INC PLANNING AND DESIGN AND ACCESS STATEMENT
Correspondence
Not yet archived · Original link
DRAINAGE STRATEGY
Plans
Not yet archived · Original link
ENVIRONMENTAL HEALTH
Consultee Response
Not yet archived · Original link
ENVIRONMENTAL HEALTH
Consultee Response
Not yet archived · Original link
EXISTING FLOOR PLANS AND ELEVATIONS
Plans
Not yet archived · Original link
Plans
Archived · Original link
FLOOD RISK ASSESSMENT
Amended Report
Not yet archived · Original link
FLOOD RISK ASSESSMENT
Report
Not yet archived · Original link
FLOOD RISK ASSESSMENT
Amended Report
Not yet archived · Original link
HABITAT MANAGEMENT AND MONITORING PLAN
Report
Not yet archived · Original link
JOINT WASTE SOLUTIONS
Consultee Response
Not yet archived · Original link
LANDSCAPE DESIGN
Plans
Not yet archived · Original link
LEAD LOCAL FLOOD AUTHORITY
Consultee Response
Not yet archived · Original link
LEAD LOCAL FLOOD AUTHORITY
Consultee Response
Not yet archived · Original link
LEAD LOCAL FLOOD AUTHORITY
Consultee Response
Not yet archived · Original link
LEAD LOCAL FLOOD AUTHORITY
Consultee Response
Not yet archived · Original link
METHOD STATEMENT FOR DEMOLITION AND SITE CLEARANCE
Report
Not yet archived · Original link
OUTLINE DRAINAGE STRATEGY
Amended Plans
Not yet archived · Original link
PHASE 1 GEO ENVIRONMENTAL DESK STUDY PART 1
Report
Not yet archived · Original link
PHASE 1 GEO ENVIRONMENTAL DESK STUDY PART 2
Report
Not yet archived · Original link
PHASE 1 GEO ENVIRONMENTAL DESK STUDY PART 3
Report
Not yet archived · Original link
PHASE 1 GEO ENVIRONMENTAL DESK STUDY PART 4
Report
Not yet archived · Original link
PLOT 1 - PROPOSED ELEVATIONS 1
Plans
Not yet archived · Original link
PLOT 1 - PROPOSED ELEVATIONS 2
Plans
Not yet archived · Original link
PLOT 2 - PROPOSED ELEVATIONS 1
Plans
Not yet archived · Original link
PLOT 2 - PROPOSED ELEVATIONS 2
Plans
Not yet archived · Original link
PRELIMINARY ECOLOGICAL APPRAISAL AND PRELIMINARY ROOST ASSESSMENT
Report
Not yet archived · Original link
PROPOSED (PERMITTED DEVELOPMENT) PD VOLUME ASSESSMENT
Plans
Not yet archived · Original link
Plans
Archived · Original link
PROPOSED STREET SCENES
Plans
Not yet archived · Original link
RESPONSE TO INVALID LETTER
Correspondence
Not yet archived · Original link
SEE ALSO E-MAIL OF 11 JUNE 2025 RE CONFIRMATION OF SITE ADDRESS
Application Form
Not yet archived · Original link
OS Extract
Archived · Original link
SOIL INFILTRATION RATE CALCULATIONS
Report
Not yet archived · Original link
SUPERSEDED CONSTRUCTION ENVIRONMENTAL MANAGEMENT PLAN
Report
Not yet archived · Original link
SURREY WILDLIFE TRUST
Consultee Comment
Not yet archived · Original link
SURREY WILDLIFE TRUST
Consultee Response
Not yet archived · Original link
SURREY WILDLIFE TRUST SUPPLEMENTARY COMMENTS
Consultee Response
Not yet archived · Original link
SURREY WILDLIFE TRUST SUPPLEMENTARY COMMENTS
Consultee Response
Not yet archived · Original link
SUSTAINABILITY STATEMENT
Report
Not yet archived · Original link
TREE SURVEY AND ARBORICULTURAL IMPACT ASSESSMENT
Report
Not yet archived · Original link

Have your say

Your comment matters. Councils must consider every representation that raises material planning considerations.

Write a comment