← Surrey Heath Borough Council
25/1196/FFU
Surrey Heath Borough Council
Status
Registered
House extension
Received
14 Nov 2025
New homes
0
Full proposal
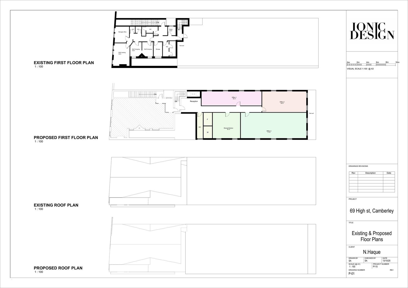
Erection of first floor rear extension to create office space.
Documents
Have your say
Your comment matters. Councils must consider every representation that raises material planning considerations.