← Surrey Heath Borough Council

Status

Awaiting decision Change of use
Received
26 Nov 2025
New homes
0

Full proposal

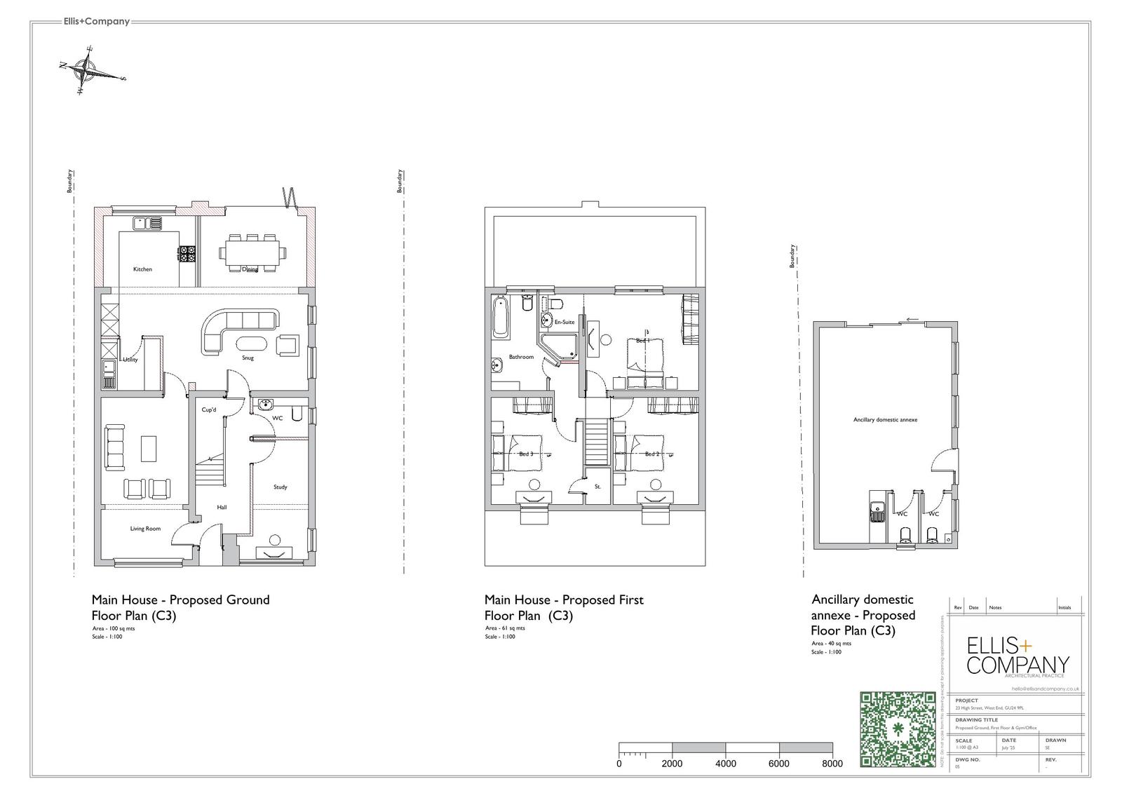
Conversion of existing Class E (commercial) to Class C3 (residential), erection of a single storey rear extension, formation of a new driveway with changes to fenestration and associated works.

Documents

AMENDED FLOOR PLANS
Amended Plans
Not yet archived · Original link
APPLICATION FORM
Application Form
Not yet archived · Original link
BAT MITIGATION PLAN
Report
Not yet archived · Original link
BIODIVERSITY METRIC
Other
Not yet archived · Original link
BNG
Report
Not yet archived · Original link
BNG 1 AND 2 REPORT
Report
Not yet archived · Original link
BNG METRIC
Report
Not yet archived · Original link
CIL FORM 1
CIL Forms
Not yet archived · Original link
COUNTY HIGHWAYS
Consultee Response
Not yet archived · Original link
COUNTY HIGHWAYS AUTHORITY RESPONSE
Consultee Response
Not yet archived · Original link
EXISTING ELEVATIONS
Plans
Not yet archived · Original link
EXISTING FLOOR PLANS
Plans
Not yet archived · Original link
JOINT WASTE SOLUTIONS RESPONSE
Consultee Response
Not yet archived · Original link
LOCATION AND EXISTING BLOCK PLAN
Plans
Not yet archived · Original link
PARKING PROVISION DETAILS
Report
Not yet archived · Original link
PEA AND RA
Report
Not yet archived · Original link
PLANNING STATEMENT
Report
Not yet archived · Original link
PROPOSED BLOCK PLAN
Plans
Not yet archived · Original link
PROPOSED ELEVATIONS
Plans
Not yet archived · Original link
Amended Plans
Archived · Original link
SUPERSEDED - LOCATION AND EXISTING BLOCK PLAN
Plans
Not yet archived · Original link
SUPERSEDED - PROPOSED BLOCK PLAN
Plans
Not yet archived · Original link
SURREY WILDLIFE TRUST
Consultee Response
Not yet archived · Original link
TELECOMMUNICATIONS SUPPLEMENTARY INFORMATION
Report
Not yet archived · Original link
WEST END PARISH COUNCIL
Consultee Response
Not yet archived · Original link

Have your say

Your comment matters. Councils must consider every representation that raises material planning considerations.

Write a comment