← Surrey Heath Borough Council
26/0015/FFU
Surrey Heath Borough Council
Status
Registered
House extension
Received
09 Jan 2026
New homes
0
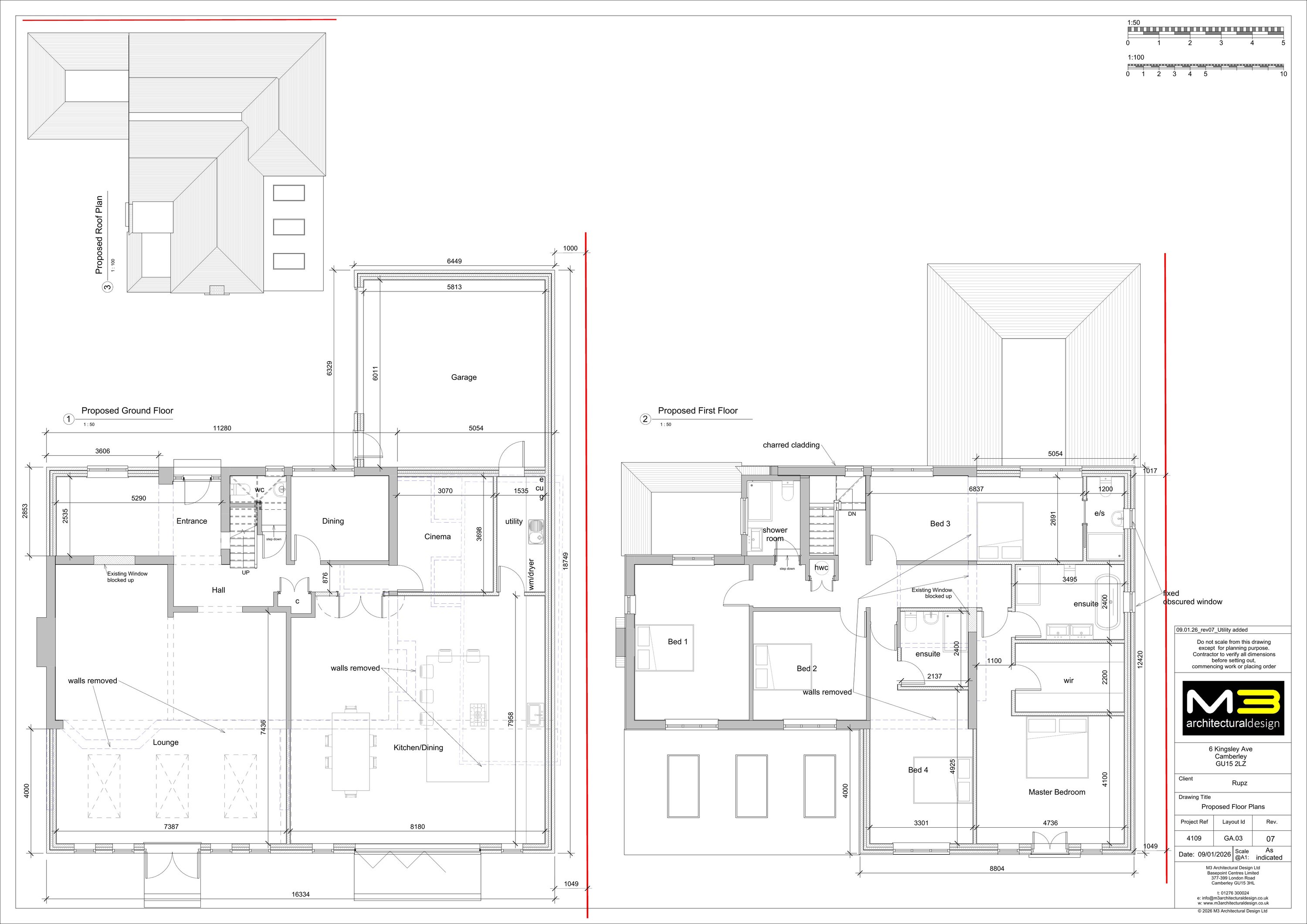
Full proposal
Erection of part single, part two storey front, rear and side extensions following demolition of existing garage, roof alterations including removal of chimney and alterations to fenestration and external materials.
Documents
Have your say
Your comment matters. Councils must consider every representation that raises material planning considerations.