← Surrey Heath Borough Council
26/0081/FFU
Surrey Heath Borough Council
Status
Registered
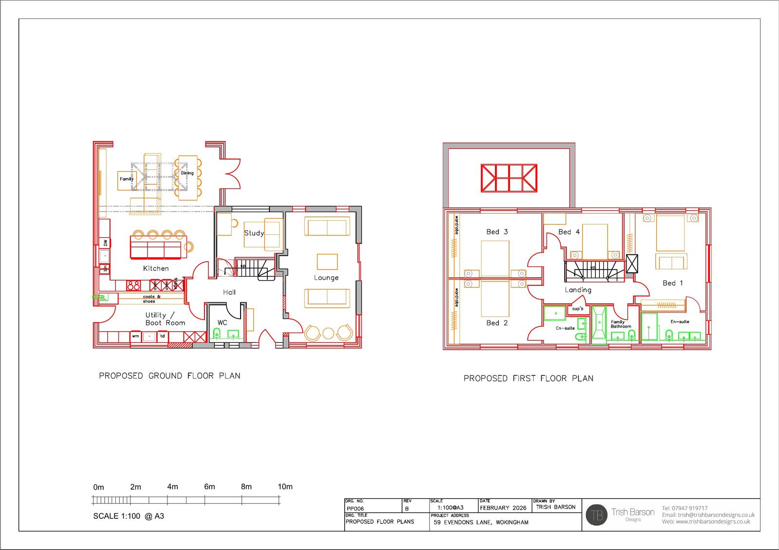
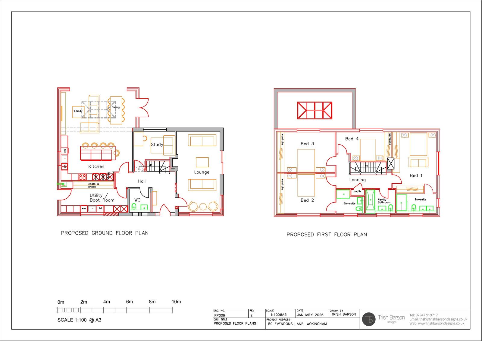
House extension
Received
29 Jan 2026
New homes
0
Full proposal
Erection of a first floor extension including raising the ridge height, two storey side extension following partial demolition of existing property, single storey rear extension and new front porch following demolition of existing garage with changes to fenestration, external materials and associated internal works.
Documents
Have your say
Your comment matters. Councils must consider every representation that raises material planning considerations.