← Surrey Heath Borough Council
26/0186/FFU
Surrey Heath Borough Council
Status
Registered
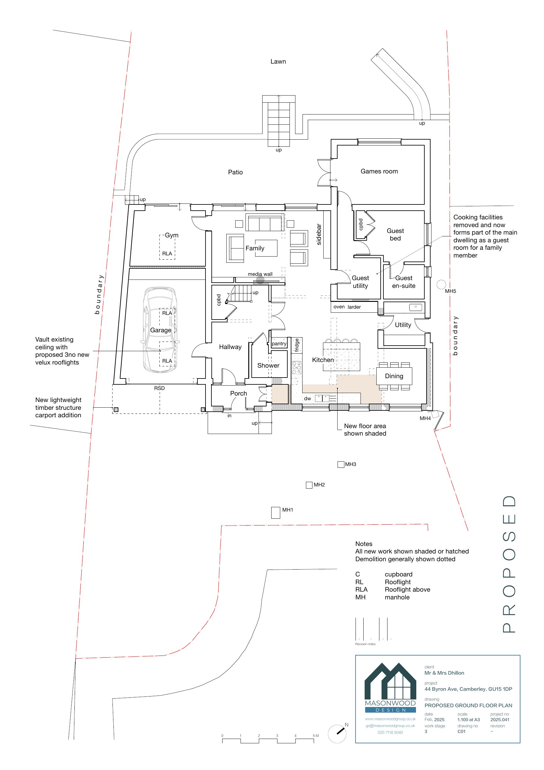
House extension
Received
Last month
New homes
0
Full proposal
Erection of single storey front extension with alterations to the roof, internal layout and fenestration, and widening of dropped kerb.
Documents
Have your say
Your comment matters. Councils must consider every representation that raises material planning considerations.