← Surrey Heath Borough Council
26/0193/FFU
Surrey Heath Borough Council
Status
Registered
Other
Received
Last month
New homes
0
Full proposal
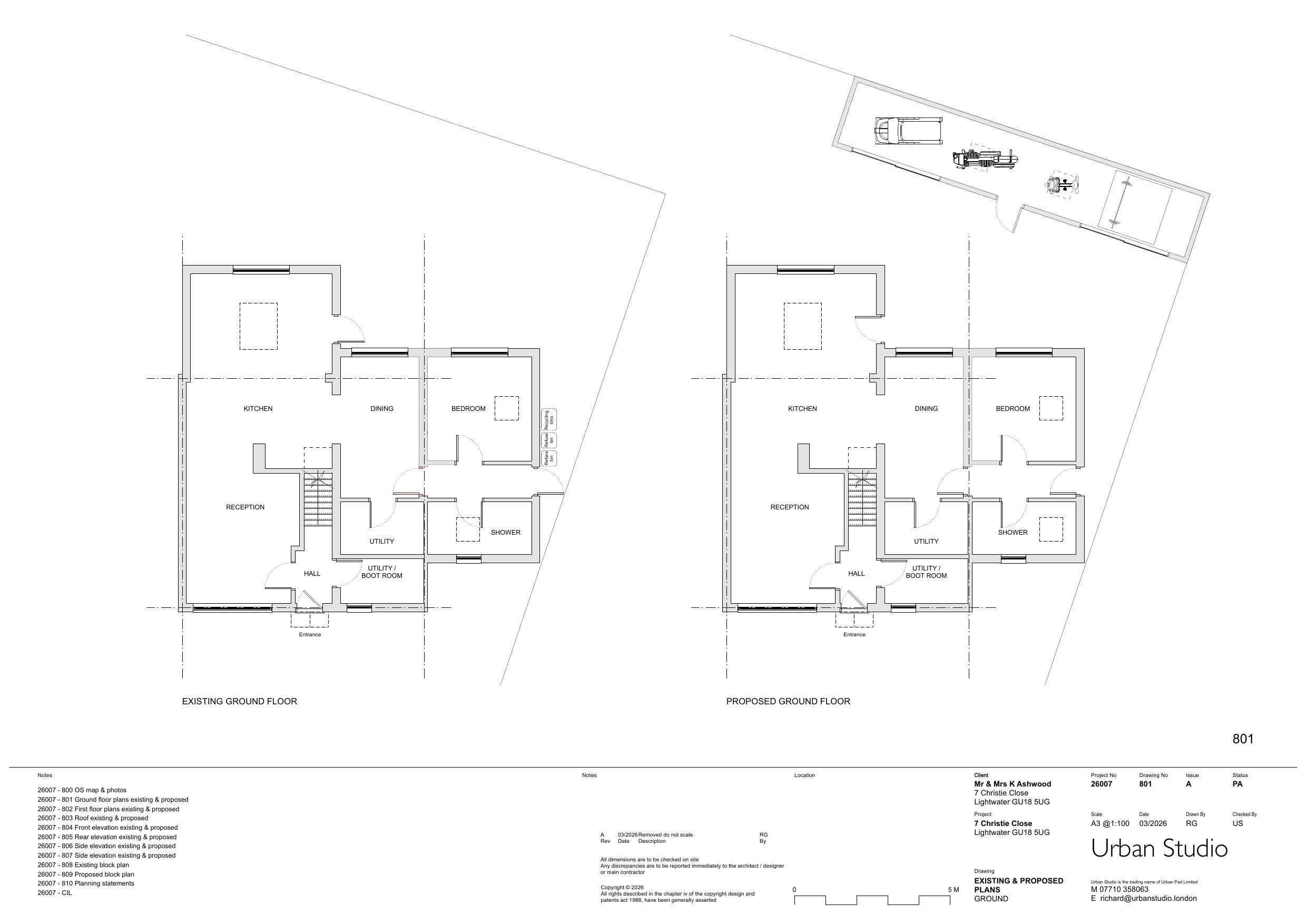
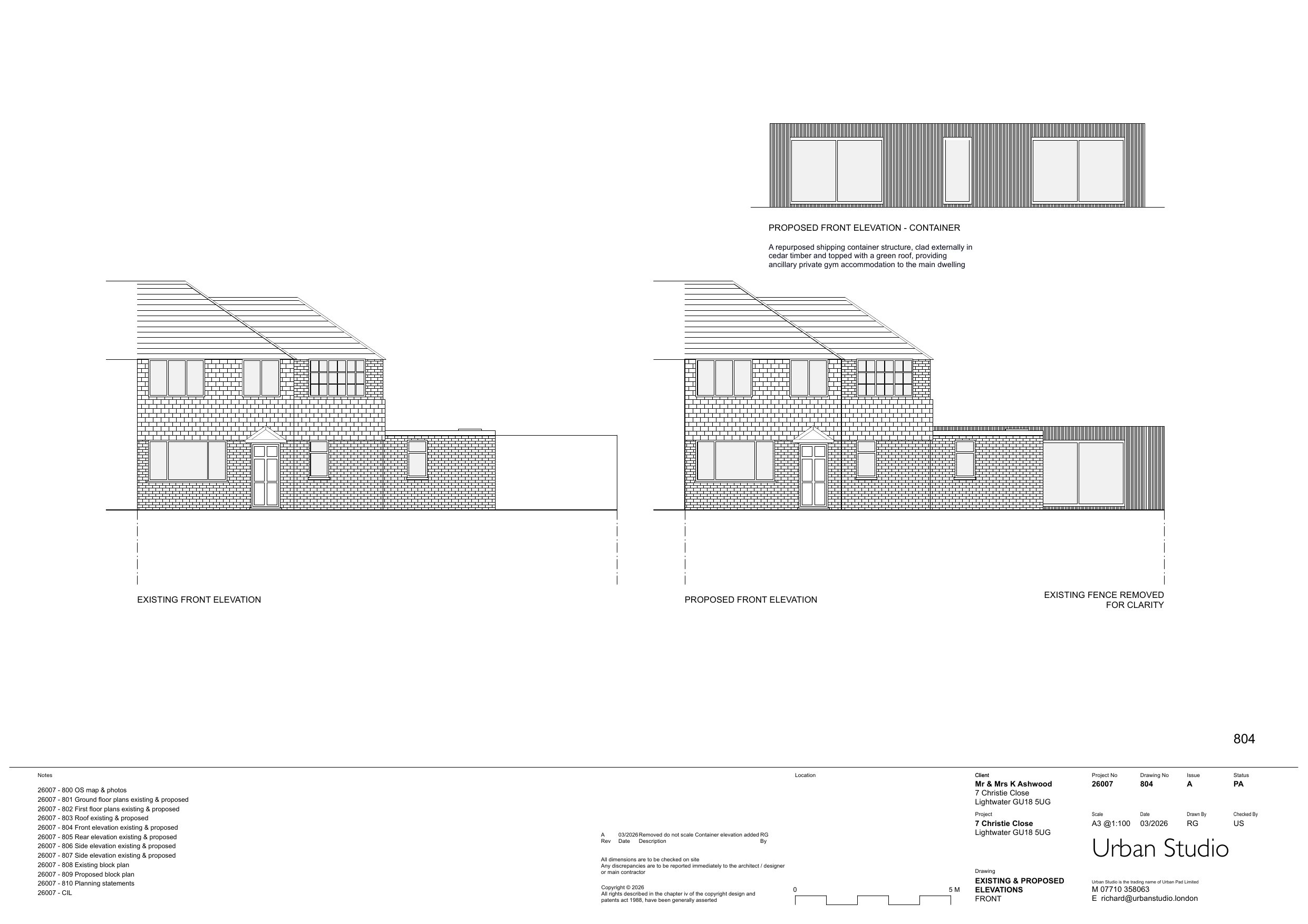
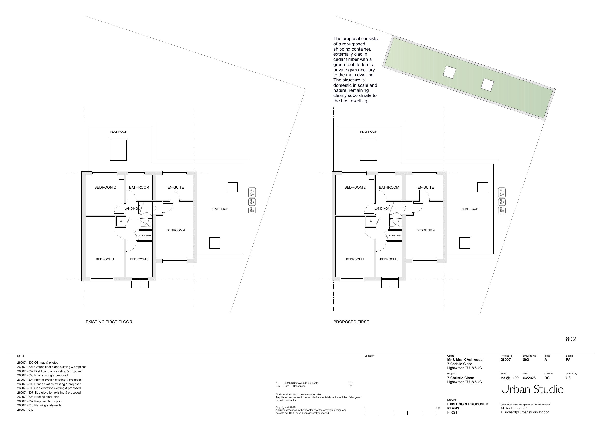
Installation of a repurposed shipping container, externally clad in cedar timber and incorporating a biodiverse green roof, to provide a private gym ancillary and incidental to the use of the main dwelling house.
Documents
Have your say
Your comment matters. Councils must consider every representation that raises material planning considerations.